Godalming, Surrey, GU7

£325,000

1 Bedroom Apartment for sale in Surrey

1 1
  • Grade II listed mill conversion blending heritage character and modern comfort
  • Beautiful ground-floor position with private entrance hallway
  • Open-plan kitchen/living room finished in Midnight Blue with oak worktops
  • Premium Bosch appliances including oven, hob and washer/dryer
  • Spacious double bedroom with versatile layout options
  • Modern bathroom with porcelain tiles and chrome fixtures
  • Original exposed beams adding warmth and authenticity
  • Allocated on-site parking plus cycle storage
  • Communal garden overlooking the River Wey
  • Share of freehold + 999-year lease

Stylish 1-bed ground-floor apartment in Grade II listed Hatch Mill, Godalming. Unique character features, modern interiors, allocated parking and exceptional commuter links. A rare chance to secure a high-quality home just steps from the station.
Flat 5 pairs heritage charm with modern living — offering a beautifully designed, characterful home set within a landmark Grade II listed mill conversion just moments from Godalming High Street and the station.
With exposed beams, thoughtfully finished interiors and instant access to the communal garden, this apartment delivers something buyers rarely find at this price point: new-build quality with timeless personality, all in a location that makes everyday life effortlessly convenient.
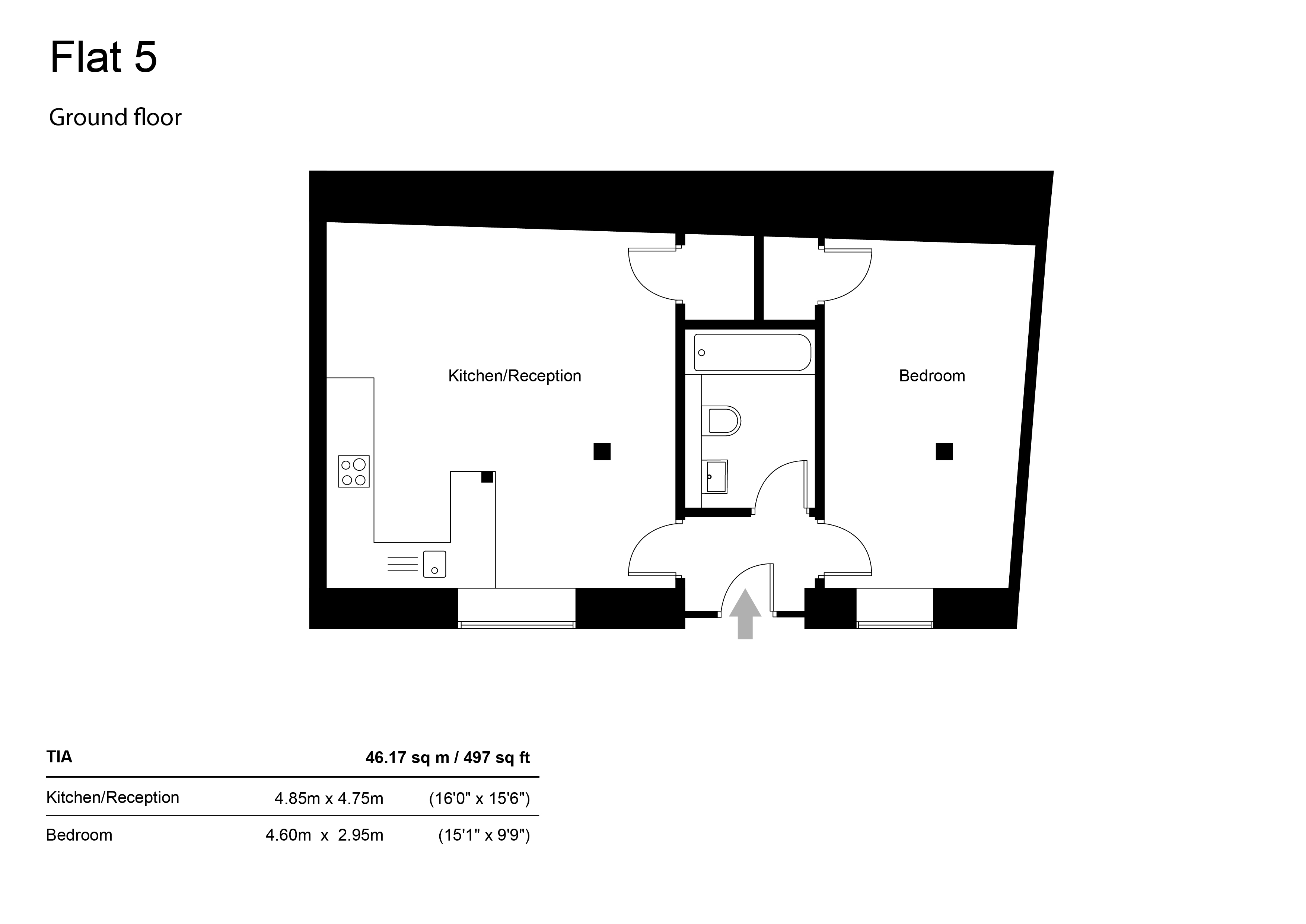
Positioned on the ground floor of the newly converted Hatch Mill, Plot 5 is a beautifully crafted one-bedroom home that blends the warmth of historic architecture with the ease of modern design. The apartment benefits from its own private entrance hallway, creating a welcoming sense of arrival that's often missing in contemporary builds.
The open-plan kitchen/living space is cleverly zoned and generously sized, with natural light drawn in from the dual aspect and framed by authentic mill features. The kitchen — finished in sophisticated Midnight Blue with oak worktops and premium Bosch appliances — is both stylish and practical, offering space for cooking, dining and entertaining in one cohesive area.
The bedroom provides an unexpectedly generous footprint (4.6m x 2.95m), with flexibility for a wardrobe wall or desk space, while the sleek bathroom features modern sanitaryware, porcelain tiling and chrome fittings.
Unlike many period conversions, Plot 5 offers the reassurance and efficiency of a new-build warranty, high-quality insulation, modern heating, and low-maintenance living — perfect for anyone wanting comfort without the compromise or upkeep associated with older apartments.
Residents benefit from allocated parking, cycle storage, and access to the communal garden set alongside the River Wey — a tranquil spot to unwind just moments from Godalming's bustling High Street.
And with Godalming Station only a one-minute walk away, commuting to London Waterloo in around 45 minutes is effortlessly convenient. Whether you're stepping onto the property ladder or simply seeking a lifestyle upgrade, Plot 5 stands out for its setting, specification, and standout character.
Living at Hatch Mill means enjoying the quiet charm of riverside Surrey while staying deeply connected. Godalming's historic High Street — packed with cafés, bakeries, boutiques and restaurants — is just a short stroll away. Evening drinks at The Star, weekend brunch at Changing Perceptions or riverside walks along the Wey all become part of daily life.
Commuters benefit from London Waterloo in approx. 45 minutes, Guildford in under 10, and smooth access to the A3. The area also offers scenic countryside, outstanding local parks, and a welcoming community atmosphere.
This is heritage living meets modern convenience — right in the heart of one of Surrey's most desirable market towns.
Homes of this character don't come around often. With enquiries rising and limited homes available, Book your viewing now and see why Plot 5 is already attracting so much interest.
Photos and computer-generated images (CGIs) are for illustrative purposes only and may not precisely represent the final homes. Some photographs have been digitally dressed for illustration purposes only, and certain images may show other plots within Hatch Mill used as examples.


Property Ref: 417898_LNH250647

Share:

Similar Properties

Godalming, Surrey, GU7

2 Bedroom Apartment | Guide Price £325,000

Chain free! - Two bedroom second floor apartment with garage and views of Godalming's Lammas Lands. Lovely leafy locatio...

Chiddingfold, Godalming, Surrey, GU8

1 Bedroom Terraced House | Guide Price £325,000

Located in the heart of the picturesque Chiddingfold village, this charming and characterful one-bedroom period cottage...

Godalming, Surrey, GU7

1 Bedroom Terraced House | Guide Price £325,000

Chain free and hidden away behind the greenery of a leafy front garden with long and rustic farmhouse fencing, this pict...

Godalming, Surrey, GU7

2 Bedroom Apartment | Guide Price £335,000

Simply stunning luxury apartment with beautiful river views and allocated parking. Styled to an impeccably high specific...

Charterhouse Road, Godalming, Surrey, GU7

2 Bedroom Apartment | Guide Price £335,000

In a prized modern development set back from the leafy surrounds of Charterhouse Road, this chain free apartment is read...

Godalming, Surrey, GU7

1 Bedroom Terraced Bungalow | Guide Price £335,000

Nestled within a contemporary collection of thoughtfully designed homes on the fringes of Godalming and set in the groun...

Seymours (Godalming)

Godalming, Surrey, GU7 1DJ

01483 420555

How much is your home worth?

Use our short form to request a valuation of your property.

Request a Valuation

Mortgage Calculator

Amount Borrowed: £
Total Amount Repayable: £
Total Monthly Payment: £
©2026 The Guild of Property Professionals. All rights reserved. Terms and Conditions | Privacy Policy | Cookie Policy | Complaints Policy | Members Login
The Guild of Property Professionals Trading Address: 121 Park Lane, London W1K 7AG. GPEA Limited. Registered in England & Wales.  Company No: 02819824.  Registered Office Address: 2 St. Stephen's Court, St. Stephen's Road, Bournemouth, Dorset, England, BH2 6LA.  VAT Registration No: 576 8795 61
Book a Property Valuation Update Cookies Preferences