Godalming, Surrey, GU7

£385,000
SSTC
This property listing is now SSTC

3 Bedroom Apartment for sale in Surrey

1 3 1
  • Attractive period apartment
  • Superb town-centre location on historic Wharf Street
  • Within easy reach of Godalming station
  • Godalming to London Waterloo in 40 minutes
  • Generously sized living room with broad bay window
  • Stylish modern kitchen/dining room
  • Three versatile bedrooms arranged across two floors
  • Exceptionally spacious top-floor bathroom
  • Fresh neutral décor and new flooring throughout
  • Private courtyard-style outside area

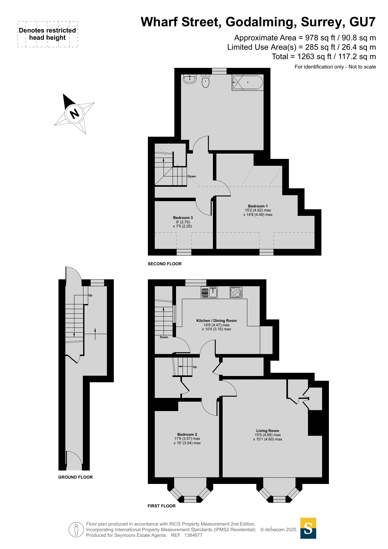
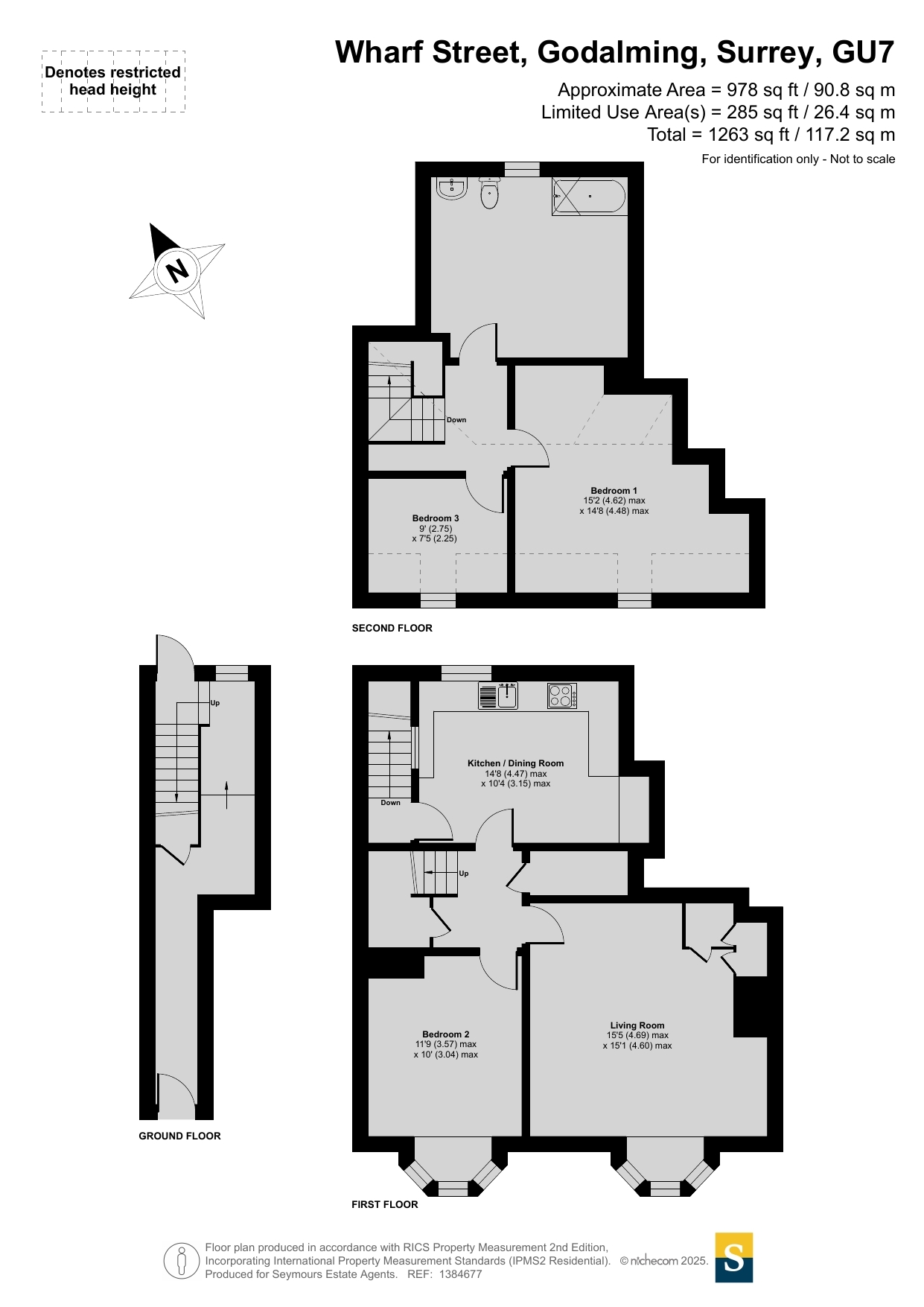
Perfectly positioned on the historic and atmospheric Wharf Street, this spacious period apartment offers an exceptional opportunity to enjoy stylish, modernised living right in the heart of Godalming town centre. Set above a well-regarded coffee shop and arranged across the first and second floors of an attractive traditional building, the property blends generous proportions with a suite of tasteful updates that enhance its original character.A private entrance leads upstairs to a bright landing, revealing the impressive scale and versatility of the recently renovated accommodation. The first floor is centred around an excellent living room, where a broad bay window frames views over the surrounding period architecture and fills the room with natural light. Soft neutral décor, new carpeting and clean lines create a calming contemporary feel, while the generous proportions make it an ideal space for both everyday relaxation and entertaining.Across the landing, the newly fitted kitchen/dining room forms a sleek and social heart to the recently renovated home. Gloss-fronted cabinetry, integrated appliances and expansive worksurfaces combine to create a highly practical and modern workspace, while dual-aspect windows ensure the room feels welcoming and bright. The generous footprint provides ample space for a dining table, making it perfectly suited to hosting, home cooking or casual breakfasts before heading into town.Also on this level is a spacious double bedroom, featuring a wide bay window mirroring that of the living room. Finished in simple, elegant tones, it enjoys excellent natural light and offers a calm, versatile room ideal for use as a main bedroom, guest room or dedicated home office.Stairs rise to the second floor, where the character of the building becomes wonderfully evident. Exposed timbers, angled ceilings and quirky alcoves bring charm to the upper level, which plays host to two further bedrooms. The large principal bedroom stretches out beneath the eaves, offering quiet seclusion and a superb retreat away from the main living spaces. A further bedroom provides an ideal space for guests, a study or a dressing room.This floor is completed by an impressively sized bathroom, featuring a full-length bath with shower over, contemporary flooring and excellent ceiling height. The scale of the room also presents opportunities for future enhancement if desired.Together, the layout offers excellent flexibility - suited equally to those seeking a generous two-bedroom home with work-from-home space or a three-bedroom property in a prime central setting.

While the property does not include traditional gardens, it benefits from its own private courtyard-style space accessed from the kitchen. Enclosed and low-maintenance, this area provides a useful external spot for storage, bicycles, or simply stepping out for a breath of fresh air. Being located in the heart of Godalming, residents enjoy immediate access to an exceptional array of amenities on the doorstep - from independent cafés, bakeries and boutiques to riverside walks along the Wey Navigation.

Property Ref: 417898_GOD250570

Share:

Similar Properties

Godalming, Surrey, GU7

2 Bedroom Apartment | Guide Price £385,000

Well presented with a south-facing balcony, private garage and leafy views of Godalming's Lammas Lands. Contemporary fir...

Farncombe, Surrey, GU7

2 Bedroom Terraced House | Guide Price £375,000

Contemporary mid-terrace house with allocated off-road parking. Impeccably styled from top to toe a beautifully presente...

Elstead, Godalming, Surrey, GU8

2 Bedroom Terraced House | Guide Price £375,000

An incredibly attractive Victorian cottage with parking situated within the conservation area in a tucked away and yet h...

Godalming, Surrey, GU7

3 Bedroom Terraced House | Guide Price £392,000

Within a small terrace of only three houses, this stylish modern house sits across from the leafy foliage of tall trees...

Godalming, Surrey, GU7

2 Bedroom End of Terrace House | Guide Price £395,000

Nestled on Brighton Road within the charming Crownpits Conservation area, this property boasts a picturesque setting ove...

Milford, Godalming, Surrey, GU8

2 Bedroom Apartment | Guide Price £395,000

Set within the remarkable surroundings of a Grade II listed country house on the Portsmouth Road in Milford, this beauti...

Seymours (Godalming)

Godalming, Surrey, GU7 1DJ

01483 420555

How much is your home worth?

Use our short form to request a valuation of your property.

Request a Valuation

Mortgage Calculator

Amount Borrowed: £
Total Amount Repayable: £
Total Monthly Payment: £
©2026 The Guild of Property Professionals. All rights reserved. Terms and Conditions | Privacy Policy | Cookie Policy | Complaints Policy | Members Login
The Guild of Property Professionals Trading Address: 121 Park Lane, London W1K 7AG. GPEA Limited. Registered in England & Wales.  Company No: 02819824.  Registered Office Address: 2 St. Stephen's Court, St. Stephen's Road, Bournemouth, Dorset, England, BH2 6LA.  VAT Registration No: 576 8795 61
Book a Property Valuation Update Cookies Preferences