Godalming, Surrey, GU7

Guide Price
£1,000,000
SSTC
This property listing is now SSTC

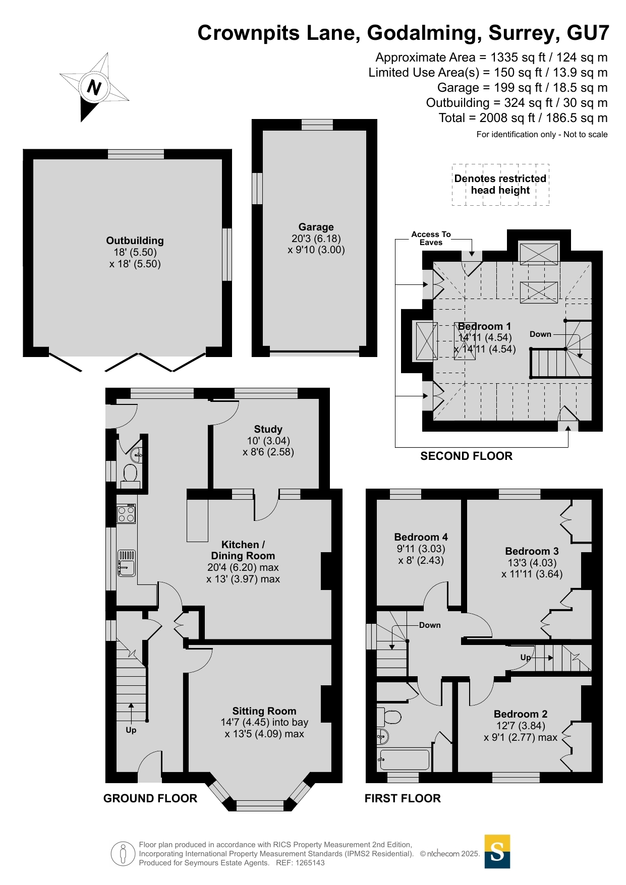
4 Bedroom Semi-Detached House for sale in Surrey

3 4 1
  • Exceptional semi-detached Edwardian cottage
  • Beautiful south facing gardens with large landscaped patio and impeccable lawn
  • Second 'secret garden' with fully powered deluxe garden room
  • Sensitively extended and styled 3 storey layout
  • Detached garage and gravel driveway
  • Sitting room with bay windows and focal point fireplace
  • Shaker kitchen/dining room with integrated appliances and exposed brick chimney breast
  • Additional study and boot room area with cloakroom
  • Four excellent bedrooms and heritage bathroom
  • Conveniently located for Godalming high street, mainline station and highly regarded schools

With vines clambering up and over the wood framed porch of an elegant red brick bay facade, this Edwardian home instantly paints a picture of the charm and character that waits for you inside. Sitting back from the lane behind a lovely measure of colour and greenery its sensitively extended layout and detailing remains respectful of its heritage while to the rear a superb garden room lends a deluxe contemporary twist. Step inside and you'll find a soft subtle palette of colours lending a hugely calm and cohesive feel to a free-flowing layout designed with modern family life in mind. Impeccably presented with the perfect blend of original features with tastefully chosen detailing, a succession of light filled rooms instantly makes you feel at home.

With sash bay windows looking out onto fully stocked borders and notable cabinets and floating shelves nestled in chimney breast alcoves, the beautiful sitting room conjures a relaxing space to spend time together. A distinguished wrought iron fireplace framed by a mantle lends a refined yet welcoming focal point and the more than generous dimensions supply ample space for everyone to enjoy.

Explore further and to the rear classic terracotta tiling runs underfoot in a superb kitchen/dining room that connects to both an excellent study and the tranquillity of the south-east facing garden. Crisp white Shaker-style cabinets wrap-around the kitchen area housing an array of integrated appliances while the rustic texture and tones of an exposed brick chimney breast with its open fireplace stands stall in large dining area. Thoughtfully incorporated to carry garden vistas through into this open plan space, a glazed door leads the way into the adjoining study where a skylight in the high sloping ceiling adds a prized sense of light and space. Versatile to your needs, this additional room could easily become a playroom or snug if preferred. Extending from the kitchen, a dedicated boot room with a cloakroom sits to its side enhancing the fluidity of the arrangement further still.

With natural light filtering down from above, a traditional turning staircase entices you upstairs where impressively maintained original wood floors feature throughout the exemplary first floor. Bathed in sunlight, two large double bedrooms have the added bonus of fitted wardrobes. Whilst one has a picture-perfect period fireplace the other has a broad sash window that reminds you of the property's history and a world map mural that will inspire future adventures. An equally excellent single bedroom has plenty of space for a range of freestanding furniture.

A spacious principal bedroom sits exclusively on the top floor providing a restful sanctuary from the hubbub of the day. Its brilliantly high sloping ceiling is peppered with double height skylights that let you stargaze from the comfort of your own bed. Soft plush carpeting keeps thing cosy beneath your feet and eaves supply handy hidden storage without encroaching on the floor plan or feel of the room. Together these four outstanding rooms share a first-floor heritage family bathroom with an inset painted wood panelled bath that has telephone taps and an overhead shower. French grey metro tiles lend a dash of colour and the perfect finishing touch.

Outside
South-east facing and utterly idyllic, the considerable rear gardens are landscaped to reflect the charm and character of the house whilst also proffering the contemporary twist of a fully powered garden room. Outside the kitchen a pebbled seating area is ideally sized for everything from a morning coffee to al fresco dining. A quintessential picket fence and gate define it from the immaculately kept lawns that stretch out before you bordered by a bounty of mature shrubs, conifers, palms and trees. A paved path curves its way around to an enviably landscaped patio and continues down to the rear where there is planting of a central flowerbed.

Continue onwards and you'll be rewarded with the discovery that the lawns continue down to a deluxe garden room with an expanse of anthracite framed bi-fold doors. Fully powered and benefiting from heating/air conditioning, this sublime hidden hideaway generates a host of options as a gym, games room, cinema room or dedicated office – the choice is yours!

Important Information

  • This is a Freehold property.

Property Ref: 417898_GOD250026

Share:

Similar Properties

Busbridge, Godalming, Surrey, GU7

4 Bedroom Detached House | Guide Price £1,000,000

Everything you'd expect and more from a stunning four bedroom family home – Impeccably styled from top to toe this...

Godalming, Surrey, GU7

4 Bedroom Detached House | Guide Price £1,000,000

A truly exceptional detached family home presented to a superb standard, with stunning south-facing gardens that have a...

Milford, Godalming, Surrey, GU8

4 Bedroom Detached House | Guide Price £1,000,000

VIEW THE PROPERTY FILM NOW! An incredibly spacious (c.2300 sq.ft) four/five bedroom detached family house with multiple...

Godalming, Surrey, GU7

4 Bedroom Detached House | Guide Price £1,050,000

Stylish, spacious, and perfectly suited to modern family life, the architectural brilliance of this detached family resi...

Godalming, Surrey, GU7

5 Bedroom Detached House | Guide Price £1,050,000

Impeccably designed with galleried landings and the elegance of a sweeping turning staircase bathed in light from statue...

Godalming, Surrey, GU7

5 Bedroom Detached House | Guide Price £1,050,000

VIEW PROPERTY FILM NOW!! Hidden away from the hubbub of the world within the rarely available leafy environs of The Bram...

Seymours (Godalming)

Godalming, Surrey, GU7 1DJ

01483 420555

How much is your home worth?

Use our short form to request a valuation of your property.

Request a Valuation

Mortgage Calculator

Amount Borrowed: £
Total Amount Repayable: £
Total Monthly Payment: £
©2026 The Guild of Property Professionals. All rights reserved. Terms and Conditions | Privacy Policy | Cookie Policy | Complaints Policy | Members Login
The Guild of Property Professionals Trading Address: 121 Park Lane, London W1K 7AG. GPEA Limited. Registered in England & Wales.  Company No: 02819824.  Registered Office Address: 2 St. Stephen's Court, St. Stephen's Road, Bournemouth, Dorset, England, BH2 6LA.  VAT Registration No: 576 8795 61
Book a Property Valuation Update Cookies Preferences