Godalming, Surrey, GU7

Guide Price
£310,000
SSTC
This property listing is now SSTC

1 Bedroom Terraced House for sale in Surrey

2 1 1
  • Modern one-bedroom home
  • Bright sitting/dining room
  • Additional conservatory
  • Smart separate kitchen
  • Spacious double bedroom
  • Well-presented bathroom
  • Private rear garden with patio, lawn and shed
  • Allocated parking
  • Ideal first home or downsize opportunity
  • Well placed for Godalming and transport links

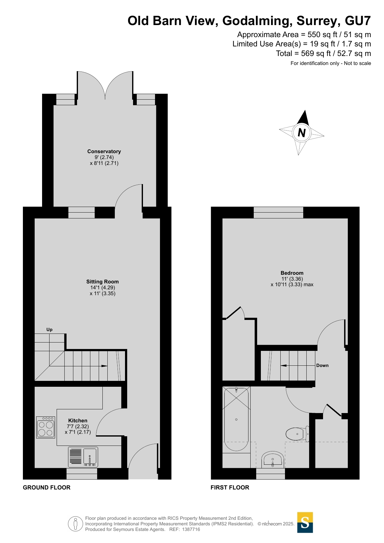
Tucked away in a quiet cul-de-sac surrounded by mature greenery, this well-presented one-bedroom home offers light-filled living spaces, a practical modern layout and the advantage of a private garden backing onto woodland. Thoughtfully arranged and easy to maintain, it is an ideal choice for first-time buyers, downsizers or anyone seeking a peaceful setting within easy reach of local amenities and transport links.Set behind established planting, the attractive brick façade and pitched porch create an inviting first impression. Inside, the bright sitting/dining room stretches out beneath smooth ceilings and warm wood-effect flooring, offering a comfortable and versatile everyday living space. The neutral décor enhances the feeling of light, while a useful understairs cupboard provides practical storage.To the rear, a conservatory adds an excellent second reception area and brings the outdoors in. Its pitched glass roof and double doors to the garden make it a perfect space for relaxing, home-working or enjoying the sunshine year-round.The separate kitchen is arranged in a smart U-shaped layout, fitted with classic white cabinetry, tiled splashbacks and generous worktop space. A front-facing window ensures good natural light, while the integrated oven, gas hob and space for appliances create a functional everyday workspace.Upstairs, the property continues to offer well-balanced accommodation. The spacious double bedroom spans the width of the house and enjoys a peaceful outlook across the treetops beyond the garden, creating a restful retreat. The bathroom is neatly appointed with a full-sized bath and overhead shower, tiled walls and a heated towel rail.Outside, the private rear garden provides a wonderfully natural feel with its woodland backdrop. A paved terrace leads up to a lawn framed by planting, while a timber shed offers handy outdoor storage. Fully enclosed, the space offers a quiet and leafy setting for dining, relaxing or simply enjoying the outdoors. The property also benefits from one allocated parking space, with additional visitor spaces available within the development.

Perfectly placed within Godalming, close to local shops, bus routes and open green spaces, this bright and welcoming home offers everything needed for comfortable, low-maintenance living in a well-connected semi-rural position.

Important Information

  • This is a Freehold property.

Property Ref: GOD250629

Share:

Similar Properties

Milford, Godalming, Surrey, GU8

2 Bedroom Apartment | Guide Price £310,000

Located on the ground floor of an attractive purpose-built development, this light-filled apartment offers both space an...

Godalming, Surrey, GU7

2 Bedroom Apartment | Guide Price £300,000

Occupying a pleasant position within this well-established development, this spacious two double bedroom apartment exten...

Summerhouse Road, Godalming, Surrey, GU7

2 Bedroom Apartment | Guide Price £300,000

This spacious and well-designed ground-floor apartment offers a surprising amount of space and is ideal for comfortable...

Godalming, Surrey, GU7

2 Bedroom Apartment | Guide Price £315,000

Ideally positioned in a quiet riverside location just off Ockford Road, this appealing apartment forms part of a well-ma...

Godalming, Surrey, GU7

1 Bedroom Semi-Detached House | Guide Price £315,000

***SOLD BY SEYMOURS*** Tucked away in a small, well-kept cul-de-sac moments from the heart of Godalming, this smart end-...

Charterhouse Road, Godalming, Surrey, GU7

2 Bedroom Apartment | Guide Price £315,000

A spacious and well proportioned two bedroom ground floor purpose built flat with key features including 15'10" x 13'0"...

Seymours (Godalming)

Godalming, Surrey, GU7 1DJ

01483 420555

How much is your home worth?

Use our short form to request a valuation of your property.

Request a Valuation

Mortgage Calculator

Amount Borrowed: £
Total Amount Repayable: £
Total Monthly Payment: £
©2026 The Guild of Property Professionals. All rights reserved. Terms and Conditions | Privacy Policy | Cookie Policy | Complaints Policy | Members Login
The Guild of Property Professionals Trading Address: 121 Park Lane, London W1K 7AG. GPEA Limited. Registered in England & Wales.  Company No: 02819824.  Registered Office Address: 2 St. Stephen's Court, St. Stephen's Road, Bournemouth, Dorset, England, BH2 6LA.  VAT Registration No: 576 8795 61
Book a Property Valuation Update Cookies Preferences