Silkstone Close Church Gresley, Swadlincote, DE11 9PE

£175,000

2 Bedroom Semi-Detached House for sale in Swadlincote

1 2 1
  • Well-presented two double bedroom semi-detached home in quiet Cul-de-sac location
  • Modern Fitted Kitchen
  • Spacious Lounge Diner
  • Convenient Guest Cloaks
  • Two Double Bedrooms
  • Stylish Family Bathroom
  • Tandem driveway providing off-road parking & Landscaped rear garden.
  • Ideal First time buyer opportunity or investment opportunity in popular location
  • GUIDE PRICE: £175,000 - £185,000
  • EPC: D / TAX BAND: B

Location
Set within a quiet cul-de-sac in the popular village of Church Gresley, 18 Silkstone Close enjoys a convenient yet peaceful setting. The area is well placed for everyday amenities with local shops, schools, parks and countryside walks close by, while the wider facilities of Swadlincote are just a short drive away. Excellent road links are easily accessible, including the A444 and A38, providing straightforward commuting to Burton upon Trent, Derby, Ashby-de-la-Zouch and beyond. Surrounded by the National Forest, the location also offers plenty of green spaces and leisure opportunities, making it ideal for those seeking a balance of village living and connectivity.

Overview
18 Silkstone Close presents a fantastic opportunity for first-time buyers or investors alike, offering well-proportioned accommodation throughout and a beautifully landscaped rear garden.

To the front of the property is a good-sized fore garden, mainly laid to lawn, alongside a tandem driveway providing off-road parking. The driveway leads to a secure rear gate, while steps rise to the main front entrance.

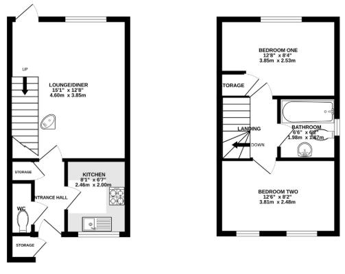
Upon entering, you are welcomed into the entrance hallway, which provides access to the ground floor guest cloakroom, fitted kitchen, and spacious lounge diner. The hallway further benefits from a useful built-in understairs storage cupboard, central heating radiator, and stylish marble-effect tiled flooring.

The guest cloakroom is well appointed with a low-level WC, vanity-style hand basin with black taps, extractor fan, consumer unit for electrics, marble-effect tiled flooring, and a central heating radiator.

The fitted kitchen is located to the front of the property and comprises a range of modern wall & floor mounted units with square-edged laminate work surfaces. Appliances include a four-ring gas hob with extractor over, single electric oven, and a stainless steel sink with drainer and chrome mixer tap. There is space & plumbing for a washing machine and fridge/freezer, along with a Baxi gas-fired central heating boiler, metro-tiled splashbacks, and a uPVC double-glazed window to the front elevation.

To the rear of the property is the spacious lounge diner, featuring a staircase rising to the first floor, gas fire with marble hearth and wooden surround, media points, two central heating radiators, and wood-effect laminate flooring. A uPVC double-glazed window and frosted uPVC double-glazed French doors open out to the rear garden, allowing plenty of natural light to fill the room.

The first floor offers two generously sized double bedrooms and a family bathroom. The landing is carpeted and provides access to the loft.

Bedroom One is a spacious double room overlooking the rear garden, benefiting from a built-in over stairs storage cupboard, carpeted flooring, central heating radiator, and uPVC double-glazed window .
Bedroom Two is another excellent-sized double bedroom with carpeted flooring, central heating radiator, and two uPVC double-glazed windows to the front elevation.

The family bathroom completes the accommodation and includes a low-level WC, vanity wash basin with chrome taps, bath with chrome fittings and electric shower over with glass shower screen, fully tiled walls, extractor fan, central heating radiator, and frosted uPVC double-glazed window to the side elevation.

Externally, the rear garden is beautifully landscaped and tiered. The first tier offers a paved patio area ideal for entertaining, alongside a generous lawn. Timber steps lead to the second tier, which provides an additional lawned seating area, complemented by a raised planter bed with mature plants. To the side is a further paved area housing a garden shed and additional storage.

Overall, this home offers well-presented accommodation, excellent outdoor space, and strong appeal as either a first step onto the property ladder or a solid investment opportunity.

Viewing Strictly Through Liz Milsom Properties
To view this lovely property please contact our dedicated Sales Team at LIZ MILSOM PROPERTIES.

We provide an efficient and easy selling/buying process, with the use of latest computer and internet technology combined with unrivalled local knowledge and expertise. PUT YOUR TRUST IN US, we have a proven track record of success as the TOP SELLING AGENT locally – offering straight forward honest advice with COMPETITVE FIXED FEES.

Available:
9.00 am – 5.30 pm Monday - Thursday
9.00 am - 5.00 pm Friday
9.00 am – 2.00 pm Saturday
Closed - Sunday

CALL THE MULTI-AWARD WINNING AGENT TODAY

Services
Water, mains gas and electricity are connected. The services, systems and appliances listed in this specification have not been tested by Liz Milsom Properties Ltd and no guarantee as to their operating ability or their efficiency can be given.

Services
Water, mains gas and electricity are connected. The services, systems and appliances listed in this specification have not been tested by Liz Milsom Properties Ltd and no guarantee as to their operating ability or their efficiency can be given.

Measurements
Please note that room sizes are quoted in metres to the nearest tenth of a metre measured from wall to wall. The imperial equivalent is included as an approximate guide for applicants not fully conversant with the metric system. Room measurements are included as a guide to room sizes and are not intended to be used when ordering carpets or flooring.

Making An Offer
As part of our dedicated service to our Sellers, we ensure that all potential buyers are in a position to proceed with any offer they make and therefore ask any potential purchaser to speak with our Mortgage Advisor to discuss and establish how they intend to fund their mortgage for the purchase. We work closely with the Mortgage Advice Bureau who can offer Independent Financial Advice, helping you secure the best possible deal and potentially save you money. NB If you are making a cash offer, we will ask you to confirm the source and availability of your funds in order for Liz Milsom Properties to present your offer in the best possible light to our clients.

Property to Sell? Then why pay more?....

At Liz Milsom Properties, we provide an efficient and easy selling/buying process, with the use of latest computer and internet technology combined with unrivalled local knowledge and expertise. Put your trust in us, we have a proven track record of success – offering straight forward honest advice and extremely competitive fees.

Disclaimer
The particulars are set out as a general outline only for the guidance of intended purchasers or lessees, and do not constitute, any part of a contract. Nothing in these particulars shall be deemed to be a statement that the property is in good structural condition or otherwise nor that any of the services, appliances, equipment or facilities are in good working order. Purchasers should satisfy themselves of this prior to purchasing.

Important Information

  • This is a Freehold property.
  • This Council Tax band for this property is: B
  • EPC Rating is D

Property Ref: LMM.14634022

Share:

Similar Properties

Ladyfields Way, Newhall, Swadlincote

2 Bedroom Semi-Detached House | £175,000

***** LIZ MILSOM PROPERTIES ***** are delighted to bring to the market 7 Ladyfields Way, a well-presented two double bed...

Randall Drive, Swadlincote

3 Bedroom Semi-Detached House | £175,000

***** LIZ MILSOM PROPERTIES***** are delighted to bring 6 Randall Drive to the market. Offered with no upward chain, thi...

James Street, Midway, Swadlincote

3 Bedroom Terraced House | Guide Price £175,000

Three Double Bedroom Terraced Home | Spacious & Well-Presented | Private Rear Garden with Outbuildings & Summerhouse | O...

Partridge Drive, Swadlincote

2 Bedroom Semi-Detached House | £179,000

** LIZ MILSOM PROPERTIES ** are delighted to offer for this this two Bedroom SEMI-DETACHED HOME - IDEAL FOR FIRST TIME B...

Partridge Drive, Swadlincote

2 Bedroom Semi-Detached House | £179,000

** LIZ MILSOM PROPERTIES ** are delighted to offer for this this two Bedroom SEMI-DETACHED HOME - IDEAL FOR FIRST TIME B...

Winchester Drive, Linton DE12 6PP

3 Bedroom Semi-Detached Bungalow | £179,950

Liz Milsom Properties are delighted to offer for sale, this semi-detached bungalow, which is available for sale with no...

Liz Milsom - Swadlincote (Hartshorne)

2 Dinmore Grange, Hartshorne, Swadlincote, DE11 7NJ

01283 219336

How much is your home worth?

Use our short form to request a valuation of your property.

Request a Valuation

Mortgage Calculator

Amount Borrowed: £
Total Amount Repayable: £
Total Monthly Payment: £
©2026 The Guild of Property Professionals. All rights reserved. Terms and Conditions | Privacy Policy | Cookie Policy | Complaints Policy | Members Login
The Guild of Property Professionals Trading Address: 121 Park Lane, London W1K 7AG. GPEA Limited. Registered in England & Wales.  Company No: 02819824.  Registered Office Address: 2 St. Stephen's Court, St. Stephen's Road, Bournemouth, Dorset, England, BH2 6LA.  VAT Registration No: 576 8795 61
Book a Property Valuation Update Cookies Preferences