BELL STREET, SWANAGE

From
£220,000

3 Bedroom Residential Development for sale in Swanage

1 3 1
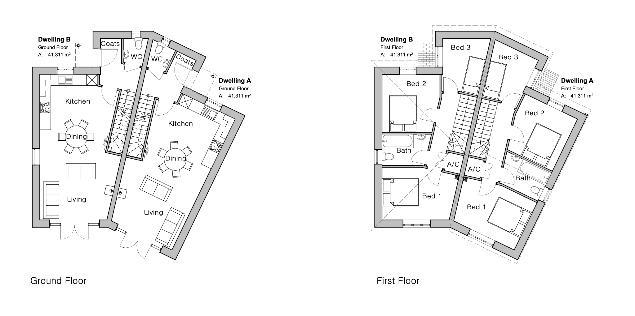
  • DUAL BUILDING PLOT IN ESTABLISHED RESIDENTIAL AREA
  • PERMISSION FOR A PAIR OF SEMI-DETACHED HOUSES WITH GARAGES & PARKING
  • VIEWS OF THE PURBECK HILLS
  • CLOSE TO OPEN COUNTRY & LOCAL AMENITIES
  • OPTION TO PURCHASE SINGLE GARAGE AND PARKING SPACE, FULL DETAILS AVAILABLE UPON REQUEST

This is a rare opportunity to acquire a dual building plot in an established residential area near the western outskirts of the town, close to local amenities. The plots have the advantage of good views over surrounding properties to the Purbeck Hills.

The site, which is shown on the attached plan was subject to planning permission ref: 6/2018/0459 granted after appeal, appeal ref: APP/B1225/W/19/3220929. A copy of the appeal document is available for inspection upon request.

The permission provides approval for a pair of semi-detached houses which will have the advantage of good views over surrounding properties to the Purbeck Hills.

The seaside town of Swanage is located at the Eastern tip of the Isle of Purbeck, delightfully situated between the Purbeck Hills. It has a safe, sandy beach and walkers and cyclists can enjoy the South West Coast Path as well as access to The Durlston Country Park. Swanage is some 10 miles from the market town of Wareham, which has main line rail links to London Waterloo (approx 2.5 hours). Much of the area surrounding the town is classified as being of Outstanding Natural Beauty incorporating the Jurassic Coast, which is part of the World Heritage Coastline.

PLOT MEASUREMENTS
Plot measurements approximately 0.74 acres (0.03 hectares), Depth 18.64m narrowing to 7.53m (61ft narrowing to 25ft), Length 21.6m (71ft).

COMMUNITY INFRASTRUCTURE LEVY (CIL)
The Dorset Council Community Infrastructure Levy (CIL) is £39,980.77. The purchaser of the site will be responsible for payment of this charge.

SERVICES
All mains services are available, although interested applicants are recommended to contact the various utility companies to obtain confirmation and connection charges.

NB. The vendors would be willing to consider selling a single garage and single car parking space which adjoins the land at a total price of £275,000. Full details available upon request.

VIEWING
By appointment only please through the Sole Agents, Corbens, 01929 422284. The postcode for this site is BH19 2RY.

Property Ref BEL2135

Important Information

  • This Council Tax band for this property is: TBC

Property Ref: CSWCC_693717

Share:

Similar Properties

BELL STREET, SWANAGE

3 Bedroom Plot | From £220,000

This is a rare opportunity to acquire a dual building plot in an established residential area near the western outskirts...

DE MOULHAM ROAD, SWANAGE

2 Bedroom Flat | £220,000

OFFERS INVITED. Well maintained modern first floor apartment in premier retirement complex approximately 150 metres from...

REMPSTONE ROAD, SWANAGE

1 Bedroom Flat | £215,000

Spacious top floor apartment is situated on a prominent corner site approximately 200 metres from the town centre and be...

HOBURNE PARK, SWANAGE

2 Bedroom Detached Bungalow | £225,000

Immaculately presented Park Home refurbished in recent years by the current owners. It has panoramic views over the town...

BELL STREET, SWANAGE

2 Bedroom Terraced House | £225,000

This Grade II Listed mid-terraced stone cottage is situated in one of the oldest parts of Swanage, close to open country...

REMPSTONE ROAD, SWANAGE

2 Bedroom Flat | £225,000

Immaculately presented modern second floor apartment in purpose built block approximately 200 metres from the town centr...

Corbens (Swanage)

41, Swanage, Dorset, BH19 1AD

01929 422284

How much is your home worth?

Use our short form to request a valuation of your property.

Request a Valuation

Mortgage Calculator

Amount Borrowed: £
Total Amount Repayable: £
Total Monthly Payment: £
©2026 The Guild of Property Professionals. All rights reserved. Terms and Conditions | Privacy Policy | Cookie Policy | Complaints Policy | Members Login
The Guild of Property Professionals Trading Address: 121 Park Lane, London W1K 7AG. GPEA Limited. Registered in England & Wales.  Company No: 02819824.  Registered Office Address: 2 St. Stephen's Court, St. Stephen's Road, Bournemouth, Dorset, England, BH2 6LA.  VAT Registration No: 576 8795 61
Book a Property Valuation Update Cookies Preferences