Rockingham Court, Towton, Tadcaster

£495,000
SSTC
This property listing is now SSTC

5 Bedroom Detached House for sale in Tadcaster

2 5 2
  • Five Bedroom Detatched
  • Open plan Kitchen
  • Double Driveway
  • Modern Property
  • Fantastic Location
  • Garage
  • EPC - C
  • Council tax band - F

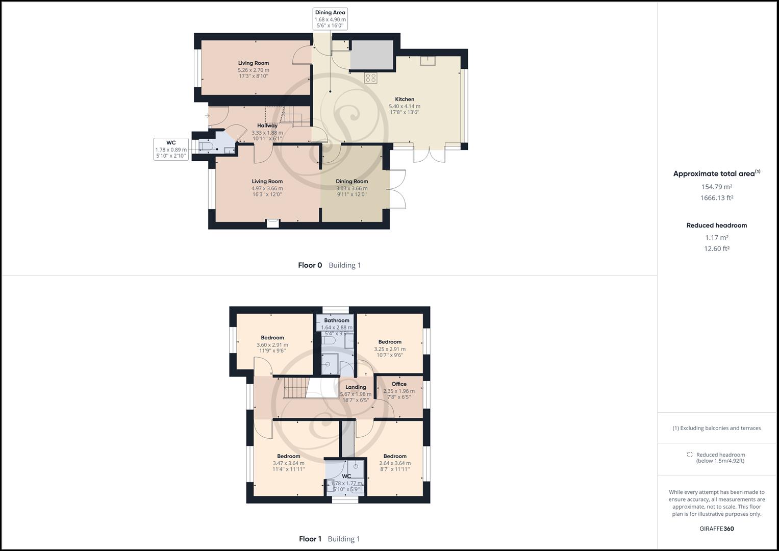
Stoneacre Properties are delighted to offer for sale a stunning five bedroom detached property set in the lovely village of Towton surrounded by countryside and pleasant walks. It has easy access to both Leeds and York and the M1 and A1. Leeds city centre is 15 minutes by car. There are excellent schools in the area both primary and secondary. This property briefly comprises a spacious lounge through diner, second reception/tv room, downstairs w/c, modern kitchen with kitchen island/breakfast bar with access on to the model rear garden fitted with composite decking, artificial grass and water feature. To the first floor, master bedroom with fitted wardrobes and en-suite wet room, second double bedroom with fitted wardrobes, two further double bedrooms, fifth smaller single/office room and house bathroom with walk in shower and bath. Double driveway to the front of the property and garage.

Entrance - Entering the property you are welcomed into the entrance hallway which offers access the w/c lounge/diner and the kitchen.

W/C - Downstairs w/c comprises toilet and sink.

Lounge/Diner - Accessed via the hallway and kitchen is this well presented and open lounge/diner offering ample space for a formal seating area and a generous sized dining area with french doors out to the rear garden.

Kitchen - Modern and spacious kitchen comprises shaker style wall and base units and comprises integrated fridge/freezer dishwasher, range cooker and central island with breakfast bar seating all finished with solid worktops. The kitchen offers space for an informal dining area and access to the rear garden/decking, reception room 2 and utility/storage cupboard.

Reception Room 2 - Large second reception room is ideal for a games room or playroom.

Primary Bedroom - Large double bedroom with fitted storage and dressing area and en-suite bathroom.

En-Suite - Comprises shower, toilet and sink.

Bedroom 2 - Second spacious double with fitted storage.

Bedroom 3 - Third large double bedroom with fitted storage.

Bedroom 4 - Final double bedroom with fitted storage.

Bedroom 5 - Single bedroom also ideal for a home office.

Bathroom - Well presented 4-piece bathroom with bath, walk in shower, toilet and sink.

External - Externally, the property boasts a spacious front driveway and single detached garage with side access to the rear. To the rear is a low maintenance garden with two raised decked areas and AstroTurf lawn.

Property Ref: 478966_34211485

Share:

Similar Properties

St. Matthews Walk, Leeds

4 Bedroom Semi-Detached House | Offers Over £495,000

*** EXCEPTIONAL, EXTENDED FAMILY HOME - FULLY REFURBISHED - NO ONWARD CHAIN *** Stoneacre Properties are pleased to offe...

Chelwood Drive, Leeds

5 Bedroom Semi-Detached House | £468,000

*** FIVE BEDROOM, THREE BATHROOM SEMI DETACHED HOUSE *** POPULAR LS8 AREA JUST OFF STREET LANE *** NO CHAIN *** Stoneacr...

Potternewton Lane, Chapel Allerton, Leeds

4 Bedroom Block of Apartments | £450,000

***UNIQUE FREEHOLD INVESTMENT OPPORTUNITY *** NEW ROOF RECENTLY FITTED *** Stoneacre Properties are delighted to offer f...

Sandfield Avenue, Leeds

4 Bedroom Semi-Detached House | £575,000

Nestled in the tranquil cul-de-sac of Sandfield Avenue, Leeds, this superbly extended semi-detached home offers an ideal...

The Fairway, Leeds

4 Bedroom Semi-Detached House | £595,000

*** PRIME ALWOODLEY LOCATION *** Stoneacre Properties are delighted to present this charming semi-detached house located...

Grangewood Gardens, Leeds

4 Bedroom Detached House | £650,000

Nestled in the tranquil cul-de-sac of Grangewood Gardens, Leeds, this wonderfully presented four-bedroom detached house...

Stoneacre Properties (Leeds)

Chapel Allerton, Leeds, West Yorkshire, LS7 4NZ

0113 2370999

How much is your home worth?

Use our short form to request a valuation of your property.

Request a Valuation

Mortgage Calculator

Amount Borrowed: £
Total Amount Repayable: £
Total Monthly Payment: £
©2026 The Guild of Property Professionals. All rights reserved. Terms and Conditions | Privacy Policy | Cookie Policy | Complaints Policy | Members Login
The Guild of Property Professionals Trading Address: 121 Park Lane, London W1K 7AG. GPEA Limited. Registered in England & Wales.  Company No: 02819824.  Registered Office Address: 2 St. Stephen's Court, St. Stephen's Road, Bournemouth, Dorset, England, BH2 6LA.  VAT Registration No: 576 8795 61
Book a Property Valuation Update Cookies Preferences