Whitchurch, Tavistock

Guide Price
£265,000
SSTC
This property listing is now SSTC

3 Bedroom Semi-Detached House for sale in TAVISTOCK

3 3 1
  • Extended Semi Detached Home
  • Three Good Sized Bedrooms
  • Three Reception Rooms
  • Kitchen/Breakfast Room
  • Family Bathroom with Shower
  • Gas Central Heating & Double Glazing
  • Enclosed Gardens
  • Garage & Parking
  • Close to Town Centre

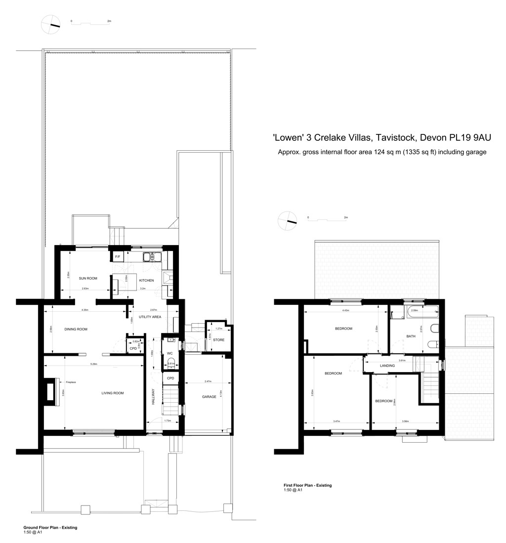
Situated on the edge of the town centre of Tavistock, this spacious extended home enjoys over 1300sq ft of accommodation with three good sized bedrooms and three reception rooms. Downstairs is a bright and airy sitting room opening into a dining room and a garden/playroom with access to the garden, which is ideal for a growing family. The extended kitchen/breakfast room has a useful breakfast bar as well as a utility area with plenty of storage. A downstairs cloakroom completes the ground floor. Upstairs there are three good sized bedrooms with the master bedroom having fitted wardrobes. The family bathroom is spacious and has a bath and separate shower enclosure. There are PVCu double glazed windows throughout and gas fired central heating. 

Externally there are enclosed gardens to the rear with a raised deck from the sun/play room leading to lawn and patio area. A gravelled area at the side leads to a store and into the back of the garage. At the front is a a small garden with driveway for one car to the side and a single attached garage. The property would be an ideal first time buy for someone looking to get on the property ladder.

Pvcu double glazed entrance door to:

ENTRANCE HALL
Staircase to the first floor, radiator, understairs storage cupboard.

CLOAKROOM
White suite comprising low flush w.c, wash and basin with mixer tap and cupboards under, tiled flooring, double glazed window to side.

KITCHEN/BREAKFAST ROOM
4.353m x 2.641m (14'3" x 8'7") extending to 3.294m (10'9")
Good sized kitchen with a range of base units and drawers under roll edge work surfaces, matching wall cupboards, tiled surrounds, space for range cook with cooker hood over, integrated fridge/freezer, breakfast bar, space and plumbing for washing machine and tumble dryer, radiator, coved ceiling, double glazed window to rear, door to garden room, archway to:

DINING ROOM
4.415m x 2.579m (14'5" x 8'5")
Coved ceiling, storage cupboard, opening to garden room and opening to:

SITTING ROOM
5.276m x 3.919m (17'3" x 12'10")
Double glazed window to front, feature decorative fireplace with tiled hearth, coved ceiling, dado rail.

GARDEN ROOM
2.554m x 2.624m (8'4" x 8'7")
A handy extra reception room with double glazed sliding patio door to the garden, coved ceiling, radiator, doorway to kitchen.

FIRST FLOOR LANDING
Double glazed window to side, radiator, access to loft space with boarding.

MASTER BEDROOM
3.931m x 3.276m (8'7" x 10'8")
Double glazed window to front, fitted mirror fronted sliding wardrobes, radiator, coved ceiling.

BEDROOM TWO
4.411m x 2.554m (14'5" x 8'4")
Double glazed window to rear, radiator, coved ceiling.

BEDROOM THREE
3.552m max  x 2.930m (11'7" x 9'7")
Double glazed window to front, over stairs storage cupboard, coved ceiling, radiator.

BATHROOM
2.628m x 2.587m (8'7" x 8'5")
White suite comprising panelled bath, separate shower enclosure with glazed screen and door, electric shower, pedestal wash hand basin, low flush w.c, part tiled walls, coved ceiling, radiator, double glazed window to rear.

EXTERNAL
Enclosed garden to the rear with small raised deck area from garden room with steps down to brick pathway giving access to lawn with flower borders and a gravel patio to the side with border, steps up to small outhouse and door to rear of garage. Outside tap.  

FRONT
Gate from road with step down to path leading to front door, the front garden is enclosed by wall and laid to gravel. Driveway to the side with parking for one car leads to:

GARAGE
4.226m x 2.469m (13'10" x 8'1")
Up and over door, power and light, pedestrian door to rear.

SERVICES
Mains electric/gas/water/drainage.       

OUTGOINGS
We understand the property is in band 'B' for council tax purposes by internet enquiry with West Devon Borough Council.       

VIEWING
By appointment with Kirby Estate Agents on 01822 612010.

MOBILE AND BROADBAND COVERAGE
To check broadband and mobile phone coverage please visit Ofcom here:
ofcom.org.uk/phones-telecoms-and-internet/advice-for-consumers/advice/ofcom-checker

FLOOR PLAN DISCLAIMER
These plans are set out as a guideline only and should not be relied upon as a representation of fact. They are intended for information purposes only and are not to scale.      

TENURE
Freehold.          

PLEASE NOTE
We may refer buyers and sellers through our panel of Conveyancers. It is your decision whether you choose to use their services. Should you decide to use their services you should know that we would receive a referral fee of £150 from them for recommending you. As we provide them with a regular supply of work you benefit from a competitive price.

We also refer buyers and sellers to our Financial Advisers. It is your decision whether you choose to use their services. Should you decide to use any of their services you should be aware that we would receive a average referral fee of £200 from them for recommending you.

You are not under any obligation to use the services of any of the recommended providers, though should you accept our recommendation the provider is expected to pay us the corresponding referral fee.

Prior to a sale being agreed and solicitors instructed, prospective purchasers will be required to produce identification documents to comply with Money Laundering regulations.

MONEY LAUNDERING
Before any sale is formally agreed, we have a legal obligation under the Money Laundering regulations and Terrorist Financing Act 2017 to obtain proof of your identity and of your address, take copies and retain on file for five years and will only be used for this purpose.

We carry out this through a secure platform to protect your data. Each purchaser will be required to pay £20 upon an offer verbally being agreed to carry out these checks prior to the property being advertised as sale agreed.

what3words: gown.areas.hints

Important Information

  • This is a Freehold property.
  • This Council Tax band for this property is: B

Property Ref: L816545

Share:

Similar Properties

Mary Tavy, Tavistock

3 Bedroom Semi-Detached House | Guide Price £265,000

An extended THREE BEDROOM semi-detached home in MARY TAVY, with TWO PARKING SPACES, spacious KITCHEN/DINER, downstairs C...

Horrabridge, Yelverton

3 Bedroom Semi-Detached House | Guide Price £260,000

THREE BEDROOM semi detached house situated in a CUL-DE-SAC location within the moorland village of HORRABRIDGE with NO O...

Tavistock

3 Bedroom End of Terrace House | Guide Price £255,000

THREE BEDROOM end terrace property with NO ONWARD CHAIN in TAVISTOCK, walking distance to TOWN CENTRE with pleasant VIEW...

Buckland Monachorum, Yelverton

4 Bedroom Terraced House | Guide Price £300,000

A spacious FOUR BEDROOM property in BUCKLAND MONACHORUM with parking for THREE CARS, large CONSERVATORY, two bathrooms a...

Gunnislake, Cornwall

3 Bedroom Cottage | £300,000

A quirky CHARACTER cottage in Middle Dimson, GUNNISLAKE. With an OPEN PLAN feel, garden room, pretty LANDSCAPED GARDEN,...

South Brentor, Tavistock

2 Bedroom Barn Conversion | Offers in excess of £300,000

TWO bedroomed BARN CONVERSION on DARTMOOR with a beautiful RURAL OUTLOOK and NO ONWARD CHAIN. PARKING for 2 cars and GAR...

Kirby Estate Agents (Tavistock)

Rowden Wood Road, Pitts Cleave, Tavistock, Devon, PL19 0NU

01822 612010

How much is your home worth?

Use our short form to request a valuation of your property.

Request a Valuation

Mortgage Calculator

Amount Borrowed: £
Total Amount Repayable: £
Total Monthly Payment: £
©2026 The Guild of Property Professionals. All rights reserved. Terms and Conditions | Privacy Policy | Cookie Policy | Complaints Policy | Members Login
The Guild of Property Professionals Trading Address: 121 Park Lane, London W1K 7AG. GPEA Limited. Registered in England & Wales.  Company No: 02819824.  Registered Office Address: 2 St. Stephen's Court, St. Stephen's Road, Bournemouth, Dorset, England, BH2 6LA.  VAT Registration No: 576 8795 61
Book a Property Valuation Update Cookies Preferences