Tavistock

Guide Price
£235,000
SSTC
This property listing is now SSTC

2 Bedroom Retirement Property for sale in TAVISTOCK

1 2 1
  • Second Floor Retirement Apartment
  • Two Double Bedrooms
  • Sitting Room with Juliet Balcony
  • Separate Dining Area
  • Kitchen with Integrated Appliances
  • Bathroom with Bath & Separate Shower Cubicle
  • Owners Lounge and Laundry, Lift to All Floors
  • Communal Parking & Gardens
  • Close to Town Centre

A second floor apartment situated in the popular gated McCarthy and Stone retirement development within easy reach of Tavistock town centre and all its facilities. The apartment is situated on the top floor and is one of the larger properties on this development with accommodation briefly comprising entrance hall, living room with separate dining area and Juliet balcony, kitchen with built in appliances, two double bedrooms and bathroom with separate shower cubicle.

There is also an entry phone system, communal lift to all floors and the development benefits from a residents lounge with kitchen area, laundry and waste disposal facilities, guest suite, house manager and twenty four hour emergency care line system. The development is set within communal gardens and there is communal parking available.

COMMUNAL ENTRANCE
Entry phone system gives access to communal hallway with lift and stair access to all floors.

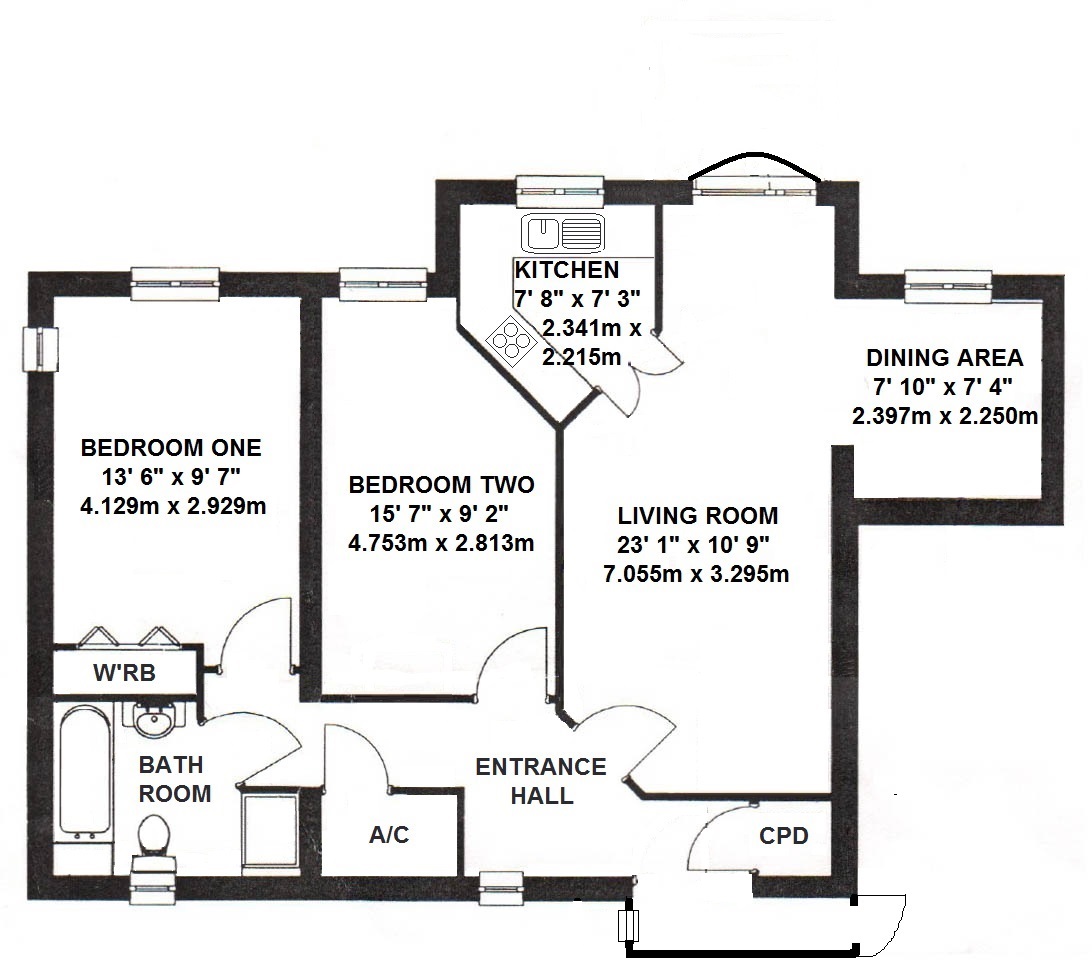
ENTRANCE HALL
Good sized entrance hall with two double glazed windows to the rear, night storage heater, coved ceiling, walk in storage cupboard with light, entry phone system, airing cupboard with electric hot water tank, shelving and light.

LIVING ROOM
7.055m x 3.295m (23'1" x 10'9")
Double glazed door and window with Juliet balcony with wrought iron work, decorative marble effect fireplace with electric log effect fire, coved ceiling, night storage heater with manual over ride,  TV point, dimmer switches for ceiling light fittings, double doors to kitchen, opening to:

DINING AREA
2.397m x 2.250m (7'10" x 7'4")
Coved ceiling, double glazed window to side, night storage heater.

KITCHEN
2.341m x 2.215m (7'8" x 7'3")
Fitted with a range of base units and drawers under rolled edge work surfaces, matching wall cupboards and tiled surrounds, concealed work surface lighting, wall mounted fan heater, integrated fridge and freezer, built in oven and separate halogen hob with cooker hood over, inset stainless steel sink unit with mixer tap and single drainer, coved ceiling, double glazed window to side.

BEDROOM TWO
4.753m x 2.813m (15'7" x 9'2")
Double glazed window to side, coved ceiling, electric panel heater.

MASTER BEDROOM
4.129m x 2.929m (13'6" x 9'7")
Double aspect room with double glazed window to side and rear, coved ceiling, double built in wardrobe with folding mirror fronted doors, night storage heating.

BATHROOM
Suite in white with fully tiled walls comprising panelled bath with grab rail, separate shower cubicle with mains shower and glazed door, wash hand basin with vanity cupboard under and fixed mirror with light and shaver point over, low flush WC, extractor fan, heated towel rail, wall mounted fan heater, double glazed window to side.

COMMUNAL FACILITIES
The development has the benefit of a residents lounge with associated kitchen. There is also a laundry and waste disposal facility on the ground floor for the residents use. For visiting guests, there is a guest suite on the ground floor which can be used by the residents families and friends. Externally the development is approached via electronic gates with pedestrian side gate providing access to the communal parking area and gardens. We understand there is a house manager on site during the day and there is the back up of a 24 hour emergency call system from the apartments.

LEASE INFORMATION
125 years from 1st February 2008.

Upon selling the seller pays 1% to the freeholder.

SERVICE CHARGES
We understand that the service charge is payable every six months:-

March 2025 £2,134.85

September 2024  £2,093.28  

Ground Rent—£495 per year.

SERVICES
Mains electric/water/drainage.       

OUTGOINGS
We understand the property is in band 'C' for council tax purposes by internet enquiry with West Devon Borough Council.

VIEWING
By appointment with Kirby Estate Agents on 01822 612010.

MOBILE AND BROADBAND COVERAGE
To check broadband and mobile phone coverage please visit Ofcom here:
ofcom.org.uk/phones-telecoms-and-internet/advice-for-consumers/advice/ofcom-checker

FLOOR PLAN DISCLAIMER
These plans are set out as a guideline only and should not be relied upon as a representation of fact. They are intended for information purposes only and are not to scale.

TENURE
Leasehold.          

PLEASE NOTE
We may refer buyers and sellers through our panel of Conveyancers. It is your decision whether you choose to use their services. Should you decide to use their services you should know that we would receive a referral fee of £150 from them for recommending you. As we provide them with a regular supply of work you benefit from a competitive price.

We also refer buyers and sellers to our Financial Advisers. It is your decision whether you choose to use their services. Should you decide to use any of their services you should be aware that we would receive a average referral fee of £200 from them for recommending you.

You are not under any obligation to use the services of any of the recommended providers, though should you accept our recommendation the provider is expected to pay us the corresponding referral fee.

Prior to a sale being agreed and solicitors instructed, prospective purchasers will be required to produce identification documents to comply with Money Laundering regulations.

MONEY LAUNDERING
Before any sale is formally agreed, we have a legal obligation under the Money Laundering regulations and Terrorist Financing Act 2017 to obtain proof of your identity and of your address, take copies and retain on file for five years and will only be used for this purpose.

We carry out this through a secure platform to protect your data. Each purchaser will be required to pay £20 upon an offer verbally being agreed to carry out these checks prior to the property being advertised as sale agreed.

 

 

 

 

 

what3words: galaxy.mini.spared

Important Information

  • This is a Leasehold property.
  • The annual cost for the ground rent on this property is £495
  • The annual service charges for this property is £4228
  • This Council Tax band for this property is: C

Property Ref: 7101_L817550

Share:

Similar Properties

Buckland Monachorum, Yelverton

2 Bedroom Terraced House | Guide Price £230,000

A well presented TWO DOUBLE bedroom home in BUCKLAND MONACHORUM, with stylish KITCHEN and SHOWER ROOM, SOUTH FACING gard...

Tavistock

2 Bedroom Retirement Property | Guide Price £225,000

A GROUND FLOOR TWO bedroom RETIREMENT APARTMENT in Tavistock town centre, with NO ONWARD CHAIN & private access

Plympton

2 Bedroom Terraced House | Guide Price £210,000

TWO BEDROOM mid terraced home situated in the heart of Plympton with NO ONWARD CHAIN.

Princetown, Yelverton

3 Bedroom End of Terrace House | £240,000

A modern THREE bedroom property with DRIVEWAY for 2 cars, GARDEN & MASTER EN SUITE. Perfect for walking on DARTMOOR.

Tavistock

2 Bedroom Retirement Property | Guide Price £240,000

A spacious and very well presented GROUND FLOOR TWO bedroom RETIREMENT APARTMENT in Tavistock town centre, with NO ONWAR...

Whitchurch, Tavistock

2 Bedroom Cottage | £240,000

TWO bedroom cottage situated in WHITCHURCH, with incredible VIEWS over fields from the garden and the house. NO ONWARD C...

Kirby Estate Agents (Tavistock)

Rowden Wood Road, Pitts Cleave, Tavistock, Devon, PL19 0NU

01822 612010

How much is your home worth?

Use our short form to request a valuation of your property.

Request a Valuation

Mortgage Calculator

Amount Borrowed: £
Total Amount Repayable: £
Total Monthly Payment: £
©2026 The Guild of Property Professionals. All rights reserved. Terms and Conditions | Privacy Policy | Cookie Policy | Complaints Policy | Members Login
The Guild of Property Professionals Trading Address: 121 Park Lane, London W1K 7AG. GPEA Limited. Registered in England & Wales.  Company No: 02819824.  Registered Office Address: 2 St. Stephen's Court, St. Stephen's Road, Bournemouth, Dorset, England, BH2 6LA.  VAT Registration No: 576 8795 61
Book a Property Valuation Update Cookies Preferences