The Berrells, Tetbury

£595,000

3 Bedroom Detached House for sale in Tetbury

2 3 2
  • Private and secure front and rear gardens
  • Shepherd hut/home office
  • Ample off-street parking and garage
  • Dual-aspect living room
  • Open plan kitchen/family room
  • Bathroom and shower room
  • 3 double bedrooms
  • 10-minute walk to the town centre
  • Highly desirable no-through lane
  • Detached chalet home

Description
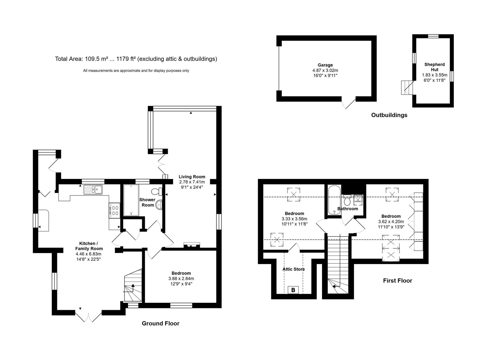
Newhaven is a detached chalet home nestled within a highly desirable and peaceful area of Tetbury. The Berrells is a private no-through lane situated beside the beautiful Cutwell valley whilst the town centre is only a 10-minute walk away. Formerly a bungalow which was significantly extended including a loft conversion, the property sits comfortably within a private plot benefitting from both front and rear gardens. The accommodation extends to around 1,179 sq.ft across the two floors. 
 
The living accommodation principally comprises two large, dual-aspect open plan rooms. The kitchen adjoins a family room with patio doors leading out to a sheltered timber decking perfectly designed for 'inside-outside' living. The living room layout includes a cosy sitting area plus an all-weather conservatory overlooking the rear garden. There is a ground floor bedroom alongside a shower room offering versatility as a 'future proof' home. Upstairs, there are two further double bedrooms and a bathroom. 
 
Newhaven has the excellent advantage of plenty of private parking. In addition to a gated front driveway, there is a rear driveway in front of a detached garage. The garage has lighting and power connected. A converted shepherds hut is positioned by the front driveway which also has power connections making it a charming home office. The private and secure rear garden has been thoughtfully landscaped with a patio terrace and lawn framed by vibrant borders. 
Situation
Tetbury is a thriving historic Cotswold market town with much of it dating back to the 17th and 18th Centuries. The town has a broad range of shops and amenities for everyday needs as well as a number of quality antique shops, excellent hotels, restaurants and cafes within the town centre. Further everyday needs include a large supermarket, hospital, surgeries and post office whilst there are also excellent schools catering for all ages. Voted by Country Life magazine recently as the third most desirable town in the country, Tetbury is situated within an Area of Outstanding Natural Beauty and is surrounded by delightful Cotswold Countryside where there are ample opportunities for walking, shooting and hunting. Conveniently located less than half an hour from both the M4 and M5 motorway, Tetbury is within easy reach of Cirencester, Cheltenham, Bath, Bristol and Swindon. Close by is the beautiful Forest Commission run Westonbirt Arboretum and King Charles' Highgrove Estate. There is good access to nearby Kemble Railway Station which provides regular fast services to London and other regional centres.
Additional Information
The property is Freehold with mains gas central heating, mains drainage, water and electricity. The property is located within the Cotswold Area of Outstanding Natural Beauty. Superfast broadband is available and there are some limitations to mobile phone coverage. Information taken from the Ofcom mobile and broadband checker website, please check the website for more information. Cotswold District Council Tax Band D.

Important Information

  • This is a Freehold property.
  • This Council Tax band for this property is: D

Property Ref: 962531

Share:

Similar Properties

The Street, Shipton Moyne

2 Bedroom Bungalow | Guide Price £595,000

Set within a large well-established 0.20 acre plot in this highly sought after village, this 1960's detached bungalow le...

Hollis Gardens, Luckington

3 Bedroom Detached House | £595,000

Situated within a desirable mature close, this detached modern house has extended accommodation with further potential t...

The Tarters, Sherston

4 Bedroom Detached House | £595,000

Located in easy proximity of the High Street with lovely views of the church, a detached versatile 3/4 bedroom family ho...

Kington St. Michael

3 Bedroom Semi-Detached House | Offers Over £600,000

A pretty traditional period cottage within a large sunny plot with PLANNING PERMISSION to build a second dwelling. NO CH...

Bath Road, Tetbury

3 Bedroom Detached House | £615,000

Occupying an excellent position close to the town centre and lovely countryside walks, an individual detached house whic...

The Green, Christian Malford

4 Bedroom Detached House | £625,000

Situated off The Green in the centre of this popular village community close to amenities, an immaculately presented det...

James Pyle & Co (Sherston)

Swan Barton, Sherston, Wiltshire, SN16 0LJ

01666 840886

How much is your home worth?

Use our short form to request a valuation of your property.

Request a Valuation

Mortgage Calculator

Amount Borrowed: £
Total Amount Repayable: £
Total Monthly Payment: £
©2026 The Guild of Property Professionals. All rights reserved. Terms and Conditions | Privacy Policy | Cookie Policy | Complaints Policy | Members Login
The Guild of Property Professionals Trading Address: 121 Park Lane, London W1K 7AG. GPEA Limited. Registered in England & Wales.  Company No: 02819824.  Registered Office Address: 2 St. Stephen's Court, St. Stephen's Road, Bournemouth, Dorset, England, BH2 6LA.  VAT Registration No: 576 8795 61
Book a Property Valuation Update Cookies Preferences