The Orchard, Tetbury

£875,000

4 Bedroom Detached House for sale in Tetbury

3 4 2
  • Easy walking distance to amenities
  • Garage with power
  • Easy to maintain garden with fantastic privacy
  • Light filled kitchen/dining/family room
  • Cosy living room with wood-burner
  • 4 bedrooms, 2 bathrooms
  • Impressive accommodation with a social configuration
  • Combining characterful period features with a contemporary finish
  • Unique detached house

Description
This unique detached house presents the perfect architectural harmony of combining a former period character cottage with a light and airy contemporary home. The Orchard is an exclusive enclave comprising only 4 individual homes discreetly located in the heart of Tetbury within a highly desirable peaceful residential area just a short walk from amenities. The property has been significantly upgraded by the current owners creating an impressive, standalone home with beautifully presented accommodation which flows from room to room. 
 
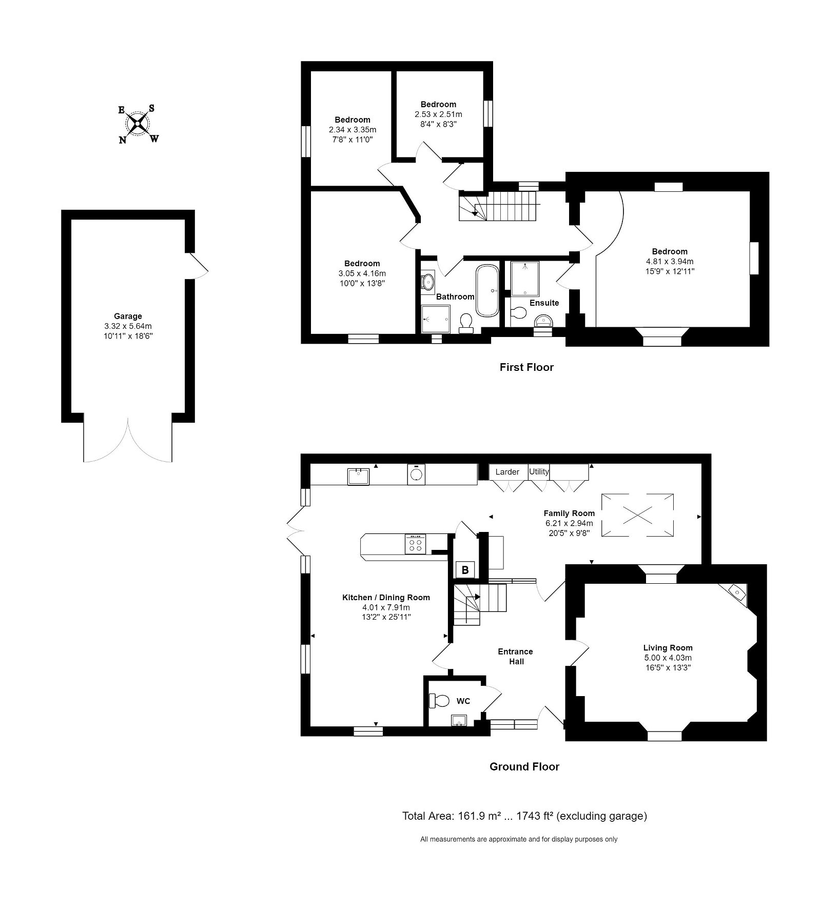
An entrance hall opens to the ground floor featuring flagstone flooring and a timber staircase whilst the eye is immediately drawn to the glazed aspect leading to the kitchen/family room. Boasting underfloor heating, the family room is flooded by natural light from a lantern rooflight above complete with bespoke light fixtures. The kitchen boasts a social layout arranged as open to both the family room and dining room while French doors connect the accommodation to the garden. The bespoke fitted kitchen is equipped with integrated appliances and accompanied by a fitted larder and utility cupboard. Off the entrance hall there is a downstairs WC. Within the original cottage part of the house there is a cosy living room showcasing a plethora of character with exposed stone walls, timber beams and a wood-burning stove. Upstairs, the principal bedroom is also located in the older part of the house with an exposed beamed ceiling and has the benefit of an en-suite shower room. There are three further bedrooms comprising two doubles and one single. The family bathroom has been updated with a separate shower unit and a magnificent chrome finish free-standing bath. 
 
Externally, the property has the advantage of private parking in front of a garage which has power, lighting and eaves storage above. The garden is a charming secluded area to enjoy with a great degree of privacy bound by natural stone walling. The garden is thoughtfully landscaped for low maintenance with a patio terrace, lawn and raised timber beds. 
Situation
Tetbury is a thriving historic Cotswold market town with much of it dating back to the 17th and 18th Centuries. The town has a broad range of shops and amenities for everyday needs as well as a number of quality antique shops, excellent hotels, restaurants and cafes within the town centre. Further everyday needs include a large supermarket, hospital, surgeries and post office whilst there are also excellent schools catering for all ages. Voted by Country Life magazine recently as the third most desirable town in the country, Tetbury is situated within an Area of Outstanding Natural Beauty and is surrounded by delightful Cotswold Countryside where there are ample opportunities for walking, shooting and hunting. Conveniently located less than half an hour from both the M4 and M5 motorway, Tetbury is within easy reach of Cirencester, Cheltenham, Bath, Bristol and Swindon. Close by is the beautiful Forest Commission run Westonbirt Arboretum and King Charles' Highgrove Estate. There is good access to nearby Kemble Railway Station which provides regular fast services to London and other regional centres.
Additional Information
We understand the property is Freehold with mains gas central heating, mains drainage, water and electricity. The property is located within the Cotswold Area of Outstanding Natural Beauty. Superfast broadband is available and very good mobile phone coverage. Information taken from the Ofcom mobile and broadband checker website, please check the website for more information. Cotswold District Council Tax Band E.

Important Information

  • This is a Freehold property.
  • This Council Tax band for this property is: E

Property Ref: 840590

Share:

Similar Properties

The Street, Grittleton

3 Bedroom Detached House | £850,000

Occupying a charming position beside the village church, this beautiful detached period cottage offers elegant, characte...

High Street, Sutton Benger

4 Bedroom Cottage | £850,000

Set within a south-facing position amongst wraparound gardens, a charming detached thatched cottage which has been sympa...

Lea, near Malmesbury

4 Bedroom Detached House | £849,000

Nearing completion and available to view now! An exceptional brand-new detached house, individually constructed on the e...

West End, Avening

4 Bedroom Detached House | £895,000

Peacefully positioned on the edge of Avening commanding an elevated position with outstanding views, a charming detached...

Park Lane, Ford

5 Bedroom Detached House | £895,000

Nestled within the Cotswold village of Ford occupying a large 0.41 acre plot against a beautiful woodland backdrop, a su...

Park Street, Charlton

4 Bedroom Barn Conversion | £895,000

Hidden away in a private setting with a secluded landscaped garden, this impressive period barn conversion has been upgr...

James Pyle & Co (Sherston)

Swan Barton, Sherston, Wiltshire, SN16 0LJ

01666 840886

How much is your home worth?

Use our short form to request a valuation of your property.

Request a Valuation

Mortgage Calculator

Amount Borrowed: £
Total Amount Repayable: £
Total Monthly Payment: £
©2026 The Guild of Property Professionals. All rights reserved. Terms and Conditions | Privacy Policy | Cookie Policy | Complaints Policy | Members Login
The Guild of Property Professionals Trading Address: 121 Park Lane, London W1K 7AG. GPEA Limited. Registered in England & Wales.  Company No: 02819824.  Registered Office Address: 2 St. Stephen's Court, St. Stephen's Road, Bournemouth, Dorset, England, BH2 6LA.  VAT Registration No: 576 8795 61
Book a Property Valuation Update Cookies Preferences