Silver Street, Tetsworth

£325,000
SSTC
This property listing is now SSTC

4 Bedroom Detached House for sale in Tetsworth

3 4 3
  • Residential Development Opportunity
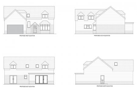
  • Planning for A Four Bed Detached Home Circa 2150 sq.ft
  • Full Planning Approval Ref P23/S2185/FUL
  • Freehold
  • Existing Property Council Tax Band C/EPC F(35)
  • Integral Garage & Off-Road Parking
  • Non-Mortgage/Cash Buyers Only
  • Popular No-Through Road Location

An exciting opportunity to acquire a development plot with full planning permission to demolish the existing dwelling and erect a new build four bedroom detached home with integral garage. The new dwelling will be circa 200 sq.M (2150 sq.ft). The property has been bought forward on the plot to create a larger rear garden. Full application plans can be found on South Oxfordshire’s planning portal under reference - P23/S2185/FUL. PLEASE BE AWARE that the existing bungalow is in a poor state of repair and is a non-standard ‘Woolaway’ system-built property. As a result of this we are seeking non-mortgage/cash buyers only.

About Tetsworth

Tetsworth is centred around a large village green with a number of local amenities and activities on offer. There is an impressive newly refurbished village hall that puts on a number of events throughout the year. Overlooking the village green is the Red Lion Public House which also offers the community a well-stocked shop for day-to-day essentials. For those with children Tetsworth has a popular Primary School with Pre-school and the village green has a children’s play area. For the commuter, junctions 6 and 8 of the M40 are within easy reach, and the excellent Oxford Tube bus service stops at the Lewknor Turn and offers a frequent service to London. Haddenham and Thame Parkway Station is approximately 8 miles away.

Material Information

Relating to the Existing Dwelling. Tenure - Freehold Council Tax Band - C £1971 2023/24 Broadband - FTTC (fibre to cabinet) Parking - Off Road Parking & Garage Sewerage - Mains Heating - Oil Fired Health & Safety - Asbestos is know to be present in the floor tiles and on the shed roof. Council tax information is sourced directly from the council & government database. Tenure information and any associated charges are provided to the best of our vendor’s knowledge. Type of broadband is sourced from the 'Openreach fibre checker' website and indications on available internet speeds and mobile phone coverage can be found using Ofcom's 'mobile & broadband checker'. Please seek independent legal advice for clarification.

Important Information

  • This is a Freehold property.
  • This Council Tax band for this property is: C

Property Ref: 1152541

Share:

Similar Properties

Yeats Lodge, Greyhound Lane, Thame, OX9 3LY

1 Bedroom Apartment | £325,000

1-Bed Apartment with South Facing Juliet Balcony – An immaculately presented fully redecorated first-floor apartment in...

Lambert Walk, Thame

3 Bedroom End of Terrace House | From £325,000

Three-Bedroom Home with Garden & Garage – Central Thame Location

Wellington Street, Thame, Oxfordshire, OX9 3BW

2 Bedroom Terraced Bungalow | £325,000

A well-maintained two-bedroom bungalow offered with vacant possession, just a short walk from Thame town centre. Featuri...

Greyhound Lane, Thame

1 Bedroom Apartment | £335,000

Beyond a Standard 1-Bed – Extra Space for Dining, Hobbies, or Home Office! An immaculately presented first-floor apartme...

Ireton Court, Thame, Oxfordshire, OX9 3EB

3 Bedroom Terraced House | £340,000

Spacious Mid-Terrace Family Home with Generous Garden and Modern Upgrades

Chinnor Road, Thame

2 Bedroom End of Terrace House | £350,000

Set on a quiet cul-de-sac, this well-maintained two-bedroom end-terrace home boasts a large primary double bedroom and a...

White Lion Residential (Tetsworth)

High Street, Tetsworth, Oxfordshire, OX9 7AS

01844 280000

How much is your home worth?

Use our short form to request a valuation of your property.

Request a Valuation

Mortgage Calculator

Amount Borrowed: £
Total Amount Repayable: £
Total Monthly Payment: £
©2026 The Guild of Property Professionals. All rights reserved. Terms and Conditions | Privacy Policy | Cookie Policy | Complaints Policy | Members Login
The Guild of Property Professionals Trading Address: 121 Park Lane, London W1K 7AG. GPEA Limited. Registered in England & Wales.  Company No: 02819824.  Registered Office Address: 2 St. Stephen's Court, St. Stephen's Road, Bournemouth, Dorset, England, BH2 6LA.  VAT Registration No: 576 8795 61
Book a Property Valuation Update Cookies Preferences