Ballantyne Road, Thackley,

Offers in region of
£215,000
Under Offer
This property listing is now Under Offer

2 Bedroom Not Specified for sale in Thackley

2 1
  • 2/3 BEDROOOM DORMER SEMI-DETACHED
  • SPACIOUS LOUNGE
  • DOWNSTAIRS BATHROOM
  • DINING ROOM CAN BE USED AS A DOWNSTAIRS BEDROOM
  • UPSTAIRS ARE 2 DOUBLE BEDROOMS
  • GCH WITH A DIGITAL WORCESTER BOSCH CONDENSING BOILER
  • FRONT GARDEN AND SIDE DRIVE FOR 3 CARS


IN A MUCH SOUGHT AFTER LOCATION IS TO BE FOUND THIS ROBINSON BUILT DORMER SEMI-DETACHED * OFFERS 2 RECEPTION ROOMS OR THE DINING ROOM COULD BE USED AS A DOWNSTAIRS BEDROOM * FITTED KITCHEN * DOWNSTAIRS BATHROOM * USEFUL STORAGE CUPBOARDS * LANDING AREA WITH STORAGE * 2 DOUBLE BEDROOMS * GCH WITH A WORCESTER BOSCH CONDENSING BOILER * UPVC DG WINDOWS * FRONT GARDEN WITH A LONG DRIVEWAY TO THE DETACHED GARAGE * REAR SW FACING PRIVATE ENCLOSED GARDEN * OFFERED FOR SALE WITH NO UPWARD CHAIN * THIS IS AN IDEAL YOUNG FAMILY HOME * GREAT POTENTIAL TO PUT YOUR OWN STYLE INTO THIS PROPERTY * IT IS LIKELY THE PROPERTY WILL NEED A FULL RE-WIRE * POSSIBLY REPLASTERING IN SOME ROOMS *  NEW KITCHEN AND BATHROOM * TOTAL REFURBISHMENT PROJECT INTERNALLY * VIEWING ESSENTIAL *  

Situated in a highly desirable part of Thackley, this spacious semi-detached dormer home on Ballantyne Road presents a fantastic opportunity for buyers seeking a property they can truly make their own. Offered for sale with no onward chain and priced at offers in excess of ?215,000, this two-bedroom home offers versatility, space, and a generous plot, making it an ideal choice for young families, downsizers or anyone looking to personalise a home to their own taste.
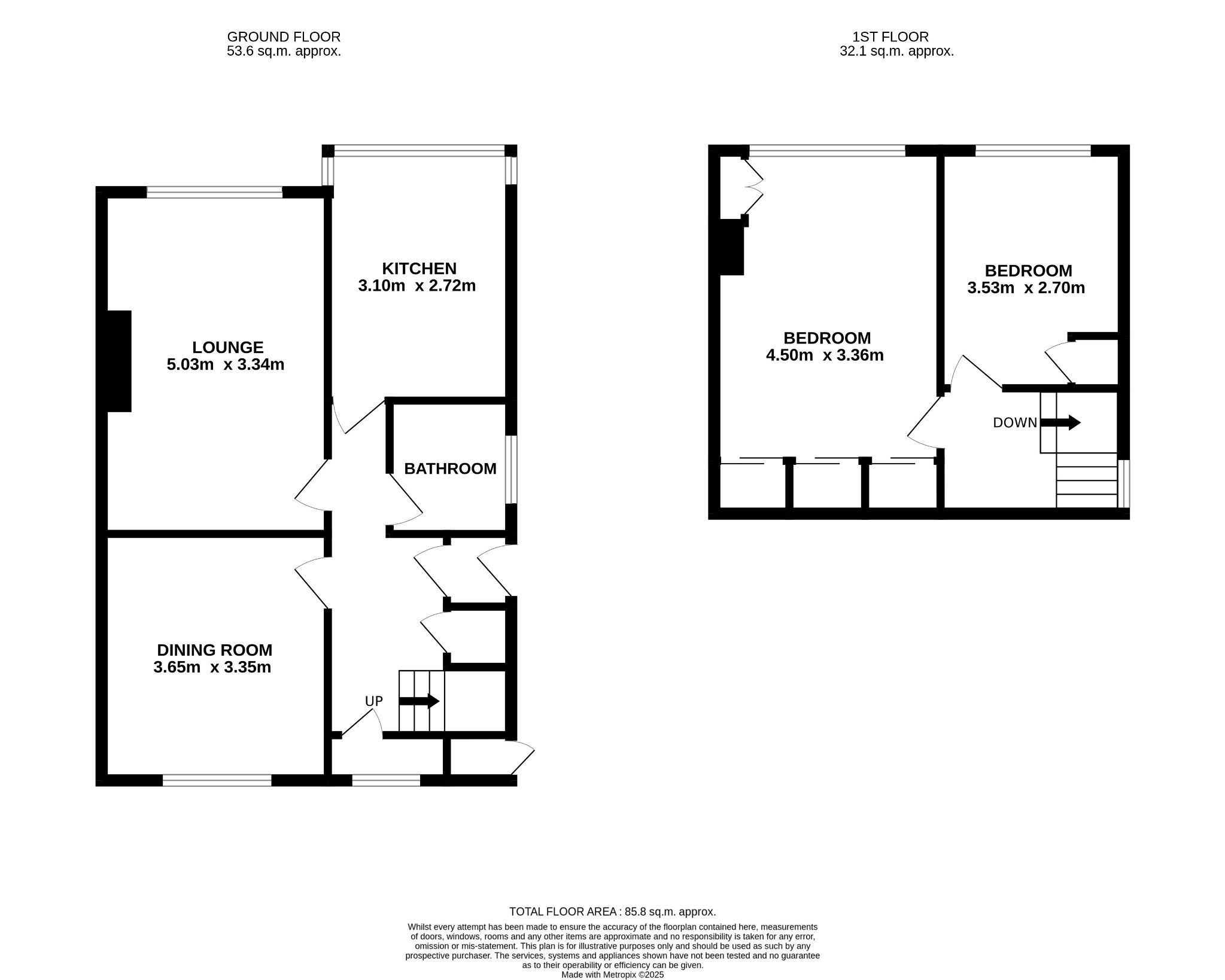
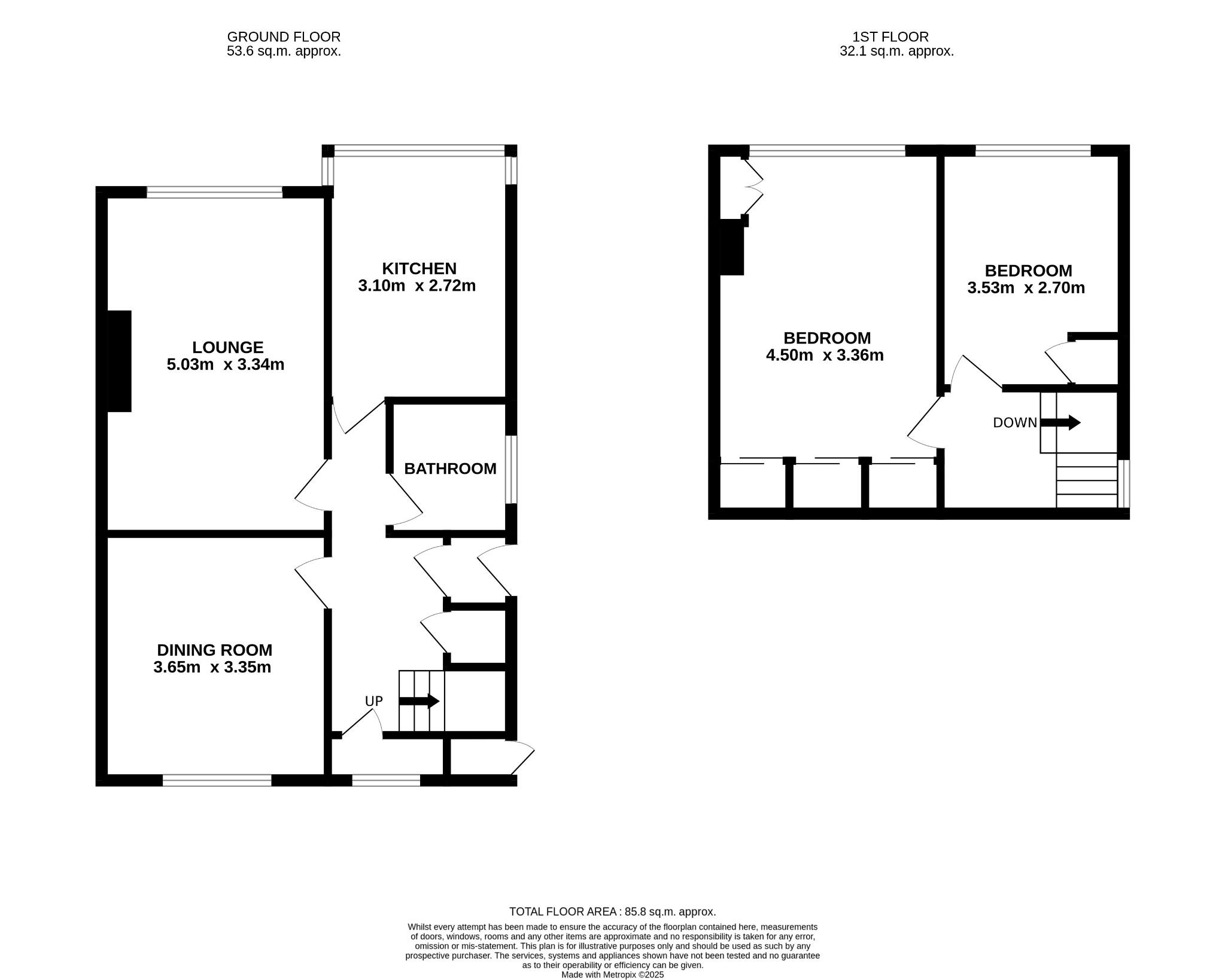
Set over two floors, the property opens into a generous ground floor layout comprising a light-filled lounge with ample space to relax and unwind. The separate dining room offers the flexibility to be used as a third bedroom should a downstairs sleeping option be required. The kitchen is fitted but dated, the bathroom is conveniently located on the ground floor, and while the home is in need of total refurbishment internally  throughout, it offers excellent potential to enhance and add value.
Upstairs, the layout continues with two well-proportioned double bedrooms, each offering plenty of storage options and natural light. The property benefits from gas central heating via a modern, digital Worcester Bosch condensing boiler, ensuring efficient performance and comfort all year round.
Externally, the home boasts a delightful and private south-west facing rear garden, perfect for outdoor entertaining or relaxing in the sun. There is also a detached garage to the rear and a side driveway providing off-street parking for several cars. The front garden adds further kerb appeal and completes the outside space.
This property enjoys a prime location within Thackley, a well-established and much sought-after residential area. Local amenities are conveniently close by, with supermarkets such as Morrisons and Sainsbury’s within a 5-10 minute drive. Families will appreciate the proximity to good local primary and secondary schools, including Thackley Primary School and Immanuel College. For leisure and recreation the nearby canal paths offer brilliant options for walking and cycling.
Excellent transport links further enhance the appeal of this home. Apperley Bridge train station is just over a mile away, providing quick rail access to Leeds, Bradford and beyond. There are also frequent local bus services and easy connections to major commuter roads. For those requiring air travel, Leeds Bradford Airport is conveniently situated approximately 15 minutes away by car.

With so much to offer in a thriving and well-connected location, this dormer semi-detached home represents an exciting opportunity to purchase in a particularly appealing part of Thackley. Viewing is highly recommended to appreciate the space, scope and potential available.

Entrance: Side door into a vestibule, internal door leads into the inner hallway, radiator, under stairs cupboard, along with an additional storage cupboard, stairs.

Lounge: 5.03m x 3.34m (16'5 x 10'9). Upvc dg window to front, radiator, coving, stone fireplace with a marble hearth and gas fire (not tested).

Dining Room: 3.65m x 3.35m (11'9 x 10'10). Upvc dg window to rear, radiator under.

Kitchen: 3.10m x 2.72m (10'1 x 8'9). Range of fitted wall & base units, work tops with tiling, front Upvc dg bay window, stainless steel sink, plumbed for a slimline dishwasher and auto-washer, piped for a gas cooker with an extractor over, space for a tall boy fridge freezer, space for a breakfast table and chairs, radiator.

Bathroom: 1.96m x 1.65m (6'4 x 5'4). Three piece suite, tiling, shower screen with a Mira Excel shower unit over the bath, side frosted Upvc dg window, radiator.

Landing & Stairs: Side Upvc dg window, return staircase, under drawing storage.

Bedroom 1: 4.50m x 3.36m (14'7 x 11'0). Full wall length sliding fitted wardrobes, Upvc dg dormer window to front, radiator under.

Bedroom 2: 3.53m x 2.70m (11'5 x 8'8). Upvc dg window to front, radiator, built in units, loft access, cupboard houses the Worcester Bosch Digital condensing boiler.

Externally: Front lawned garden with established borders, flagged and gravel driveway for several cars, side water tap and access door for garden equipment. Detached garage with a replacement door and power. Rear flagged patio, lawned garden with mature plantation, private and enclosed.  

While we endeavour to make our sales particulars fair, accurate and reliable, they are only a general guide to the property and, accordingly, if there is any point which is of particular importance to you, please contact the office and we will be pleased to check the position for you, especially if you are contemplating travelling some distance to view the property.
3. The measurements indicated are supplied for guidance only and as such must be considered incorrect.
4. Services: Please note we have not tested the services or any of the equipment or appliances in this property, accordingly we strongly advise prospective buyers to commission their own survey or service reports before finalising their offer to purchase.
5. THESE PARTICULARS ARE ISSUED IN GOOD FAITH BUT DO NOT CONSTITUTE REPRESENTATIONS OF FACT OR FORM PART OF ANY OFFER OR CONTRACT. THE MATTERS REFERRED TO IN THESE PARTICULARS SHOULD BE INDEPENDENTLY VERIFIED BY PROSPECTIVE BUYERS OR TENANTS. NEITHER MARTIN LONSDALE ESTATES LIMITED NOR ANY OF ITS EMPLOYEES OR AGENTS HAS ANY AUTHORITY TO MAKE OR GIVE ANY REPRESENTATION OR WARRANTY WHATEVER IN RELATION TO THIS PROPERTY. 
AML Please note if you proceed with an offer on this property we are obliged to undertake mandatory Anti Money Laundering checks on behalf of HMRC. All estate agents have to do this by law and we outsource this process to our compliance partners Credas who charge a fee for this service. 

       

            

Property Reference 0015445

Important Information

  • This is a Freehold property.
  • This Council Tax band for this property is: C

Property Ref: 0015445

Share:

Similar Properties

Town Lane, Idle,

3 Bedroom Detached House | £215,000

INDIVIDUAL DESIGNED GENUINE STONE DETACHED * 3 DOUBLE BEDROOMS * 2 RECEPTIONS * GCH & BAXI COMBI-BOILER * HARDWOOD DG WI...

Lower House Close, Thackley,

3 Bedroom Semi-Detached House | £214,995

STUNNING CONTEMPORARY 3 BEDROOM SEMI-DETACHED KNOWN AS "THE ROWAN" * THE PROPERTY HAS BEEN MODERNISED THROUGHOUT * THE K...

Stead Hill Way, Thackley,

2 Bedroom Semi-Detached House | £214,995

HERE WE HAVE AN EXCEPTIONAL 2 BEDROOM LINK SEMI-DETACHED WITH A GARAGE CONVERSION WHICH AFFORDS A SEPARATE DINING ROOM *...

Simpson Grove, Idle

2 Bedroom Semi-Detached Bungalow | £219,950

ROBINSON BUILT CIRCA 1965 2 DOUBLE BEDROOM SEMI-DETACHED BUNGALOW * HOT SPOT PART OF IDLE * REAR UPVC DG CONSERVATORY *...

Thackley Road, Thackley,

2 Bedroom Semi-Detached House | £219,950

POPULAR STYLE OF SEMI-DETACHED PROPERTY IN THIS HOT SPOT LOCATON * 2 DOUBLE BEDROOMS UPSTAIRS * WC AND WASH BASIN ROOM U...

Leys Close, Thackley,

3 Bedroom Detached House | £219,950

REDUCED *** REDUCED *** REDUCED *** MUCH SOUGHT AFTER STYLE OF 3 BEDROOM DETACHED BY TAY HOME * SITUATED IN THIS ATTRACT...

Martin S Lonsdale Estate Agents (Bradford)

Thackley, Bradford, West Yorkshire, BD10 8JT

01274 622073

How much is your home worth?

Use our short form to request a valuation of your property.

Request a Valuation

Mortgage Calculator

Amount Borrowed: £
Total Amount Repayable: £
Total Monthly Payment: £
©2026 The Guild of Property Professionals. All rights reserved. Terms and Conditions | Privacy Policy | Cookie Policy | Complaints Policy | Members Login
The Guild of Property Professionals Trading Address: 121 Park Lane, London W1K 7AG. GPEA Limited. Registered in England & Wales.  Company No: 02819824.  Registered Office Address: 2 St. Stephen's Court, St. Stephen's Road, Bournemouth, Dorset, England, BH2 6LA.  VAT Registration No: 576 8795 61
Book a Property Valuation Update Cookies Preferences