Trenam Park Drive, Thackley ,

£595,000
Under Offer
This property listing is now Under Offer

3 Bedroom Detached House for sale in Thackley

3 2
  • INDIVIDUALLY ARCHITECT DESIGNED STONE DETACHED PROPERTY SET IN ITS OWN PRIVATE GROUNDS
  • OFFERING 3 DOUBLE BEDROOMS AND 2 BATHROOM FACILITIES SPLIT BETWEEN BOTH FLOORS
  • THE LOUNGE HAS A LARGE BALCONY TO ENJOY ALFRESCO EVENINGS WITH LONG DISTANCE VIEWS
  • SUPERB BREAKFAST KITCHEN IN SHAKER STLYE
  • LARGE FRONT CONSERVATORY OVERLOOKING THE PRIVATE GARDEN
  • UTILITY ROOM
  • LANDING SPACE COULD BE USED AS A STUDY AREA AND A USEFUL ROOF SPACE FOR STORAGE OR AN OCCASIONAL ROOM
  • EXTERNALLY A LONG FRONT PRIVATE DRIVE LEADS TO THE PROPERTY
  • GARDENS TO FRONT SIDE & REAR
  • REAR GARAGE


ONE OF THACKLEYS PREMIER PROPERTIES * INDIVIDUALLY ARCHITECT DESIGNED 3 DOUBLE BEDROOM DETACHED * SET IN ITS OWN GROUNDS WITH TOTAL PRIVACY * A LONG SWEEPING DRIVE LEADS TO THE PROPERTY * THE ACCOMMODATION IS PLANNED ON TWO LEVELS PLUS A ROOF SPACE FOR EXCELLENT STORAGE OR AN OCCASIONAL ROOM * THE GROUND FLOOR HAS A HALLWAY * FITTED BREAKFAST KITCHEN * LARGE CONSERVATORY * 2 DOUBLE BEDROOMS * DOWNSTAIRS SHOWER ROOM * UTILITY ROOM * UPSTAIRS IS TO BE FOUND THE LOUNGE WITH PATIO DOORS OUT ONTO A LARGE BALCONY OFFERING ALFRESCO EVENINGS WITH LONG DISTANCE VIEWS * MASTER BEDROOM PLUS EN-SUITE BATHROOM * GCH AND UPVC DG WINDOWS * ALARMED * EXTERNALLY EXTENSIVE FRONT GARDEN AND TO ALL ELEVATIONS ADDITIONAL GARDEN AREAS * REAR GARAGE * A RARE PROPERTY TO MARKET IMMACULATELY PRESENTED THROUGHOUT * VIEWING BY APPOINTMENT ONLY * 

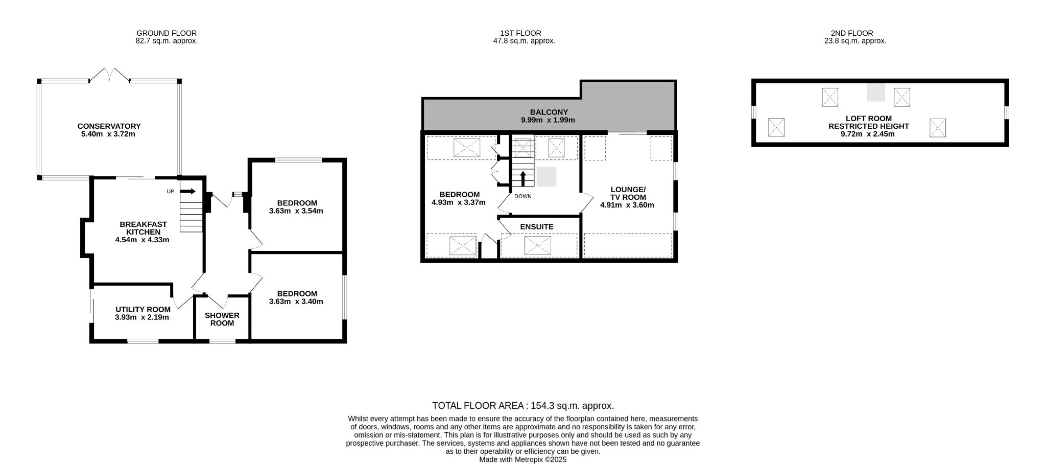
Nestled within an exclusive and private setting on Trenam Park Drive in Thackley, this individually architect-designed stone detached property presents a rare opportunity to acquire a truly unique and characterful home. Offered for sale with an asking price of ?595,000, this exceptional residence boasts spacious and versatile living accommodation arranged over two split-levels. Thoughtfully designed and beautifully appointed throughout, the home is set in generous private grounds and enjoys long-reaching views over to Baildon and down The Aire Valley. 
This distinctive family home provides three generously sized double bedrooms and two modern bathroom facilities conveniently located over both living levels, offering flexibility for family living or visiting guests. The heart of the home is a superb Shaker-style breakfast kitchen, perfect for casual dining or entertaining. Adjacent to the kitchen is a spacious conservatory to the front, which enjoys uninterrupted views over the private, well-established garden ? an excellent space for year-round enjoyment. A separate utility room adds practical convenience to the home.
The lounge is a true highlight of the property, being situated on the first floor full of natural light and featuring a large balcony that provides the perfect spot for alfresco evenings while taking in the long-distance views. The complementary landing space offers the ideal study or home office area, and a useful roof space adds further potential ? whether for storage or as an occasional room. 
Equally impressive are the exterior surroundings. A long private driveway leads to the house itself, providing a grand approach and ample parking. The landscaped gardens extend to the front, side, and rear, offering outdoor space that is both manageable and private. A detached rear garage provides additional storage space.
Ideally located for families and professionals alike, Trenam Park Drive enjoys proximity to a host of local amenities. A selection of supermarkets and shops are available within a short drive in Thackley and the neighbouring villages, while highly regarded local primary and secondary schools are conveniently close by. Leisure facilities, including canal and woodland walks are close by, as are healthcare services with doctor’s surgeries and dental practices all close by. 
For commuters, the property offers easy access to transport links, with Apperley Bridge train station approximately two miles away, and Shipley railway station a similar distance, providing direct services to Leeds, Bradford, and beyond. Leeds Bradford Airport is a 15 minute drive away, ideal for both domestic and international travel.
This is truly one of Thackley’s premier properties, offering style, space, privacy, and exceptional views in a location that blends semi-rural tranquility with modern convenience. Viewing is strictly by appointment only ? early interest is highly recommended to avoid disappointment.
(EPC and Floor Plan to follow shortly).
Hallway: Front door access into a spacious hall with engineered wood flooring, radiator, alarm panel, inset ceiling lights. 

Breakfast Kitchen: Superb range of wall & base units in maple shaker style, Meridian worktop with tiling above and under lighting, fully tiled floor with Italian black Porcelain unglazed tiles, central free standing unit with drawers and cupboard space plus two built in wine racks and a work top, Butler sink, integrated Neff fridge, Range master Elan Duel Fuel with a 6 burner gas hob and two electric ovens, recessed area under the stairs offers a relaxing seated area, inset ceiling lights, wall cabinet display lighting, Upvc sliding patio doors lead onto the:-

Upvc dg Conservatory: Insulated roof with inset lighting, continuation of the Italian black porcelain floor tiles, Thermotec radiator, Air conditioning unit by Airmaster, Smoothweave French Pinoleum Blinds in a cream finish,  French doors.        

Utility Room: Range of wall & base units, work tops with tiling above, stainless steel sink, plumbed for an auto-washer and space for a tumble dryer, 4 ring stainless steel Zanussi gas hob with an extractor hood by Candy and splash back, all in stainless steel, space for a full size dishwasher, Italian black Porcelain floor tiles, Zanussi under counter fridge freezer to stay, side Upvc dg window plus an entrance door, Pelmet down lighting, Viessmann boiler, radiator.       

Bedroom 2: Upvc dg window to front, radiator.

Bedroom 3:  Upvc dg window to side, radiator.   

Shower Room: Fully tiled with porcelain tiling to the walls and floor, modern shower cubicle with a Hansgrohe chrome thermostatically controlled shower unit with a rainhead and hand attachment, frosted Upvc dg window to rear, extractor and inset ceiling lights, heated chrome towel rail, wall mounted vanity mirror unit.

Landing and Stairs: Staircase to the first floor landing area which offers a useful study area, radiator, double glazed sky light window. Ladder steps lead upto the roof space which offers lots of storage space or could be used as an occasional room. Two side windows and 4 dg sky light windows, two radiators.      

Lounge/TV Room: Solid maple fireplace surround with lighting and a mantelpiece, black granite hearth, Legend coal effect gas fire, two side Upvc dg windows with Hillary blinds in dusty blue, two radiators. Upvc dg patio doors lead out onto the balcony with wrought iron railings, offering stunning views, along with over looking the front garden to take in the alfresco evenings.

Master Bedroom 1: Sharps Bedroom Malmo range furniture in maple, plus stool, Velux blackout blinds to the dg skylight windows, Upvc dg window with an inset blind, radiator.

En-Suite Bathroom: Fully tiled in Travertine tiles, wc, wash basin set on a vanity unit, bath with a screen and a Triton T80 electric shower unit over, heated chrome towel rail, dg skylight window with an inset blind. 

Externally: Access to the property is via a private long drive. To the front is a large garden comprising an Indian stone tiered flagged approach, patio area in Indian stone for sitting out to admire the SW facing mature and well stocked garden. Shaded sittiing out area to the side, side garden patio area. To the rear is a water tap, steps up to a good size rear garden area, detached storage garage with an up and over door and side door, plus Walther CEE type plug socket - ideal for caravans, fencing and gated access. Lighting around the property.  

While we endeavour to make our sales particulars fair, accurate and reliable, they are only a general guide to the property and, accordingly, if there is any point which is of particular importance to you, please contact the office and we will be pleased to check the position for you, especially if you are contemplating travelling some distance to view the property.
3. The measurements indicated are supplied for guidance only and as such must be considered incorrect.
4. Services: Please note we have not tested the services or any of the equipment or appliances in this property, accordingly we strongly advise prospective buyers to commission their own survey or service reports before finalising their offer to purchase.
5. THESE PARTICULARS ARE ISSUED IN GOOD FAITH BUT DO NOT CONSTITUTE REPRESENTATIONS OF FACT OR FORM PART OF ANY OFFER OR CONTRACT. THE MATTERS REFERRED TO IN THESE PARTICULARS SHOULD BE INDEPENDENTLY VERIFIED BY PROSPECTIVE BUYERS OR TENANTS. NEITHER MARTIN LONSDALE ESTATES LIMITED NOR ANY OF ITS EMPLOYEES OR AGENTS HAS ANY AUTHORITY TO MAKE OR GIVE ANY REPRESENTATION OR WARRANTY WHATEVER IN RELATION TO THIS PROPERTY.                

   

Property Reference 0015419

Important Information

  • This is a Freehold property.
  • This Council Tax band for this property is: F

Property Ref: 0015419

Share:

Similar Properties

Cyprus Gardens, Thackley,

5 Bedroom Detached House | £525,000

EXTENDED 5 BEDROOM THREE STOREY DETACHED KNOWN AS "THE CANTERBURY" BY McDERMOTT HOMES BEING THE LARGEST STYLE ON THIS SM...

Highfield Avenue, Idle,

5 Bedroom Detached House | £499,950

STUNNING BE-SPOKE BUILT STONE DETACHED ONE OF ONLY 2 SITUATED IN THIS PRIVATE DRIVE * HOT SPOT LOCATION * 5 BEDROOMS AND...

Cockshott Lodge, Cockshott Lane, Idle,

4 Bedroom Detached Bungalow | £495,000

STONE DETACHED PROPERTY * 4 BEDROOMS * 3 BATHROOMS * REAR UPVC DG CONSERVATORY * IMPRESSIVE ENTRANCE AND LANDING * CINEM...

Beck House, Thirlby,

3 Bedroom Detached House | £599,950

An exceptional detached property situated in the desirable village of Thirlby. Comprising entrance porch, semi open-plan...

Windhill Old Road, Thackley,

5 Bedroom Detached House | £899,950

WHAT CAN ONLY BE DESCRIBED AS THACKLEY'S PREMIER PROPERTY - THIS 5 BEDROOM, 4 BATHROOM, 3 RECEPTIONS STONE BUILT DETACHE...

Martin S Lonsdale Estate Agents (Bradford)

Thackley, Bradford, West Yorkshire, BD10 8JT

01274 622073

How much is your home worth?

Use our short form to request a valuation of your property.

Request a Valuation

Mortgage Calculator

Amount Borrowed: £
Total Amount Repayable: £
Total Monthly Payment: £
©2026 The Guild of Property Professionals. All rights reserved. Terms and Conditions | Privacy Policy | Cookie Policy | Complaints Policy | Members Login
The Guild of Property Professionals Trading Address: 121 Park Lane, London W1K 7AG. GPEA Limited. Registered in England & Wales.  Company No: 02819824.  Registered Office Address: 2 St. Stephen's Court, St. Stephen's Road, Bournemouth, Dorset, England, BH2 6LA.  VAT Registration No: 576 8795 61
Book a Property Valuation Update Cookies Preferences