Leeds Road, Thackley,

£395,000
Under Offer
This property listing is now Under Offer

3 Bedroom Not Specified for sale in Thackley

3 2
  • RARE TO MARKET BARN CONVERSION
  • NOT LISTED
  • 3 BEDROOMS AND 2 BATHROOM FACILITIES
  • LARGE LOUNGE AREA WITH SOLID OAK WOOD FLOOR AND A NORMAN ARCHWAY FEATURE WINDOW
  • KITCHEN DINER WITH SOME INTEGRATED ITEMS AND A RANGE COOKER
  • EXTERNALLY PARKING FOR 2 CARS
  • LARGE SIDE AND FRONT GARDENS
  • SUPERBLY PLACED FOR ALL THE VILLAGE AMENITIES AND GOOD SCHOOLS
  • COMMUTING FOR LEEDS WITH 2 RAILWAY STATIONS CLOSE BY
  • IF YOU ARE LOOKING FOR A SPACIOUS PROPERTY WITH LOTS OF CHARACTER THIS IS THE ONE


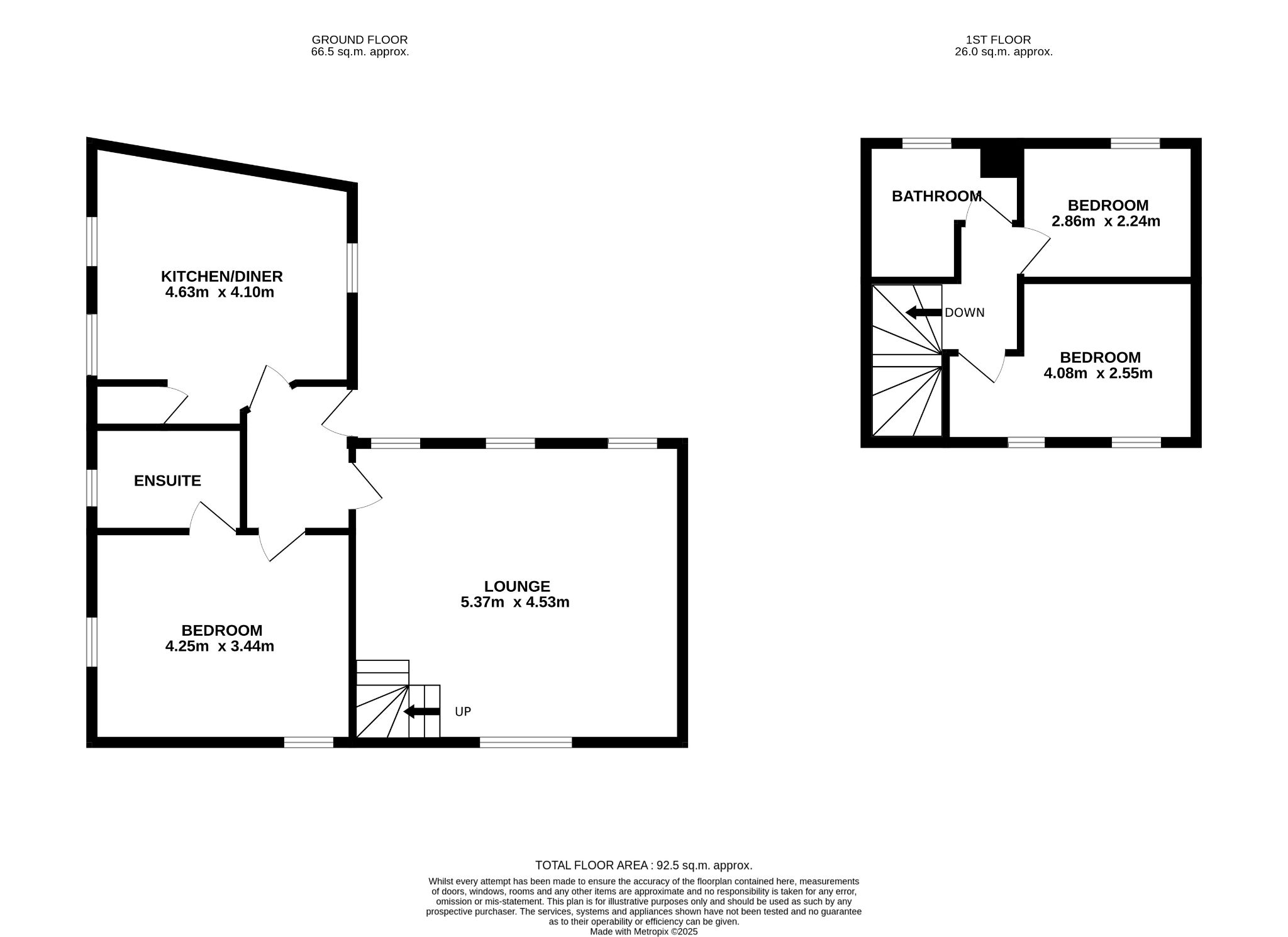
RARE TO MARKET BARN CONVERSION SITUATED IN THIS SMALL PRIVATE COMPLEX * NOT LISTED * 3 BEDROOMS AND 2 BATHROOM FACILITIES * SPACIOUS LOUNGE WITH A SOLID OAK WOOD FLOOR AND A FEATURE NORMAN WINDOW * MODERN KITCHEN DINER WITH INTEGRATED ITEMS * DOWNSTAIRS DOUBLE BEDROOM AND EN-SUITE BATHROOM * UPSTAIRS * 2 BEDROOMS * FAMILY BATHROOM * UPVC DG WINDOWS AND A COMPOSITE ENTRANCE DOOR * ALARMED * BEAMS * PARKING FOR 2 CARS * LARGE FRONT & SIDE GARDENS * WELL PLACED FOR COMMUTING WITH 2 RAILWAY STATIONS CLOSE BY * ALL THE VILLAGE SCHOOLS ARE WITHIN WALKING DISTANCE * THACKLEY IS A VIBRANT VILLAGE WITH SHOPS, MICRO-BARS, PUBS, RESTAURANT,  CAFES/DELI * LOCAL CRICKET AND FOOTBALL TEAMS * CLOSE TO THE LEEDS BOUNDARY * THIS PROPERTY REPRESENTS VALUE FOR MONEY AND WOULD BE AN IDEAL FAMILY HOME * VIEWING ESSENTIAL *

We are delighted to present to the market, a rare gem nested in the idyllic village of Thackley close to the Leeds boundary. This stunning Barn Conversion is offered for sale at the very competitive asking price of ?395,000 and boasts a plethora of charming features and generous amenities. Please, kindly note, this property is refreshingly not listed, thus facilitating a seamless buying process.
Upon entry into this captivating home, you will be greeted by a hallway, generous lounge area that resonates with elegance and grace. The lounge flaunts a character-defining Norman archway feature window and a robust solid oak wooden floor. The hardwood floor seamlessly complements the overall rustic charm and cosiness of this spectacular home.
Progressing further into the main living hub, we encounter a sizeable open-plan kitchen diner that exudes an air of modern fittings perfectly juxtaposed with traditional charm. Equipped with a selection of integrated appliances and a top-of-the-range cooker, this kitchen provides an enjoyable and efficient cooking experience.
There is a double bedroom downstairs, and a en-suite modern bathroom suite in white. Taking a tour upstairs, you'll find two bedrooms, family spa bathroom suite, emitting an aura of homeliness and tranquillity. 
Externally, this rare-to-market property provides parking space for two cars, a major convenience in today's fast-paced world. In addition, the house boasts sizeable front and side gardens, providing plenty of space for relaxation and entertainment. 
Situated on a small private complex, this barn conversion is premierly located with easy access to all village amenities and quality schools. For those looking to commute to Leeds, the property is within proximity to two local railway stations, offering efficiency and convenience to all potential homeowners.
Overall, if you're searching for a spacious, charming and standout property, look no further. We highly recommend private viewings to truly appreciate the beauty of this unique property.

Entrance: Part glazed front composite door into the hallway, laminate flooring in grey plank effect, polished chrome radiator, access into the roof space which is part boarded. 

Kitchen Diner: Excellent range of wall & base units in a high gloss burgundy with complementary granite effect work tops and splash backs plus cream brick effect tiling above, led lighting to the unit plinths, integrated dishwasher, plumbed for an auto-washer, granite effect sink with an extendable tap, Upvc dg window to front, double extractor hood and light over a Range Master Toledo Oven with gas burners, oven and grill plus storage, space for a tall boy fridge freezer, space for a table and chairs, two Upvc dg window to rear, useful cupboard, grey plank effect laminate flooring, anthracite contemporary styled radiator.   

Bedroom 3: Upvc dg windows to front & side, two contemporary radiators, fitted wardrobes, beam feature, internal door leads onto the:-

En-Suite: P shaped three piece suite in white, shower screen, chrome thermostatically controlled shower unit with a rain head and hand attachment unit, frosted Upvc dg window, heated chrome towel rail, beam feature, porcelain tiled floor, part contrasting tiling to a wall.     

Lounge:  Feature Norman style archway window, solid oak wood floor, wired for a flat screen TV, two upright contemporary radiators, three Upvc dg windows, stairs to first landing.  

Landing Area: 

Bedroom 2: Upvc dg window to side, contemporary styled radiator in polished chrome. 

Bedroom 1: Two Upvc dg windows to side, anthracite styled contemporary radiator.        

Family Bathroom: Three piece spa style suite in white with an air bath, wc and contemporary styled wash basin, fully tiled, chrome radiator, frosted Upvc dg window, led lighting, touch screen vanity wall mirror, upright dressing mirror, tiled floor. 

Externally: Parking to the front for 2 cars, water tap, sensor security lighting, flagged pathway leads round to the first large grassed garden with a flagged patio, which in turn leads to the additional large front grassed garden with a farm house gate. Access to the property is from the main road up a private road into the small complex of cottage style properties.    

While we endeavour to make our sales particulars fair, accurate and reliable, they are only a general guide to the property and, accordingly, if there is any point which is of particular importance to you, please contact the office and we will be pleased to check the position for you, especially if you are contemplating travelling some distance to view the property.

3. The measurements indicated are supplied for guidance only and as such must be considered incorrect.

4. Services: Please note we have not tested the services or any of the equipment or appliances in this property, accordingly we strongly advise prospective buyers to commission their own survey or service reports before finalising their offer to purchase.

5. THESE PARTICULARS ARE ISSUED IN GOOD FAITH BUT DO NOT CONSTITUTE REPRESENTATIONS OF FACT OR FORM PART OF ANY OFFER OR CONTRACT. THE MATTERS REFERRED TO IN THESE PARTICULARS SHOULD BE INDEPENDENTLY VERIFIED BY PROSPECTIVE BUYERS OR TENANTS. NEITHER MARTIN LONSDALE ESTATES LIMITED NOR ANY OF ITS EMPLOYEES OR AGENTS HAS ANY AUTHORITY TO MAKE OR GIVE ANY REPRESENTATION OR WARRANTY WHATEVER IN RELATION TO THIS PROPERTY.  

Property Reference 0015389

Important Information

  • This is a Freehold property.
  • This Council Tax band for this property is: E

Property Ref: 0015389

Share:

Similar Properties

Brackendale Way, Thackley,

5 Bedroom Detached House | £395,000

5 BEDROOM DETACHED PROPERTY BY PERSIMMON HOMES KNOWN AS "THE WINSTER" * IMMACULATE THROUGHOUT * THE PROPERTY HAS HAD MAJ...

Windhill Old Road Thackley

4 Bedroom Detached House | £395,000

LARGE INDIVIDUAL ARCHITECT STONE DETACHED * 4 BEDROOMS AND 3 BATHROOMS * 2 RECEPTION ROOMS * UTILITY ROOM * THREE STOREY...

Burnwells, Thackley,

4 Bedroom End of Terrace House | £395,000

SUPERB 4 BEDROOM END GRADE 11 LISTED LARGE COTTAGE * 2 RECEPTION ROOMS * UTILITY ROOM * WORKING CELLAR * LARGE KITCHEN D...

Snowden Road, Shipley,

4 Bedroom Cottage | £399,950

Originally a farmhouse built circa 1668 with a piggery, this is a property we know from the past having sold it to the p...

Highfield Road, Idle,

3 Bedroom Cottage | £399,995

A MOST DESIRABLE LARGE 3 BEDROOM SEMI-DETACHED COTTAGE * TUCKED AWAY IN THIS LITTLE KNOWN LOCATION * LOTS OF CHARACTER W...

Javelin Close, Idle,

4 Bedroom Detached House | £399,995

SUPERIOR EXTENDED 4 BEDROOM DETACHED WITH THE WOW FACTOR OF AN EXTENDED REAR OPEN PLAN LIVING KITCHEN DINER AFFORDING LA...

Martin S Lonsdale Estate Agents (Bradford)

Thackley, Bradford, West Yorkshire, BD10 8JT

01274 622073

How much is your home worth?

Use our short form to request a valuation of your property.

Request a Valuation

Mortgage Calculator

Amount Borrowed: £
Total Amount Repayable: £
Total Monthly Payment: £
©2026 The Guild of Property Professionals. All rights reserved. Terms and Conditions | Privacy Policy | Cookie Policy | Complaints Policy | Members Login
The Guild of Property Professionals Trading Address: 121 Park Lane, London W1K 7AG. GPEA Limited. Registered in England & Wales.  Company No: 02819824.  Registered Office Address: 2 St. Stephen's Court, St. Stephen's Road, Bournemouth, Dorset, England, BH2 6LA.  VAT Registration No: 576 8795 61
Book a Property Valuation Update Cookies Preferences