3 Bedroom Detached House for sale in Thetford

2 3 2
  • Detached House
  • Three Bedrooms (Master En-Suite)
  • Spacious Accommodation
  • Kitchen
  • Sitting Room and Separate Dining Room
  • Conservatory
  • Family Bathroom and Ground Floor WC
  • Garage with Electric Door
  • Garden with Summerhouse
  • No Chain

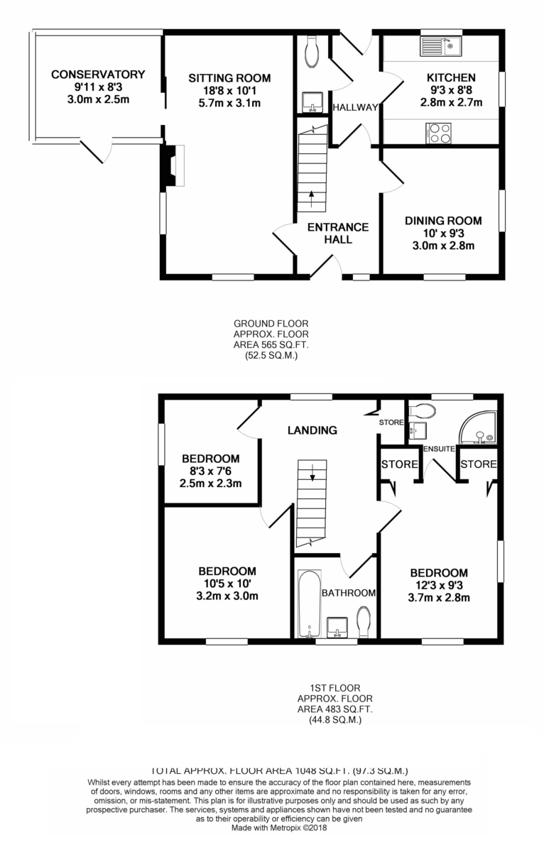
Situated in the popular market town of Watton and available with no chain is this spacious three bedroom detached house situated on a corner plot. The property is the perfect opportunity for all prospective purchasers to acquire a traditional family home. The accommodation comprises a hallway with doors to the kitchen and WC and a door to the entrance hall with fitted carpet, stairs to the first floor landing and doors to the sitting room and dining room. The sitting room has a decorative central fireplace with dual aspect windows and a sliding door to the conservatory which has double glazed windows to each side and a door to the rear garden. The dining room has dual aspect windows to front and side and a there is a fitted kitchen with a range of wall and base level units with complementary rolled edge work surfaces, an inset hob with extractor and built-in electric oven, again with double aspect windows. There is a downstairs cloakroom with a two piece suite. To the first floor there are three bedrooms, the master with an en-suite comprising a corner shower cubicle, low level WC and washbasin. There is a family bathroom which comprises a low level WC, panelled bath and washbasin. To the rear of the property there is a fully enclosed garden which is laid with lawn and has a variety of mature shrubs and flowers and there is a summerhouse. There is a single garage which benefits from an electric door to the front with power and lighting.  

WATTON The market town of Watton has a range of amenities including a post office, supermarket, chemist, infant, junior and secondary schools. There is a weekly market with lots to offer. For golf enthusiasts, Richmond Park Golf Club has an 18-hole course, driving range and practice green. Furthermore, there is a sports centre which offers a fitness suite, all weather courts, badminton, squash and snooker facilities. Watton is surrounded by beautiful Norfolk countryside and woodlands including Thetford Forest and Wayland Wood. The nearest train station is 8.5 miles away at Harling Road with a regular service to Norwich, 34 minutes, and the journey to Cambridge taking about 54 minutes.

The market town of Dereham is approximately 10 miles away with restaurants and cafés, museums, a leisure centre, golf course and schools. Thetford, Norwich and King's Lynn are all within an easy reach providing a wide choice of shopping and leisure venues. Norwich has good local transport links with the town and has an international airport and a mainline rail link to Liverpool Street, London. 

SERVICES CONNECTED Mains gas, water, electricity and drainage. 

COUNCIL TAX Band C. 

ENERGY EFFICIENCY RATING C. The reference number or full certificate can be obtained from Sowerbys upon request.
To retrieve the Energy Performance Certificate for this property please visit https://www.epcregister.com/ and enter in the reference number. 

AGENT'S NOTE Sowerbys understand that the current vendors have had building regulations approved for two additional rooms and a shower room in the loft space. 

Important Information

  • This is a Freehold property.

Property Ref: 59533_100439027390

Share:

Similar Properties

Thompson

3 Bedroom Semi-Detached House | Guide Price £240,000

Guide Price £240,000 - £250,000. A desirable semi-detached family home in a popular location. The accommodat...

Watton

3 Bedroom Detached Bungalow | Guide Price £230,000

NO CHAIN - A lovely detached bungalow situated close to the town's amenities. The property Comprises; three bedrooms, ma...

Watton

4 Bedroom Semi-Detached House | Guide Price £230,000

£230,000 to £240,000. A spacious and characterful property with an attractive flint front close to local ame...

Watton

3 Bedroom Detached House | Guide Price £250,000

Guide Price £250,000 - £275,000. **Highly Motivated Vendor** A traditional detached family home with period...

Watton

4 Bedroom Detached House | £280,000

A spacious and immaculately presented detached house with generous gardens. Four double bedrooms, master en-suite, famil...

Watton

4 Bedroom Detached House | £289,995

A beautiful detached new build property forming part of the stunning Hopkins Homes development in an idyllic rural setti...

Sowerbys Watton (Watton)

54 High Street, Watton, Norfolk, IP25 6AE

01953 884522

How much is your home worth?

Use our short form to request a valuation of your property.

Request a Valuation

Mortgage Calculator

Amount Borrowed: £
Total Amount Repayable: £
Total Monthly Payment: £
©2026 The Guild of Property Professionals. All rights reserved. Terms and Conditions | Privacy Policy | Cookie Policy | Complaints Policy | Members Login
The Guild of Property Professionals Trading Address: 121 Park Lane, London W1K 7AG. GPEA Limited. Registered in England & Wales.  Company No: 02819824.  Registered Office Address: 2 St. Stephen's Court, St. Stephen's Road, Bournemouth, Dorset, England, BH2 6LA.  VAT Registration No: 576 8795 61
Book a Property Valuation Update Cookies Preferences