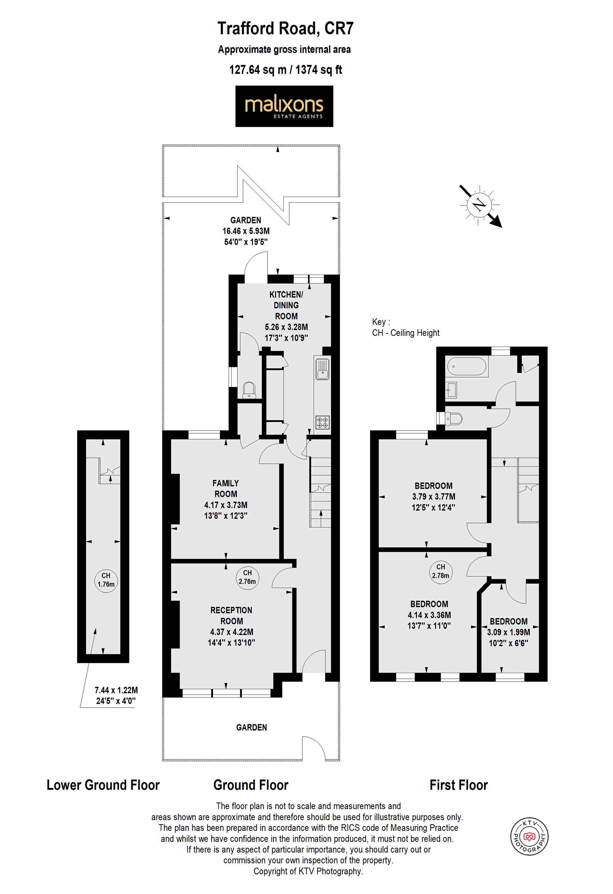
Trafford Road, Thornton Heath, CR7

Guide Price
£500,000

4 Bedroom Terraced House for sale in Thornton Heath

1 4 1
  • 3 Bedrooms on first floor
  • Family room with separate reception/ fourth bedroom
  • Underground Cellar
  • High Ceilings
  • Great links to transport & local amenities
  • Large, Low Maintenance, Garden
  • Opportunity to extend and convert loft (STPP)

Introducing this charming terraced house that effortlessly blends classic elegance with modern convenience. As you step through the front door, you are greeted by a sense of space and light, amplified by the high ceilings that add a touch of grandeur to the interiors.

On the first floor, you'll find three well-appointed bedrooms, each offering a cosy retreat at the end of a long day. The family room, which can also double up as a fourth bedroom, provides flexibility for any growing family or those who love to entertain guests.

One of the hidden gems of this property is the underground cellar, a unique feature that could be transformed into a creative space, or simply additional storage to keep your home clutter-free.

Conveniently located with great transport links and close proximity to local amenities, this home offers the perfect balance between city living and suburban tranquillity. Whether you're commuting to work or exploring the neighbourhood, this property is ideally situated for both work and play.

The standout feature of this property is the large, low maintenance garden, providing a private outdoor oasis where you can unwind, entertain, or simply soak up the sun. The potential to extend and convert the loft (subject to obtaining the necessary planning permissions) offers endless possibilities to customise the space to suit your lifestyle.

Don't miss out on the opportunity to make this house your home. With its versatile layout, unique features, and potential for expansion, this property is the perfect canvas for you to create the home of your dreams. Arrange a viewing today and start envisioning the life you could lead in this delightful terraced house.

Your new chapter starts here - seize the opportunity to transform this property into your ideal living space, where memories will be made and cherished for years to come. Welcome to your new home.

Get in touch with Malixons to arrange your viewing now!

Energy Efficiency Current: 47.0
Energy Efficiency Potential: 67.0

Important Information

  • This is a Freehold property.

Property Ref: 9e4a2136-73dc-47f0-855b-4b48df7c024d

Share:

Similar Properties

Westwell Road, London, SW16

2 Bedroom Flat | Guide Price £500,000

A superb CHAIN FREE two double bedroom period conversion located just 0.3 Miles from Streatham common station

Colliers Water Lane, Thornton Heath, CR7

3 Bedroom Terraced House | Guide Price £475,000

GUIDE PRICE £475,000-£525,000 Superb CHAIN FREE three bedroom house located 0.5 miles from Thornton Heath station

Gleneldon Road, London, SW16

2 Bedroom Flat | Offers in excess of £475,000

A fantastic CHAIN FREE two-double bedroom located just 0.3 miles from Streatham station

Madeira Road, Mitcham, CR4

3 Bedroom House | Guide Price £525,000

Guide £525,000 - £575,000. This Fantastic 3-bedroom, 2-reception home with off-street parking for multiple cars is a rar...

Blackshaw Road, London, SW17

3 Bedroom Maisonette | £525,000

Guide £525,000 - £550,000 A superb 3 bedroom Maisonette located just 0.6 miles from Tooting Broadway station

Beckway Road, London, SW16

3 Bedroom House | Offers in excess of £525,000

£525,000-£550,000 Discover the perfect family home on Beckway Road, London. This charming terraced house offers three be...

Malixons (Tooting)

Tooting, London, SW17 7AA

020 3196 4789

How much is your home worth?

Use our short form to request a valuation of your property.

Request a Valuation

Mortgage Calculator

Amount Borrowed: £
Total Amount Repayable: £
Total Monthly Payment: £
©2026 The Guild of Property Professionals. All rights reserved. Terms and Conditions | Privacy Policy | Cookie Policy | Complaints Policy | Members Login
The Guild of Property Professionals Trading Address: 121 Park Lane, London W1K 7AG. GPEA Limited. Registered in England & Wales.  Company No: 02819824.  Registered Office Address: 2 St. Stephen's Court, St. Stephen's Road, Bournemouth, Dorset, England, BH2 6LA.  VAT Registration No: 576 8795 61
Book a Property Valuation Update Cookies Preferences