Hythe Road, Thornton Heath, CR7

Offers in excess of
£300,000

2 Bedroom Maisonette for sale in Thornton Heath

1 2 1
  • Chain free
  • Own front door
  • Period property
  • Great condition
  • 0.6 Miles from Thornton Heath station
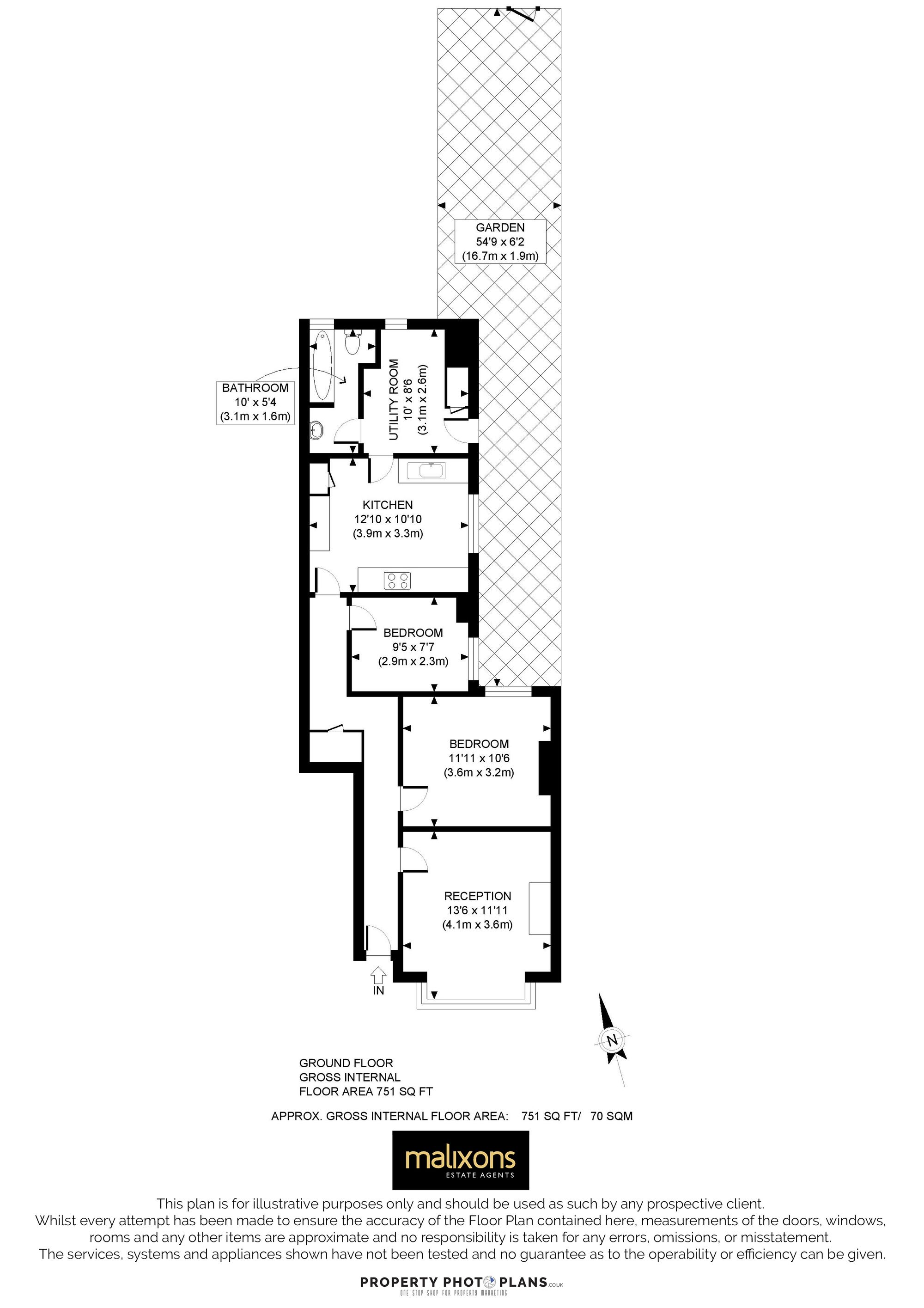
  • Over 750 Sq Ft
  • Lots of natural light
  • Walking distance to Grangewood Park

This charming and well-presented two-bedroom maisonette is set within an attractive period property and benefits from its own private entrance. Chain-free and in excellent condition, it’s ready for new owners to move straight in and make it their own.

Spanning over 750 sq ft, the property offers bright, spacious interiors with generously sized rooms and plenty of natural light throughout. It’s a versatile home, perfect for relaxing, working from home, or entertaining.

Ideally located just 0.6 miles from Thornton Heath station, with Grangewood Park within walking distance, you'll have both excellent transport links and green open space right on your doorstep.

Energy Efficiency Current: 72.0
Energy Efficiency Potential: 78.0

Important Information

  • This is a Leasehold property.
  • This Council Tax band for this property is: C

Property Ref: 60655952-42cf-41cb-bc2d-a7c289cd5db3

Share:

Similar Properties

Kings Road, Mitcham, CR4

2 Bedroom Flat | Guide Price £300,000

GUIDE PRICE £300,000-£325,000. FANTASTIC two DOUBLE bedroom first floor flat which boasts over 550 Ft of living space an...

Garratt Lane, Deepak House, SW17

1 Bedroom Flat | £300,000

GUIDE PRICE £300,000 - £325,000. Stunning 1 Bedroom modern flat located on 0.3 Miles away from Tooting Broadway(Northern...

Holmewood Gardens, Tilford House, SW2

2 Bedroom Flat | Guide Price £300,000

GUIDE PRICE £300,000 - £33000 EXCELLENT two bedroom purpose built flat located in the beautiful Holmewood Gardens Brixto...

Upper Tooting Road, Holmbury Court Upper Tooting Road, SW17

1 Bedroom Flat | Guide Price £320,000

Guide Price £300,000 - £325,000 A fantastic one-bedroom first floor flat located just 0.2 miles from Tooting Bec station

Arborfield Close, London, SW2

2 Bedroom Apartment | Guide Price £325,000

GUIDE PRICE £325,000 - £355,000 ATTRACTIVE modern built purpose built two bedroom apartment with communal gardens and al...

Daysbrook Road, London, SW2

1 Bedroom Flat | Guide Price £325,000

Guide £325,000 - £350,000 A Fantastic CHAIN FREE One-Bedroom flat located just 0.4 miles from Streatham Hill Station

Malixons (Tooting)

Tooting, London, SW17 7AA

020 3196 4789

How much is your home worth?

Use our short form to request a valuation of your property.

Request a Valuation

Mortgage Calculator

Amount Borrowed: £
Total Amount Repayable: £
Total Monthly Payment: £
©2025 The Guild of Property Professionals. All rights reserved. Terms and Conditions | Privacy Policy | Cookie Policy | Complaints Policy | Members Login
The Guild of Property Professionals Trading Address: 121 Park Lane, London W1K 7AG. GPEA Limited. Registered in England & Wales.  Company No: 02819824.  Registered Office Address: 2 St. Stephen's Court, St. Stephen's Road, Bournemouth, Dorset, England, BH2 6LA.  VAT Registration No: 576 8795 61
Book a Property Valuation Update Cookies Preferences