Treven, Tintagel PL34

£445,000

6 Bedroom Semi-Detached House for sale in Tintagel

3 6 1
  • Amazing Refurbishment Opportunity
  • Partially Completed Extension
  • Super Country and Coastline Views
  • Only Approximately 1 Mile From Tintagel Castle
  • Large Garage Plus Parking Area
  • Good Size Gardens with Super Views
  • Great Potential
  • Chain Free Sale

Rare and fantastic opportunity to purchase this large former guest house with amazing countryside views and towards the coast, less than a mile from Tintagel.  Freehold.  Council Tax Band D.  EPC rating F.

 

We are delighted to offer for sale this former guest house/B & B situated in Treven almost opposite the primary school.  As can be seen on the photographs and video tour, the current vendors had started renovating and extending the property but have now decided to sell.  Penpol is a large substantial stone built house in a great location only 1 mile from Tintagel Castle and enjoys splendid countryside views looking out towards the North Cornish coastline.  It has a large garage together with large parking area to side and good sized rear garden.  Internally it has some lovely features and is somewhat mid-refurbished in terms of the partially completed large kitchen/breakfast room together with utility/shower room at the rear of the house.  This represents an amazing opportunity for a purchaser willing to complete these works and of course the refurbishment and redecoration of the main residence.  The accommodation is set on 3 floors and from the rear of the house are the views towards the coastline.  

 

Treven is an area close to the village of Tintagel steeped in history and legend.  Some of the most amazing coastline that North Cornwall has to offer is extremely close to this property with miles of beautiful cliff and coastline footpath walks.  From the house one can see Tintagel Church and surrounding countryside towards the Atlantic Ocean.

 

The Accommodation comprises with all measurements being approximate:

 

UPVC Double Glazed Entrance Door to

 

Entrance Porch

With attractive tiled flooring, part leaded, part stained glass windows to 

 

Entrance Hall

Stairs off to first floor.  Understairs storage cupboard.

 

Lounge - 3.57m x 3.6m to wall, 4.6m to bay

Bay window to front, picture rails, multifuel stove set in attractive natural slate surround with feature inset tiling.

 

Dining Room - 4.6m to bay, 3.65m to wall x 3.6m 

Radiator, picture rails, bay window to front.  

 

Breakfast Room - 3.2m x 3.57m

Former fireplace recess with cupboards to side, UPVC window to rear with views to the church and ocean beyond.  

 

Current Kitchen - 3.94m x 3.59m

With oil fired range which also has the boiler incorporating the central heating system (see Agents Note later).  Airing cupboard to side.  Single drainer sink, mixer tap over, range of older style base and wall units, fitted oven, side double glazed window.  Opening through to

 

Partially Completed Extension 

We understand the extension has been partially completed but has Building Regulation approval and as can be seen on the photographs and video tour the extent of works required to finish the property are apparent.

 

Proposed Kitchen/Dining Room - 6.78m x 4m

Potentially a lovely room with window and full height French doors opening on to the rear garden with views to Tintagel Church and the coastline.  Opening through to

 

Proposed Utility/Shower Room - 4.6m x 4m

With side double glazed window, double glazed window to rear and part glazed UPVC door to rear garden, again partially finished.  Door to

 

Attached Original Garage - 4.25m wide x 6.78m deep

Again of stone construction with timber sliding doors, windows to side, fitted workbench, part mezzanine flooring over.  Inspection pit.

 

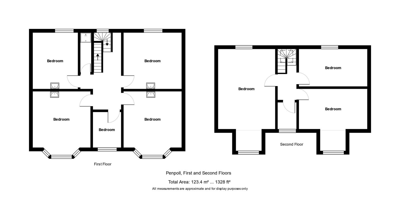
First Floor

 

Half Landing

With double glazed UPVC window to rear with lovely view.

 

Main Landing

With stairs off to second floor.

 

Bedroom 1 - 3.68m x 3.6m

Wash hand basin, radiator, picture rail, UPVC double glazed window to rear with views to Church, countryside and towards the ocean.

 

Bedroom 2 front - 3.6m to wall, 4.65m to bay x 3.67m

Wash hand basin, bay window to front, with evidence of some dampness around the bay, UPVC windows and fine views to countryside.

 

Bedroom 3 front - 1.78m x 2.26m

Window to front with fine views.

 

Bedroom 4 front - 3.68m x 3.6m to wall, 4.6m to bay

Wash hand basin, bay window to front, with evidence of some dampness around the bay, UPVC windows and fine views to countryside.

 

Bedroom 5 rear - 3.58m x 2.84m

Wash hand basin, radiator, picture rails, lovely views to rear.

 

Small Shower Room adjacent to stairwell.

 

Second Floor

 

Landing

 

Bedroom 6 - 2.7m x 2.7m (with restricted head height)

Radiator, window to rear with great views, again replastering required.

 

Bedroom 7 - 2.24m min, 3.5m to window x 3.7m (with restricted head height to part of the room)

Attractive arched window to front.

 

Bedroom 8 - 1.8m x 2.6m

Window to front (seal perished) with fine views.

 

Bedroom 9 - 3.6m x 5.1m overall room measurement, max 6.3m from window to window (formerly 2 rooms with partition removed but again in need of plastering, wiring etc)

Dual aspect room with great views.

 

Outside

To the side of the property is a tarmac parking/turning area leading to the large garage, otherwise the front garden has low stone walling with central path, slate step to front door, level and laid to lawn within the garden area itself.  The rear and side garden is large.  Adjacent to the garage is the raised oil tank with former greenhouse base.  The rear garden is laid to lawn in 2 sections with the higher section having a central hedge.

 

Block Built Garden Shed - 3.5m x 2.7m

 

At the rear of the shed is a further area of garden all being walled with attractive stone walling, orchard with 3 apple trees and again laid to lawn as seen on the photographs/video tour.  

 

Agents Note

Currently the property has central heating run via the stove within the kitchen, however the house has been unoccupied for 2 years and the heating has not been in use during that period.

 

Services

Mains water, electricity and drainage are connected to the property.

 

Please contact our Camelford Office for further details.

Important Information

  • This is a Freehold property.
  • This Council Tax band for this property is: D

Property Ref: 993181

Share:

Similar Properties

Talmena Avenue, Wadebridge, PL27 7RP

4 Bedroom Detached House | Guide Price £445,000

Immaculately presented 4/5 bedroom detached family home which has undergone extensive modernisation by the current owner...

Oak Park, St Tudy PL30

3 Bedroom Bungalow | £445,000

A beautifully refurbished 3 bedroom, one en suite detached modern bungalow together with conservatory and private rear g...

Delabole PL33

4 Bedroom Detached House | £440,000

A magnificent modern 4 bedroom, one en suite family home finished to a very high standard n this popular part of Delabol...

Michaelstow, St Tudy PL30

3 Bedroom Barn Conversion | Guide Price £450,000

A 3 bedroom detached barn conversion together with generous gardens of approximately 0.5 acre forming part of a small cl...

Trefrew Road, Camelford, PL32

4 Bedroom Detached House | Offers in region of £450,000

A substantial 4 bedroom 3 reception room detached home standing in generous grounds of 0.81 of an acre offering developm...

Fisher Close, Wadebridge, PL27

3 Bedroom Bungalow | £450,000

Immaculately presented 3 double bedroom detached bungalow located within Fisher Close, Wadebridge offering off road park...

Cole Rayment & White (Wadebridge)

Wadebridge, Cornwall, PL27 7DG

01208 813595

How much is your home worth?

Use our short form to request a valuation of your property.

Request a Valuation

Mortgage Calculator

Amount Borrowed: £
Total Amount Repayable: £
Total Monthly Payment: £
©2026 The Guild of Property Professionals. All rights reserved. Terms and Conditions | Privacy Policy | Cookie Policy | Complaints Policy | Members Login
The Guild of Property Professionals Trading Address: 121 Park Lane, London W1K 7AG. GPEA Limited. Registered in England & Wales.  Company No: 02819824.  Registered Office Address: 2 St. Stephen's Court, St. Stephen's Road, Bournemouth, Dorset, England, BH2 6LA.  VAT Registration No: 576 8795 61
Book a Property Valuation Update Cookies Preferences