Segensworth Road, Titchfield Park

Guide Price
£535,000

3 Bedroom Detached Bungalow for sale in Titchfield Park

1 3 2
  • Beautiful '2023' built three bedroom detached bungalow sat on a development made up of only two bungalows
  • No chain ahead
  • The original developers have added in solar panels, triple glazing & air source heat pumps to make the homes as energy efficient as possible
  • Allocated parking for three vehicles
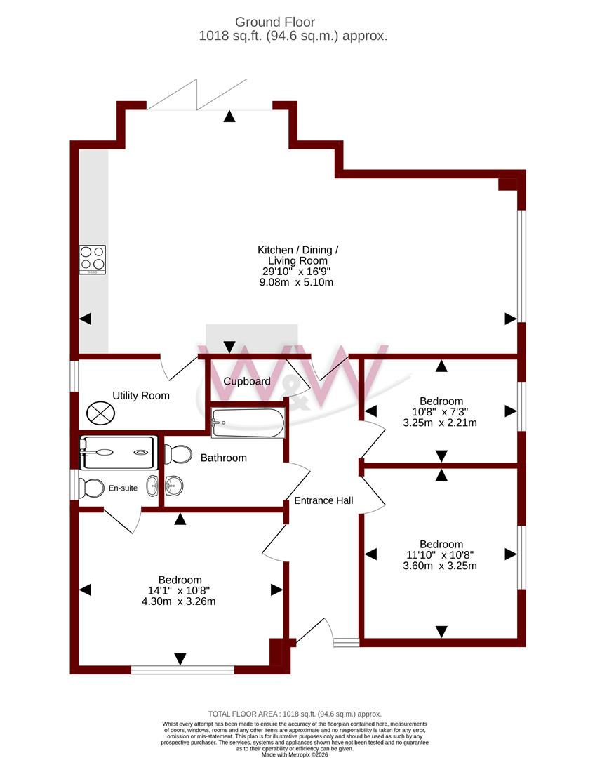
  • 29'10ft Open plan kitchen/dining/living room
  • Two modern bathrooms

W&W are extremely delighted to offer this beautiful '2023' built three bedroom detached bungalow sat on a development made up of only two bungalows. The property boasts three bedrooms, impressively sized open plan kitchen/dining/living room, family bathroom & en-suite shower room to the main bedroom. The property also benefits from 'in our opinion' a truly impressive plot for a new build bungalow with rear garden as well as allocated parking for several vehicles.

Segensworth Road is situated with the amenities of Locks Heath & Whiteley Shopping Centres within easy reach, as well as those of Park Gate which are a 25 minute walk away. Excellent transport links including A27, M27 & Swanwick train station are close by. The development is set approx. 100ft back from the main road and is surrounded by ancient woodland.

Stunning '2023' build three bedroom detached bungalow

Beautifully positioned plot enjoying 'in our opinion' a truly enviable woodlands location

Approx.100ft shared driveway leading to the two properties

The development consists of two bungalows & has been built to exceptionally high standards throughout

Welcoming entrance hall enjoying engineered oakwood flooring flowing through into the kitchen/dining/living room & built in storage cupboard

Impressively sized dual aspect kitchen/dining/living room enjoying aluminium bi-folding doors opening out onto the rear garden

Modern kitchen benefitting from quartz worktops & attractive two tone units

Integrated appliances include induction hob, oven, microwave, fridge/freezer & dishwasher

Utility room providing space/plumbing for washing machine

Main bedroom enjoying triple glazed windows & en-suite

Modern en-suite shower room comprising 'Hansgrohe' wash hand basin, double shower cubicle tray with rainfall shower head & full height 'Porcelanosa' tiled walls/flooring

Two additional bedrooms both benefitting from triple glazed windows

Modern bathroom comprising 'Hansgrohe' three piece white suite & attractive wall/floor tiling

Internal oak veneer doors throughout

Enclosed landscaped garden majority laid to lawn with patio terraced area perfect for alfresco dining

Shared driveway leading to three block paved allocated parking bays

The original developers have added in solar panels, triple glazing & air source heat pumps to make the homes as energy efficient as possible

10 Year new home building warranty with 8 years remaining

The property is of traditional brick build and is connected to mains drainage, water & electrics. The property enjoys underfloor heating via the air pump system

Broadband - There is broadband connected to the property

Please check here for potential broadband speeds - https://www.openreach.com/fibre-broadband

The current seller informs us that they have mobile signal and are no current black spots. Please check here for all networks - https://checker.ofcom.org.uk/

Property Ref: 57066_34421898

Share:

Similar Properties

Deacon Road, Locks Heath, Southampton

4 Bedroom Detached House | Guide Price £535,000

W&W are delighted to offer for sale this beautifully presented, extended & vastly improved four bedroom detached family...

Speyside Close, Titchfield Park

3 Bedroom Detached Bungalow | Guide Price £525,000

W&W are delighted to offer for sale this brand new three bedroom detached bungalow finished to an exceptionally high spe...

Gray Close, Warsash

4 Bedroom Detached House | Guide Price £525,000

W&W are delighted to offer for sale this well presented & extended four bedroom detached family home situated in a sough...

Segensworth Road, Titchfield Park

3 Bedroom Detached Bungalow | Guide Price £540,000

W&W are delighted to offer for sale this brand new three bedroom detached bungalow finished to an exceptionally high spe...

Speyside Close, Titchfield Park

3 Bedroom Detached Bungalow | Guide Price £550,000

W&W are delighted to offer for sale this brand new three bedroom detached bungalow finished to an exceptionally high spe...

Segensworth Road, Titchfield Park

3 Bedroom Detached Bungalow | Guide Price £550,000

W&W are delighted to offer for sale this brand new three bedroom detached bungalow finished to an exceptionally high spe...

Walker & Waterer (Park Gate)

Southampton, Park Gate, Hampshire, SO31 7GE

01489 577990

How much is your home worth?

Use our short form to request a valuation of your property.

Request a Valuation

Mortgage Calculator

Amount Borrowed: £
Total Amount Repayable: £
Total Monthly Payment: £
©2026 The Guild of Property Professionals. All rights reserved. Terms and Conditions | Privacy Policy | Cookie Policy | Complaints Policy | Members Login
The Guild of Property Professionals Trading Address: 121 Park Lane, London W1K 7AG. GPEA Limited. Registered in England & Wales.  Company No: 02819824.  Registered Office Address: 2 St. Stephen's Court, St. Stephen's Road, Bournemouth, Dorset, England, BH2 6LA.  VAT Registration No: 576 8795 61
Book a Property Valuation Update Cookies Preferences