The Square, Witheridge, EX16

Offers Over
£175,000
SSTC
This property listing is now SSTC

3 Bedroom End of Terrace House for sale in Tiverton

1 3 1
  • Pretty mews style home
  • Superb value for money
  • 3 bedrooms
  • Central village location
  • Garage
  • Open plan living spaces
  • Separate utility
  • First floor luxury shower room
  • No chain

Tucked away in a mews style courtyard, this three-bedroom end terrace house is just one of three similar properties. Converted from former stables, it’s got character and charm with modern convenience. The part stone/part rendered façade is an attractive welcome and although central and being close to everything the village has to offer, it’s off the main road and a little hidden gem. The village offers a local shop/post office, pub and an active community as well as a regular bus services to Tiverton, South Molton and Crediton.

The house itself is surprisingly spacious and has been thoughtfully renovated throughout, blending modern finishes with timeless character. The ground floor is open and bright, with a woodburner set in a stone fireplace, exposed ceiling beams, and stable-style door to the front, adding plenty of personality. New oak flooring runs through the living space, creating a warm and welcoming flow and the central stairs create zones for cooking and relaxing. To the rear, there’s a useful utility area and door to the back where there’s access for maintenance.

Upstairs there are three bedrooms, plus a stylish shower room with beautiful metro tiling, contrasting grout and Victorian-inspired fittings. Everything feels fresh and carefully chosen. Worth noting is that in addition to the aforementioned improvements, the windows, lighting, flooring, plastering and heating have all been renewed in recent years.

Unusually for a property of this type (and value!) there’s a good-sized garage for parking or storage. Additional parking is freely available on the street or in The Square, just seconds away on foot and it’s not a busy or restricted area for parking. Although the property doesn’t come with its own garden, you’re only a short stroll from the Two Moors Way and the village recreation ground – so there’s no shortage of green space on your doorstep.

In summary, this is a character, 3 bedroom home in great condition, with a garage in a Devon village and it is excellent value for money.

Agent’s notes: The property is next to a village pub and although this doesn’t affect the enjoyment of living here, buyers should be aware. The pub garden to the rear is only accessible and used by the landlord. No customers ever use the garden and as such it is very quiet. The tiling in the kitchen hasn’t been completed but this would allow a new owner to choose their preference.

 

Buyers' Compliance Fee Notice

Please note that a compliance check fee of £25 (inc. VAT) per person is payable once your offer is accepted. This non-refundable fee covers essential ID verification and anti-money laundering checks, as required by law.

 

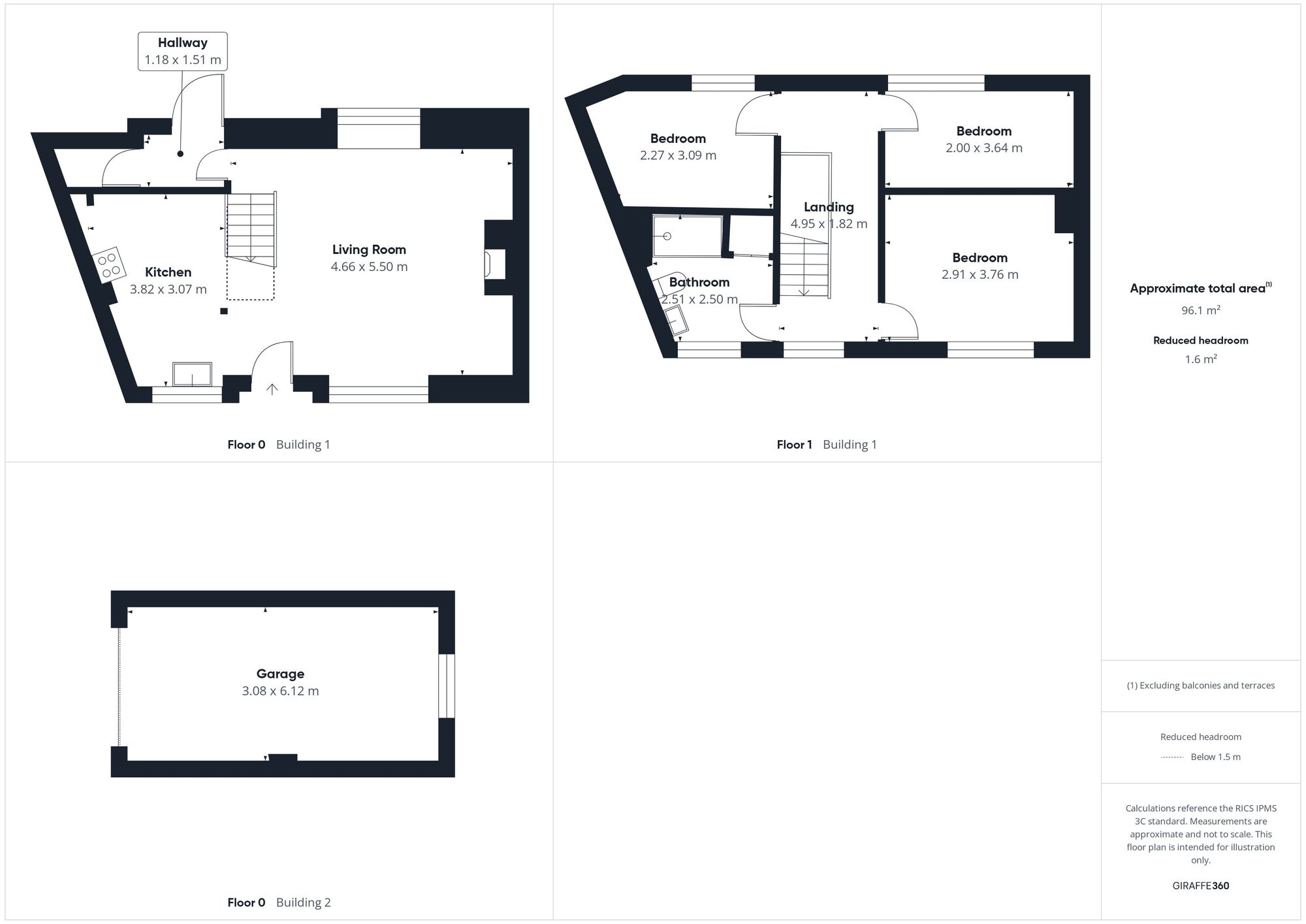
Please see the floorplan for room sizes.

Current Council Tax: Band C – North Devon

Approx Age: Converted 1970’s

Construction Notes: Standard

Utilities: Mains electric, water, telephone & broadband

Drainage: Mains

Heating: Oil fired central heating and wood burner

Listed: No

Conservation Area: Yes

Tenure: Freehold

 

WITHERIDGE is a large village in a secluded part of Devon, between Dartmoor and Exmoor – known commonly as the gateway to the ‘Two Moors Way’, an epic hiker’s trail. Close to the village are some enchanting woodland walks, including, the magical ‘Tarka Trail’ at Eggesford - a 20-min drive away. Its annual fayre ‘St John’s’ is one of the oldest in the country (est 1248) and offers lots of traditional displays, such as morris dancing, folk music and maypole dancing. There are two inns, ‘The Mitre’ and ‘The Thelbridge Cross’ – both of which have good reviews on trip advisor. Like many bigger villages Witheridge has a modern shop/ post office with all the essentials. The nearest towns are Crediton, 11 miles south and Tiverton, 10 west.

 

DIRECTIONS : For sat-nav use EX16 8AE and the What3Words address is ///easily.covertly.ages but if you want the traditional directions, please read on.

Upon entering Witheridge from Tiverton direction on the B3137, proceed towards The Square and just before arriving, look out for The Mitre on your right. Take the driveway on the right immediately before The Mitre and the property will be found on the left. For viewings, please park in The Square or on the road.  

 

 

Energy Efficiency Current: 46.0
Energy Efficiency Potential: 85.0

Important Information

  • This is a Freehold property.
  • This Council Tax band for this property is: C

Property Ref: bd917ab1-d458-49cf-83fd-ade939ab344b

Share:

Similar Properties

Sandford, Crediton, EX17

2 Bedroom Terraced House | Guide Price £175,000

Tucked away 2 or 3 bedroom cottage in Sandford, plenty of character and no onward chain!

Orchard Way, Lapford, EX17

2 Bedroom Terraced Bungalow | Guide Price £170,000

Ideally positioned terraced bungalow with 2 bedrooms, generous gardens to the rear, parking and a garage – No onward cha...

Churchill Drive, Crediton, EX17

1 Bedroom Apartment | Guide Price £170,000

No Chain! Spacious converted apartment in a tucked away yet highly convenient town location, 1 bedroom, off road parking...

Churchill Drive, Crediton, EX17

2 Bedroom Flat | Guide Price £185,000

A stylish ground floor apartment with a private garden and parking in a modern 2020 town conversion. Immaculate througho...

Westgate, Lapford, EX17

2 Bedroom Bungalow | Guide Price £195,000

*Keen to sell as already found onward purchase!* A semi-detached, 2 bedroom bungalow on a quiet village cul-de-sac with...

Mill Lane, Bow, EX17

2 Bedroom Semi-Detached Bungalow | Guide Price £195,000

* No Chain * Semi-detached village edge bungalow with 2 double bedrooms, garden & parking with uPVC double glazing and g...

Helmores (Crediton)

Crediton, Devon, EX17 3LF

01363 777999

How much is your home worth?

Use our short form to request a valuation of your property.

Request a Valuation

Mortgage Calculator

Amount Borrowed: £
Total Amount Repayable: £
Total Monthly Payment: £
©2026 The Guild of Property Professionals. All rights reserved. Terms and Conditions | Privacy Policy | Cookie Policy | Complaints Policy | Members Login
The Guild of Property Professionals Trading Address: 121 Park Lane, London W1K 7AG. GPEA Limited. Registered in England & Wales.  Company No: 02819824.  Registered Office Address: 2 St. Stephen's Court, St. Stephen's Road, Bournemouth, Dorset, England, BH2 6LA.  VAT Registration No: 576 8795 61
Book a Property Valuation Update Cookies Preferences