The Heath, Horsmonden

Offers in region of
£249,995

3 Bedroom Flat for sale in Tonbridge

1 3 1
  • Duplex Apartment
  • Grade II Listed
  • Off street parking
  • No forward chain
  • Communal Gardens
  • EPC Rating N/A / Council Tax Band C - £2,062.64 P.A

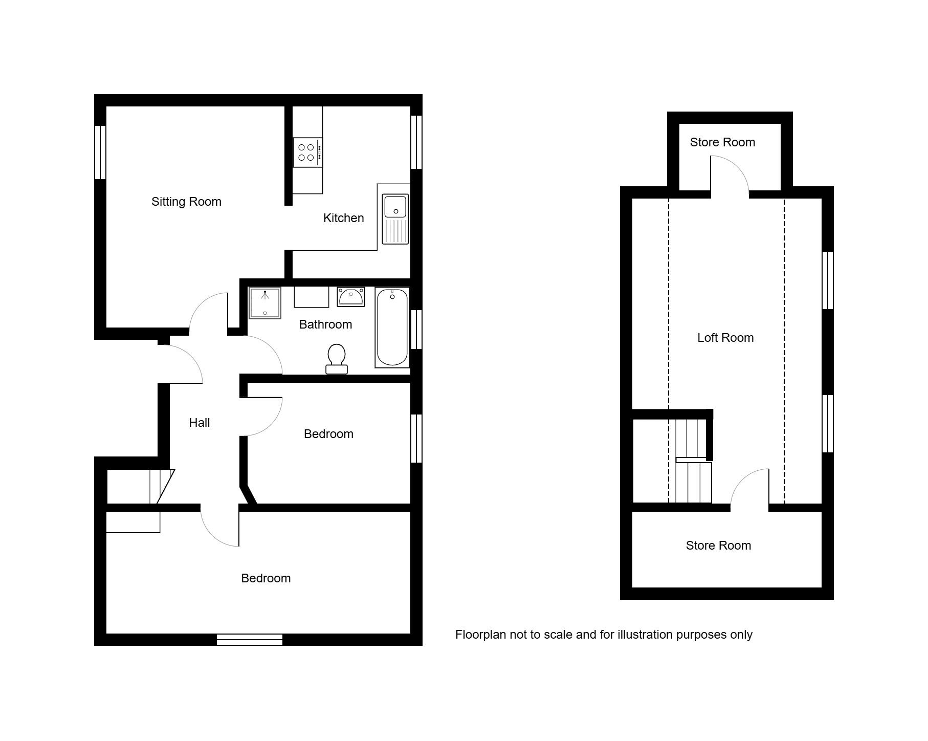
Waghorn & Company are delighted to present this beautiful and spacious two-bedroom duplex apartment, featuring an impressive 27’5” x 9’6” attic room, set within a most charming detached Grade II Listed building in the very heart of the picturesque village of Horsmonden. Steeped in character and offering an approximate floor area of 100 sq. m (1,076 sq. ft.), this wonderful home combines period charm with generous accommodation throughout. Perfectly positioned just a short stroll from the delightful Village Green, local shops, cafés, and amenities, it also benefits from excellent access to Paddock Wood Main Line Station, providing convenient links to London and the South Coast. This truly unique property offers the rare opportunity to enjoy village life at its best , right in the centre of one of Kent’s most sought-after communities. An early viewing is highly recommended, and the property is offered for sale with no forward chain.

Entrance

Access is via a pathway leading to the rear of the property, glazed entrance door leading to communal area with stairs leading to private entrance door which opens to entrance hall.

Entrance Hall

Part glazed door to sitting room and door to shower room, stairs leading to second floor and wall mounted electric heater.

Sitting Room
10' 0'' x 15' 6'' (3.05m x 4.72m)
Double glazed window to side with views over central courtyard communal gardens, door to kitchen, two wall light points, exposed timber beam and wall mounted electric heater.

Kitchen
12' 0'' x 8' 0'' (3.65m x 2.44m)
Double glazed window to side, single stainless steel sink and drainer with cupboards under and a further range of matching base and wall units, space and plumbing for washing machine and dishwasher, inset halogen hob, built in electric oven under and extractor hood over.

Bedroom 2
8' 0'' x 11' 3'' (2.44m x 3.43m)
Double glazed window to side and wall mounted electric heater.

Bedroom 1
18' 7'' x 8' 4'' (5.66m x 2.54m)
Double glazed window to rear and wall mounted electric heater.

Bathroom
11' 0'' x 5' 9'' (3.35m x 1.75m)
Double glazed frosted window to side, panelled bath with mixer taps and shower attachment, pedestal hand wash basin, shower cubicle with electric shower, low level W/C, ceramic wall tiling and inset spotlights.

Second Floor

leading to bedroom.

Attic Room
27' 5'' x 9' 6'' (8.35m x 2.89m) (restrictive head room)
double glazed windows to front, pitched roof, door to side for walk in wardrobe, further storage room housing hot water cylinder and slatted shelving, inset spotlights and wall mounted electric heater.

Outside

Well maintained communal gardens and allocated parking

Tenure

Share of Freehold
Length of Lease
999 years from the 1st January 1999
Annual Service Charge £3,707.49
Ground Rent £0

We recommend that the above details are verified by your legal representative prior to entering into a legally binding contract.

Important Information

  • This is a Leasehold property.

Property Ref: WAG02899

Share:

Similar Properties

Shipbourne Road, Tonbridge

2 Bedroom Retirement Property | Asking Price £225,000

Waghorn & Company are delighted to present to the market this exceptional park home, ideally situated within the highly...

Speldhurst Road, Tunbridge Wells

1 Bedroom Ground Floor Flat | Asking Price £225,000

Waghorn & Company are delighted to offer to the sales market this immaculately presented one bedroom ground floor flat,...

Pennington Road, Tunbridge Wells

2 Bedroom Ground Floor Flat | Guide Price £225,000

Guide Price £225,000 - £250,000 Waghorn & Company are delighted to offer to the market this stunning two bedroom ground...

Shipbourne Road, Tonbridge

2 Bedroom Retirement Property | Asking Price £250,000

Waghorn and Company are proud to present to the market this spacious 2 bedroom Park Home. Situated in the sought after T...

Shipbourne Road, Tonbridge

2 Bedroom Detached Bungalow | Asking Price £250,000

Waghorn & Company are pleased to offer this two bedroom park home situated within the highly sought after Towngate Wood...

Uridge Crescent, Tonbridge

2 Bedroom Ground Floor Flat | Asking Price £265,000

A beautifully presented two bedroom ground floor apartment, having been comprehensively refurbished to an exacting stand...

Waghorn & Company (Tonbridge)

Tonbridge, Kent, TN9 1DH

01732 808542

How much is your home worth?

Use our short form to request a valuation of your property.

Request a Valuation

Mortgage Calculator

Amount Borrowed: £
Total Amount Repayable: £
Total Monthly Payment: £
©2026 The Guild of Property Professionals. All rights reserved. Terms and Conditions | Privacy Policy | Cookie Policy | Complaints Policy | Members Login
The Guild of Property Professionals Trading Address: 121 Park Lane, London W1K 7AG. GPEA Limited. Registered in England & Wales.  Company No: 02819824.  Registered Office Address: 2 St. Stephen's Court, St. Stephen's Road, Bournemouth, Dorset, England, BH2 6LA.  VAT Registration No: 576 8795 61
Book a Property Valuation Update Cookies Preferences