Oaks Close, Tonbridge

Offers in region of
£475,000
SSTC
This property listing is now SSTC

3 Bedroom Semi-Detached House for sale in Tonbridge

1 3 2
  • Beautifully presented modern three bedroom town house arranged over three floors
  • Stylish kitchen with quartz work surfaces and spacious lounge/dining room with French doors to garden
  • Principal bedroom suite occupying the top floor with en-suite shower room
  • Driveway parking for two vehicles and low maintenance rear garden
  • Conveniently located for local shops, bus routes and favoured schools
  • EPC C / Council Tax Band E £2,903 PA

Tucked away on a private road within a sought-after cul-de-sac, this beautifully presented, chain-free semi-detached home offers easy, modern living in a superbly convenient location. The current owners particularly enjoy the pleasant walk into the town centre, making the most of the nearby amenities and lifestyle on offer. Inside, a sleek fitted kitchen and an open lounge/dining space create a great flow for everyday living and entertaining, with French doors opening onto a private, low-maintenance rear garden. A downstairs cloakroom adds everyday practicality. Upstairs, two bedrooms and a family bathroom are complemented by a superb top-floor principal suite with fitted wardrobes and an en-suite shower room, creating a peaceful retreat. Parking and excellent storage complete the picture. An early viewing is highly recommended to avoid disappointment.

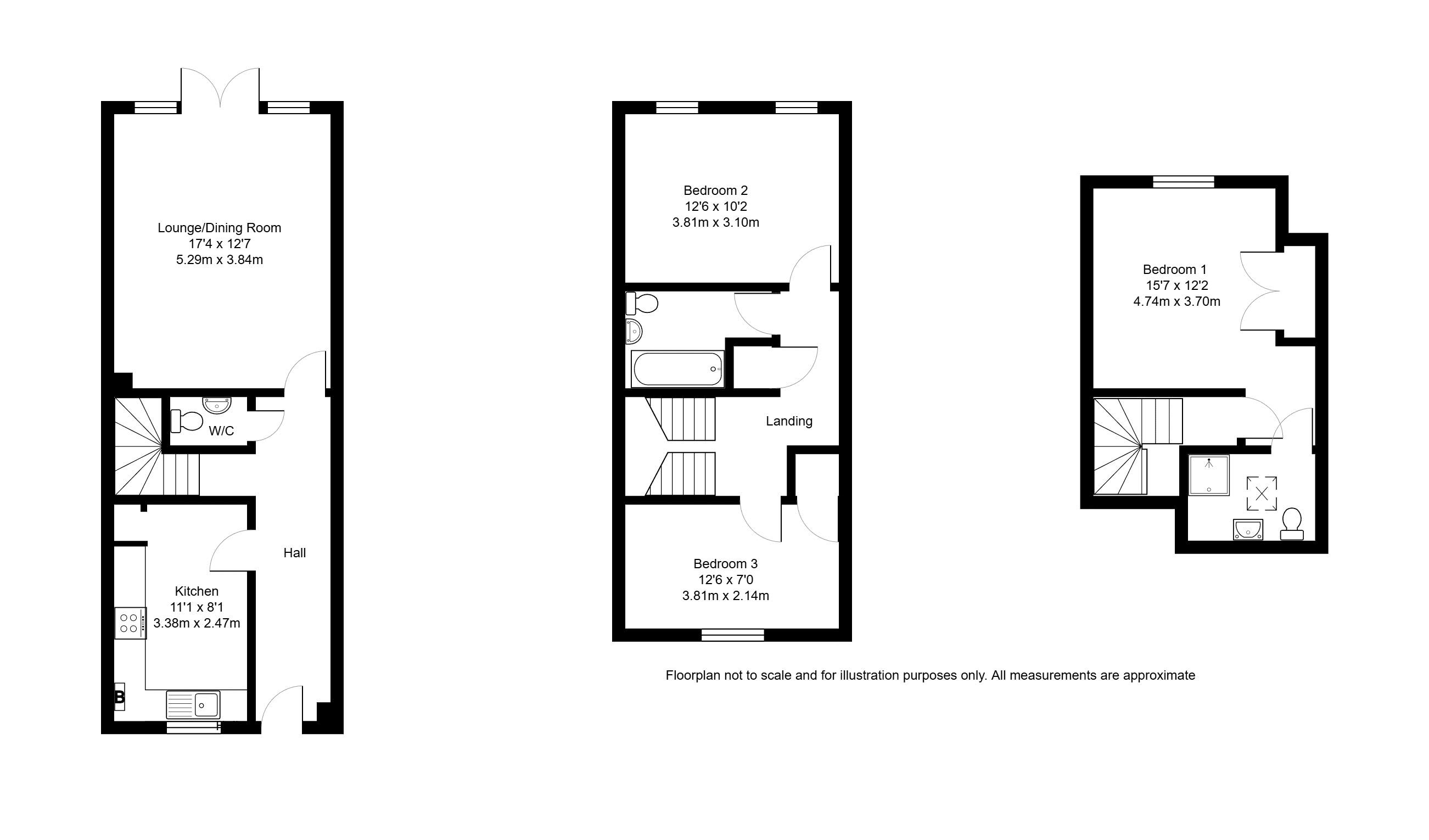
Entrance

Access is via a double glazed front entrance door with leaded light frosted glass inserts leading to the entrance hall.

Entrance Hall

Tiled floor, radiator, stairs rising to the first floor landing, doors to lounge/dining room, cloakroom and kitchen.

Kitchen

Tiled floor in keeping with the entrance hall, double glazed window to front. One and a half bowl stainless steel sink set within quartz work surfaces with a further range of matching base and wall units. Inset gas hob with built-in electric oven and extractor hood over. Inset LED spotlights. Radiator. Space for freestanding fridge freezer. Space and plumbing for washing machine and dishwasher.

Lounge/Dining room

Double glazed French doors opening onto the rear garden with matching side windows. Wood flooring and radiator.

Cloakroom

Tiled floor, pedestal wash hand basin with splash back tiling, low level W.C, radiator and extractor fan.

First Floor Landing

Stairs rising to second floor. Built-in cupboard currently housing tumble dryer. Doors to two bedrooms and family bathroom.

Bedroom 2

Two double glazed windows to rear, radiator, laid to carpet.

Bedroom 3

Double glazed window to rear, wood flooring, built-in storage cupboard, radiator.

Family Bathroom

Tiled floor, paneled bath with mixer taps and shower attachment, ceramic wall tiling, pedestal wash hand basin, low level W.C, chrome heated towel rail and fitted shaver socket.

Second Floor Landing

Door opening onto the principal suite.

Bedroom 1

Double glazed window to rear, radiator, built-in double wardrobe, access to loft space and door to en-suite.

En-suite

Shower cubicle with power shower, Velux window, inset spotlights, extractor fan, pedestal wash hand basin with splash back tiling, low level W.C, tiled floor and chrome heated towel rail.

Outside

Front

Brick paved driveway providing parking for two vehicles with pathway leading to the front entrance door. Outside lighting and outside tap.

Rear Garden

Stone patio area with two raised flower borders. Low maintenance garden with useful shed (we are advised by the seller that this is to remain). Side pedestrian access and outside lighting.

Tenure

Freehold
Service charge for the Road £45.13PCM (sinking Fund)

Important Information

  • This is a Freehold property.

Property Ref: WAG03220

Share:

Similar Properties

St. Marys Road, Tonbridge

3 Bedroom Terraced House | Asking Price £475,000

Waghorn and Company are proud to present to the market this charming bay fronted Victorian terraced house. Internally th...

Walton Road, Tonbridge

3 Bedroom Semi-Detached House | Guide Price £475,000

Guide Price £475,000-£500,000 Attractive three bedroom family home is offered for sale with no onward chain and occupies...

Salisbury Road, Tonbridge

3 Bedroom Semi-Detached House | Guide Price £475,000

Guide Price £475,000 - £500,000 Well-presented three-bedroom semi-detached family home located in a much sought-after ar...

Douglas Road, Tonbridge

4 Bedroom Semi-Detached House | Guide Price £490,000

The property offers excellent potential as an ongoing, income-generating investment with established tenants already in...

Barden Road, Tonbridge

4 Bedroom End of Terrace House | Guide Price £495,000

This charming 4 bedroom period property, with NO CHAIN, is located just a short walk from Tonbridge Mainline Railway Sta...

Brookmead, Tonbridge

3 Bedroom Detached Bungalow | Guide Price £495,000

Guide Price £495,000 -£525,000 Waghorn & Company are proud to market this wonderful detached bungalow located within the...

Waghorn & Company (Tonbridge)

Tonbridge, Kent, TN9 1DH

01732 808542

How much is your home worth?

Use our short form to request a valuation of your property.

Request a Valuation

Mortgage Calculator

Amount Borrowed: £
Total Amount Repayable: £
Total Monthly Payment: £
©2026 The Guild of Property Professionals. All rights reserved. Terms and Conditions | Privacy Policy | Cookie Policy | Complaints Policy | Members Login
The Guild of Property Professionals Trading Address: 121 Park Lane, London W1K 7AG. GPEA Limited. Registered in England & Wales.  Company No: 02819824.  Registered Office Address: 2 St. Stephen's Court, St. Stephen's Road, Bournemouth, Dorset, England, BH2 6LA.  VAT Registration No: 576 8795 61
Book a Property Valuation Update Cookies Preferences