Shipbourne Road, Tonbridge

Asking Price
£200,000

2 Bedroom Retirement Property for sale in Tonbridge

2 2 1
  • Double park home for the over 50's
  • Sold with no onward chain
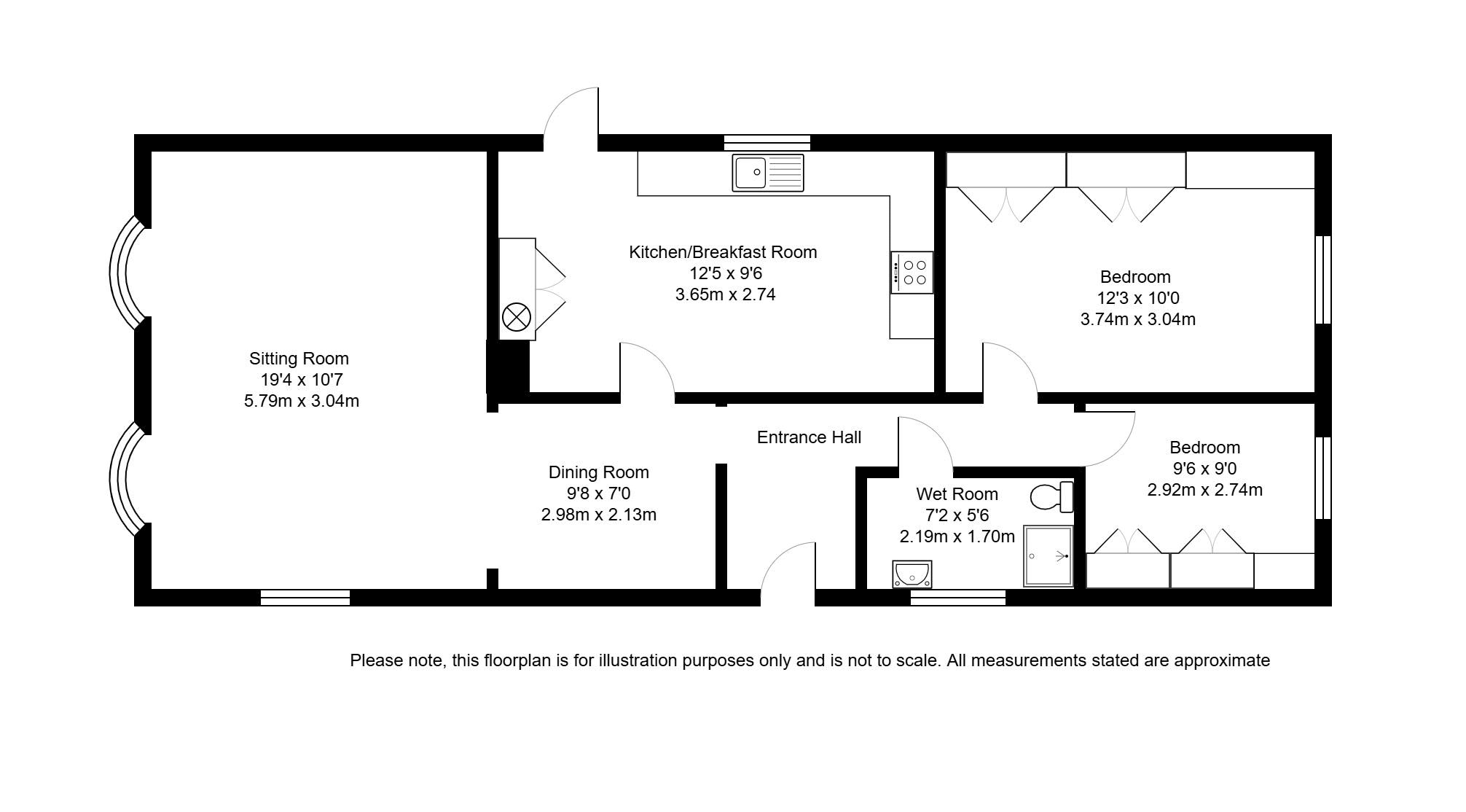
  • 19'4 x 10'7 Sitting Room
  • Allocated parking
  • Viewing highly recommended
  • EPC N/A Council Tax Band B £1832.58

Waghorn & Company are delighted to present to the market this exceptional park home, ideally situated within the highly sought-after Town Gate Wood development in Tonbridge, renowned for its friendly and welcoming community. This charming home is offered with no onward chain and features spacious accommodation, central heating, and is set on a particularly desirable plot. The property benefits from convenient access to local shops, amenities, and public transport links, making it an excellent opportunity for those seeking a peaceful yet well-connected lifestyle. Viewing is highly recommended to fully appreciate all that this unique home has to offer.

Entrance

Access is via a double glazed entrance door located to the side of the property leading to entrance hall.

Entrance Hall

Doors to dining room, bedrooms and wet room.

Dining room

Open plan to sitting room and door to kitchen/breakfast room. Double glazed window to side. Radiator.

Sitting Room

Two double glazed bow windows to front, double glazed window to side. Wall mounted gas fire, two radiators.

Kitchen/Breakfast Room

Double glazed door to side, double glazed window to side. built in cupboard with sliding doors incorporating hot water cylinder and shelving. Stainless steel sink and drainer with cupboard under. Further range of matching base and wall units. Space for free standing gas cooker and space and plumbing for washing machine.

Bedroom 1

Selection of fitted wardrobes, vanity unit with fitted wall mirror and matching bedside cabinet. double glazed window to rear, radiator.

Bedroom 2

Selection of fitted wardrobes, vanity unit with fitted wall mirror and matching bedside cabinet. double glazed window to rear, radiator.

Wet Room

Double glazed window to side, wall mounted shower, hand wash basin, low level WC.

Tenure

Leasehold; We understand the ground rent is approximately £214 Per Month. This would need to be confirmed by Berkley Homes prior to completion.

Important Information

  • This is a Leasehold property.

Property Ref: EAXML10807_12671131

Share:

Similar Properties

Priory Road, Tonbridge

1 Bedroom Flat | Asking Price £185,000

Waghorn & Company are delighted to offer for sale this top floor apartment. Double bedroom, spacious lounge, fitted kitc...

Tonbridge Road, Hildenborough

2 Bedroom Flat | Auction Guide Price £180,000

Being sold via Secure Sale online bidding. Terms & Conditions apply. Starting Bid £200,000.00. Two bedroom, first floor...

Falmouth Place, Tonbridge

1 Bedroom Ground Floor Flat | Asking Price £165,000

Waghorn & Company are delighted to offer to the market this one-bedroom apartment, tucked away in a quiet cul-de-sac in...

Speldhurst Road, Tunbridge Wells

1 Bedroom Ground Floor Flat | Asking Price £225,000

Waghorn & Company are delighted to offer to the sales market this immaculately presented one bedroom ground floor flat,...

Pennington Road, Tunbridge Wells

2 Bedroom Ground Floor Flat | Guide Price £225,000

Guide Price £225,000 - £250,000 Waghorn & Company are delighted to offer to the market this stunning two bedroom ground...

Shipbourne Road, Tonbridge

2 Bedroom Retirement Property | Asking Price £225,000

Waghorn & Company are delighted to present to the market this exceptional park home, ideally situated within the highly...

Waghorn & Company (Tonbridge)

Tonbridge, Kent, TN9 1DH

01732 808542

How much is your home worth?

Use our short form to request a valuation of your property.

Request a Valuation

Mortgage Calculator

Amount Borrowed: £
Total Amount Repayable: £
Total Monthly Payment: £
©2026 The Guild of Property Professionals. All rights reserved. Terms and Conditions | Privacy Policy | Cookie Policy | Complaints Policy | Members Login
The Guild of Property Professionals Trading Address: 121 Park Lane, London W1K 7AG. GPEA Limited. Registered in England & Wales.  Company No: 02819824.  Registered Office Address: 2 St. Stephen's Court, St. Stephen's Road, Bournemouth, Dorset, England, BH2 6LA.  VAT Registration No: 576 8795 61
Book a Property Valuation Update Cookies Preferences