Nursery Close, Tonbridge

Asking Price
£405,000
SSTC
This property listing is now SSTC

3 Bedroom Semi-Detached House for sale in Tonbridge

2 3 1
  • Much-loved family home, for over 65 years.
  • Offers exceptional scope for improvement and extension (STPP), making it ideal for buyers seeking a project.
  • Benefits from a generous rear garden, driveway, and garage.
  • Perfectly positioned near favoured schools, open green spaces, and excellent bus routes.
  • A wonderful opportunity for someone to create their “forever home” and enjoy the same happiness experienced by the previous owners for decades.
  • EPC TBC / Council tax band D £2356.37

Waghorn & Company are proud to offer this exciting opportunity to acquire a much-loved family home that has been in the same ownership for over 65 years. The property offers immense scope for improvement and extension (STPP), benefitting from a generous rear garden, driveway, and garage. Surrounded by favoured schools, open green spaces, and excellent bus routes, it is ideally situated for families. This home is full of potential and provides the perfect chance for families to create their forever home and enjoy the same happiness the current owners have experienced for decades.

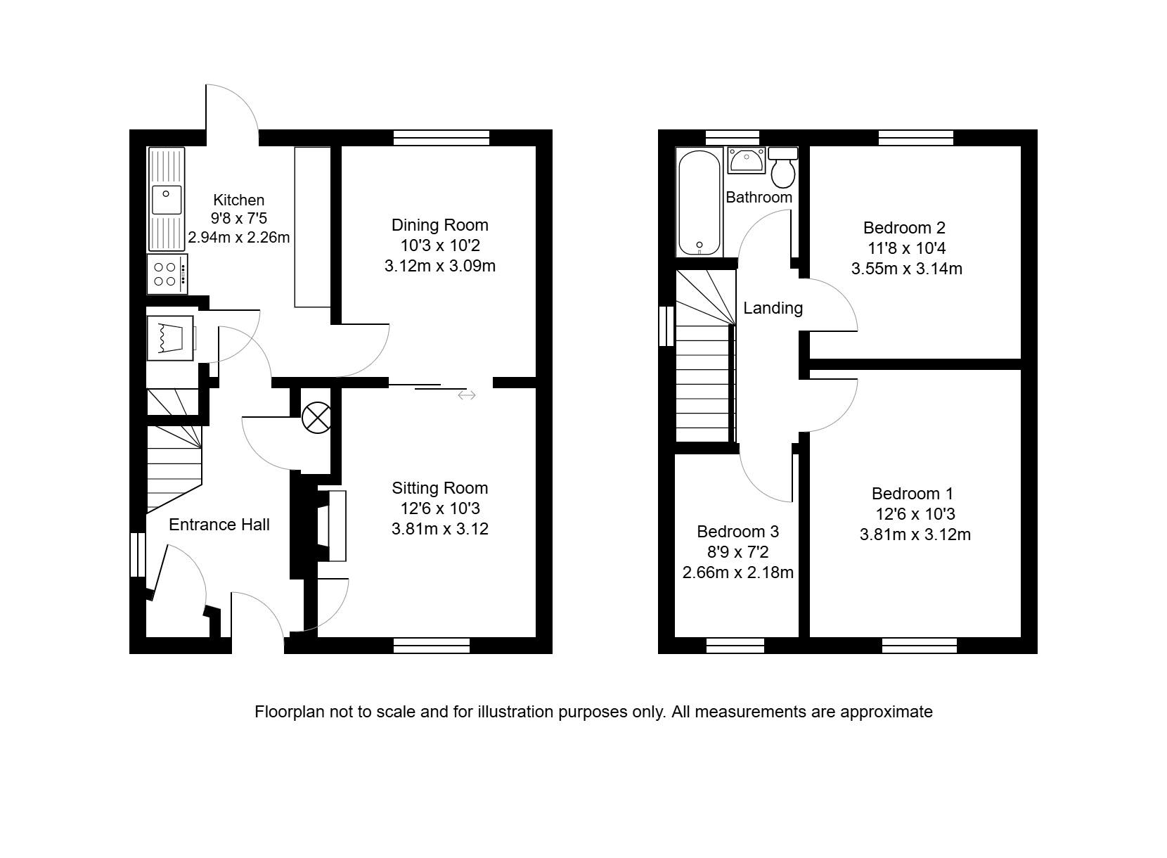
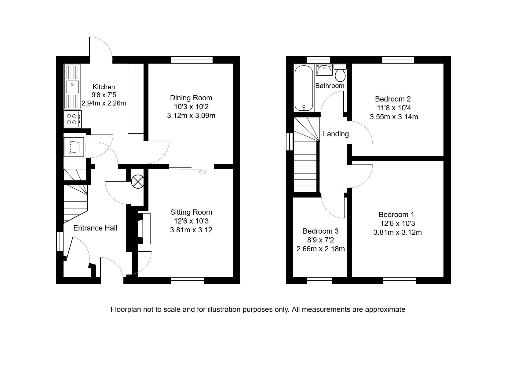
Entrance

Access is via a solid wood entrance door with frosted glass panel, opening into the entrance hall. Stairs rise to the first floor, and there is a glazed window to the side, along with doors to the sitting room and kitchen. The hallway includes a built-in cupboard and an airing cupboard housing the hot water cylinder with shelving. A radiator is also located in the hall.

Sitting Room

The sitting room features a window to the front and twin opening doors leading through to the dining room. There is a tiled fireplace with tiled back and hearth.

Dining Room

The dining room has a large picture window overlooking the rear garden and a door providing access to the kitchen.

Kitchen

The kitchen is fitted with a stainless steel sink with twin drainer, space for a freestanding electric cooker, and a range of matching base and wall units. There is a window to the side and a part-glazed door leading to the rear garden. An understairs storage cupboard provides additional space and plumbing for a washing machine. There is also a radiator.

First Floor Landing

The first floor landing provides access to the loft and doors to all bedrooms and the family bathroom. A window to the side provides natural light.

Bedroom 1

Window to the front.

Bedroom 2

Window to the rear and a radiator.

Bedroom 3

Window to the front

Bathroom

Window to the rear, a pedestal wash hand basin, a paneled bath and a low-level WC. There is a frosted glazed window to the rear, splash back tiling, a radiator and a wall-mounted electric heater.

Outside

Front

To the front of the property there is a driveway to the side, leading to a detached garage. The remainder of the front garden is laid to lawn with an array of established shrubs and bushes.

Rear Garden

The rear garden has side pedestrian access and has been cleared, offering a leafy outlook to the rear. The property backs onto a pretty stream, with Scotch’s Playing Field beyond.

Garage

The detached garage is in need of some repair and maintenance.

Tenure

Freehold

Important Information

  • This is a Freehold property.

Property Ref: WAG03148

Share:

Similar Properties

Shipbourne Road, Tonbridge

2 Bedroom Flat | Asking Price £400,000

Waghorn & Company are delighted to offer to the market this beautifully presented, 2 bedroom apartment which offers spac...

Burns Crescent, Tonbridge

3 Bedroom Semi-Detached House | Asking Price £400,000

Burns Crescent is a substantial semi detached family home conveniently located for favoured local schools, the High Stre...

Garden Road, Tonbridge

4 Bedroom Terraced House | Offers in excess of £395,000

Waghorn & Company are delighted to present this superb four-bedroom family home, ideally positioned within easy walking...

Springwell Road, Tonbridge

4 Bedroom Terraced House | Asking Price £425,000

Waghorn & Company are proud to offer to the market this wonderful four bedroom townhouse, ideally located in a popular r...

Hope Avenue, Hadlow

3 Bedroom Semi-Detached House | Guide Price £425,000

A substantial and well maintained three bedroom family home, set within the heart of the ever popular village of Hadlow,...

Hunt Road, Tonbridge

3 Bedroom Semi-Detached House | Asking Price £425,000

Waghorn & Company are pleased to offer this spacious three-bedroom semi-detached family home, ideally located just a sho...

Waghorn & Company (Tonbridge)

Tonbridge, Kent, TN9 1DH

01732 808542

How much is your home worth?

Use our short form to request a valuation of your property.

Request a Valuation

Mortgage Calculator

Amount Borrowed: £
Total Amount Repayable: £
Total Monthly Payment: £
©2026 The Guild of Property Professionals. All rights reserved. Terms and Conditions | Privacy Policy | Cookie Policy | Complaints Policy | Members Login
The Guild of Property Professionals Trading Address: 121 Park Lane, London W1K 7AG. GPEA Limited. Registered in England & Wales.  Company No: 02819824.  Registered Office Address: 2 St. Stephen's Court, St. Stephen's Road, Bournemouth, Dorset, England, BH2 6LA.  VAT Registration No: 576 8795 61
Book a Property Valuation Update Cookies Preferences