Pembury Road, Tonbridge

Asking Price
£350,000

2 Bedroom End of Terrace House for sale in Tonbridge

2 2 1
  • Chain Free! Charming Victorian end of terrace house located in sought after South Tonbridge
  • Easy to maintain rear garden with Summerhouse
  • Walking distance to the mainline station and vibrant High Street
  • Beautifully presented throughout and fully sound proofed
  • Handy loft room, perfect for a home office
  • EPC - TBC / Council Tax Band C £2094.37 P.A

Waghorn & Company are proud to present to the market this well presented 2 bedroom end of terrace house. The property is bright and airy throughout with an abundance of charm and quirky features and plenty of well thought out storage spaces. The easy to maintain rear garden has a patio area and the added bonus of a summerhouse complete with power and light, this could make an ideal workshop or home office. The location is also a huge selling point as the mainline station and High Street are within walking distance making this an ideal purchase for first time buyers or those who commute.

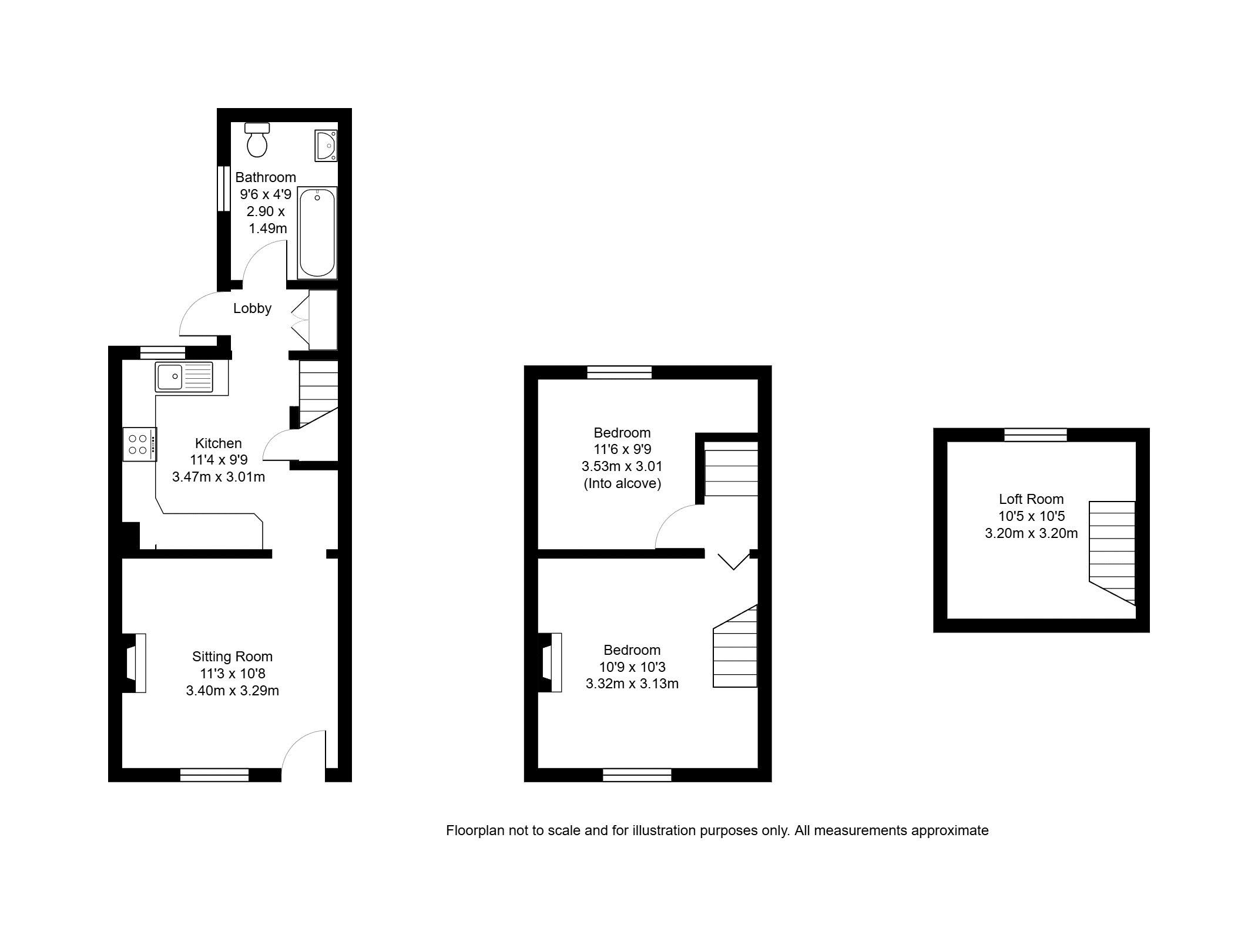
Entrance

Access is via a gate into a walled courtyard front garden to the front door which leads into the lounge

Lounge

Double glazed window to the front, laminated flooring and built in storage

Kitchen

The kitchen has a window overlooking the garden, a selection of built in cupboards, integrated oven with stainless steel extractor hood, tiled flooring and understairs cupboard.

Inner Lobby

Part glazed UPVC backdoor leading to the garden with space for washing machine

Bathroom

Double glazed window to the side and three piece modern bathroom suite, with built in cupboards for storage and tiled flooring.

First Floor Landing

Access to bedrooms 1 and 2

Bedroom 1

Double glazed window overlooking the front of the house, wooden flooring and stairs leading up to the loft room.

Bedroom 2

Double glazed window overlooking the garden, wooden flooring and built in storage in the alcove.

Loft Room

Velux window built in wardrobe and shelving

Rear Garden

Stepping from the back door onto a small patio area the cobbled pathway leads you down to a seating area and a gated area, behind the gate you have access to a summerhouse which has power and lighting

Tenure

Freehold

Important Information

  • This is a Freehold property.

Property Ref: EAXML10807_12810385

Share:

Similar Properties

Quarry Hill Road, Tonbridge

3 Bedroom Semi-Detached House | Guide Price £350,000

Waghorn and Company are proud to offer for sale this deceptively spacious Victorian family home, conveniently located fo...

Avon Close, Tonbridge

3 Bedroom Terraced House | Asking Price £350,000

Waghorn and Company are proud to offer to the market this good sized three bedroom family home in North Tonbridge. The p...

Woodside Road, Tonbridge

2 Bedroom Terraced House | Guide Price £350,000

Guide Price £350,000 -£375,000 Waghorn & Company are delighted to present this charming Victorian two-bedroom home to th...

Tulip Tree Close, Tonbridge

3 Bedroom Semi-Detached House | Asking Price £360,000

Waghorn & Company are delighted to offer to the market this well presented, 3 bedroom town house, conveniently situated...

Lavender Hill, Tonbridge

3 Bedroom Semi-Detached House | Offers in excess of £360,000

A rare opportunity to acquire a period home on one of the area’s most sought-after tree-lined roads, known for its great...

Albert Road, Tonbridge

3 Bedroom Flat | Asking Price £375,000

Waghorn & Company are pleased to offer to the market this Substantial Victorian three bedroom maisonette, located just a...

Waghorn & Company (Tonbridge)

Tonbridge, Kent, TN9 1DH

01732 808542

How much is your home worth?

Use our short form to request a valuation of your property.

Request a Valuation

Mortgage Calculator

Amount Borrowed: £
Total Amount Repayable: £
Total Monthly Payment: £
©2026 The Guild of Property Professionals. All rights reserved. Terms and Conditions | Privacy Policy | Cookie Policy | Complaints Policy | Members Login
The Guild of Property Professionals Trading Address: 121 Park Lane, London W1K 7AG. GPEA Limited. Registered in England & Wales.  Company No: 02819824.  Registered Office Address: 2 St. Stephen's Court, St. Stephen's Road, Bournemouth, Dorset, England, BH2 6LA.  VAT Registration No: 576 8795 61
Book a Property Valuation Update Cookies Preferences