Topsham, Devon

Guide Price
£595,000

4 Bedroom Semi-Detached House for sale in Topsham

2 4 2

Directions

From Darts Farm, proceed up into Topsham along Elm Grove Road. At the mini roundabout, proceed straight over. After 800 yards, turn left into Artillery Avenue. The property can be found on the right hand side after a further 200 yards.

What3Words ///guitar.festivity.knots

Situation

Artillery Avenue is a modern residential street located in Topsham, a charming and historic port town South East of Exeter.

The area is known for its high-quality housing, with many of the homes on Artillery Avenue being recently built and offering spacious, well-presented accommodation.

The street enjoys a family-friendly atmosphere while being within easy reach of local amenities. Topsham’s train station is less than a mile away, providing quick links to Exeter and Exmouth, and there are also nearby bus services and good road connections.

The town itself offers a welcoming community with independent shops, cafés, pubs, and access to the scenic Exe Estuary.

Local schools and healthcare facilities, such as Trinity Church of England Primary and Topsham Surgery, are conveniently close. With its blend of modern housing within a picturesque, well-connected setting, Artillery Avenue provides an ideal balance of suburban comfort and small-town charm, all within a few miles of Exeter city centre and Exeter International Airport.

Description

Surprisingly SPACIOUS semi-detached FAMILY HOME on a modern development a short distance from Topsham. OFF ROAD PARKING and GARAGE plus a level private garden. Offered with NO ONWARD CHAIN

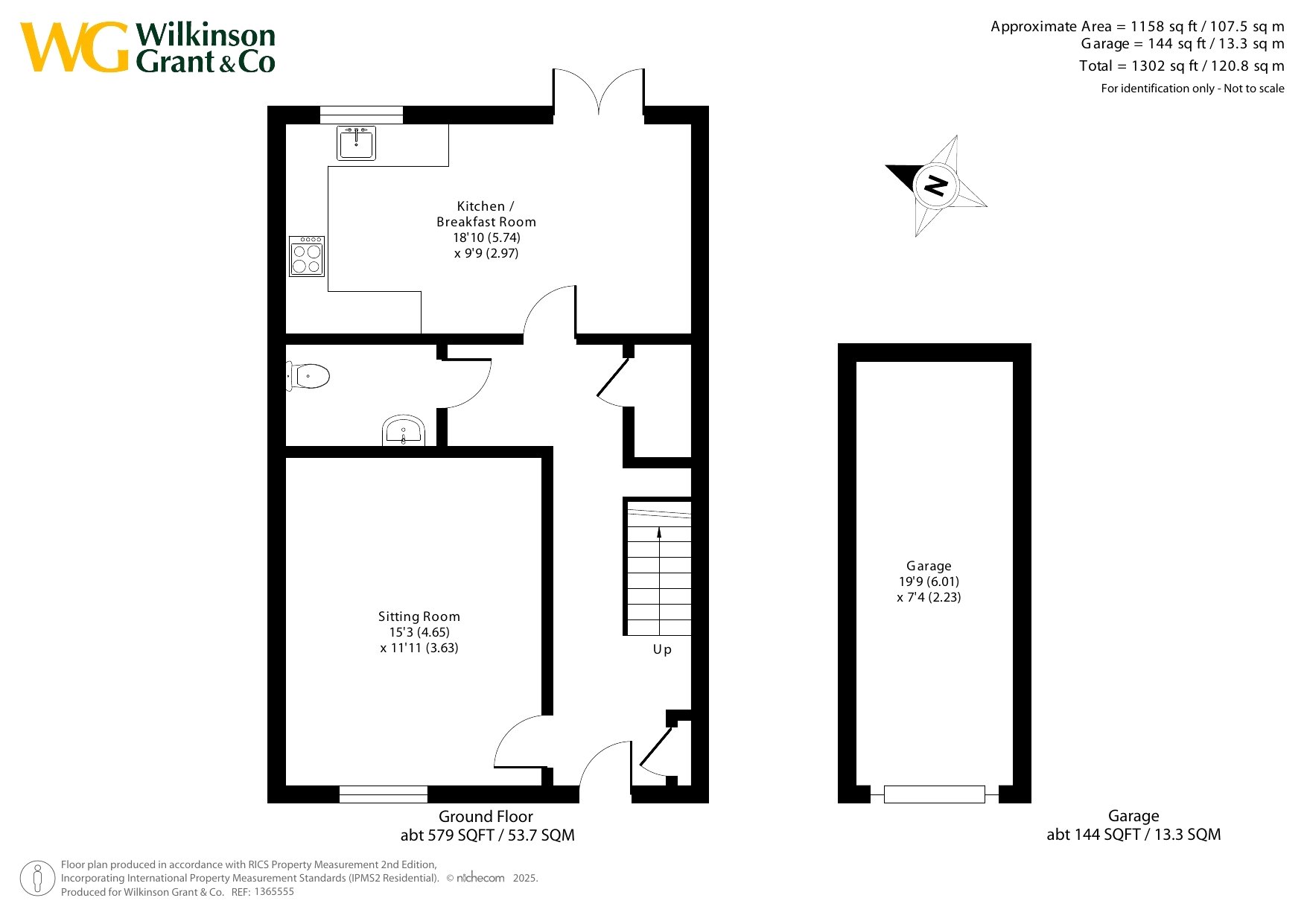
A double-glazed front door opens into a spacious and welcoming entrance hall, featuring an under-stair storage cupboard and useful recess, along with access to a stylish downstairs cloakroom.

The generous sitting room provides a comfortable and relaxing living space, while to the rear there is a superb open-plan 'Symphony' kitchen and breakfast room – a true highlight of the home.

This contemporary kitchen is fitted with an extensive range of units and work surfaces, and comes fully equipped with a four-ring gas hob, integrated oven and microwave, fridge and freezer, washing machine, and full-size dishwasher. Additional features include a “magic corner” storage solution, pull-out bin, stainless steel sink with mixer tap, extractor hood, and a cupboard housing the boiler. French doors from the kitchen provide direct access to the garden and patio area, perfect for entertaining or outdoor dining.

Upstairs, the accommodation is surprisingly spacious, offering four well-proportioned bedrooms.

The main bedroom, located at the rear and overlooking the garden, benefits from built-in mirrored wardrobes and a smart modern ensuite featuring a twin-head shower cubicle. Two of the additional bedrooms include built-in storage, and the family bathroom is fitted with a modern white suite and shower over the bath.

Outside, the property features a level driveway providing parking for at least two vehicles, together with access to the garage and a small area of garden that is planted with shrubs for ease of maintenance.

A pathway leads to the front door, with a side gate opening to the rear garden. The enclosed garden is mainly laid to lawn and enjoys a good degree of privacy, complemented by a patio area directly accessed from the kitchen’s French doors and backs onto a delightful woodland area.

SERVICES    The vendors have advised the following: Mains gas serving the central heating boiler and hot water, mains electricity, mains water (metered) and drainage. Telephone landline is not currently connected. Broadband: Potential to connect to Openreach and OFNL in the area Estimated Standard speed - 16 Mbps and Ultrafast speed – 1800 Mbps. Mobile signal: Several networks currently showing as available at the property including EE, 02, Three and Vodafone.

AGENTS NOTE:    The Vendor advises that the current 2025/26 management/service charges are £125.76 p.a. to cover the communal areas. Apsham Grange (TOPSHAM) Management Company Ltd (Co. Reg. No. 13758278) of Fisher House, 84 Fisherton Street, Salisbury, SP2 7QY.

50.693766 -3.466952

Important Information

  • This is a Freehold property.

Property Ref: top_TOP250287

Share:

Similar Properties

Topsham, Devon

3 Bedroom Semi-Detached House | Guide Price £595,000

A delightful DOUBLE-FRONTED property set in a PRIVATE and TRANQUIL LOCATION. Open plan living with accommodation over 12...

Great Woodcote Park, Exeter, Devon, EX2

4 Bedroom Detached House | Guide Price £580,000

A WELL PROPORTIONED, NEATLY PRESENTED, DETACHED house enjoying accommodation in excess of 1400 Sq.Ft to include 4 DOUBLE...

Topsham

3 Bedroom Terraced House | Guide Price £575,000

A BEAUTIFULLY PRESENTED character home with PARKING and 50 ft GARDEN in a PRESTIGIOUS RESIDENTIAL ROAD just 200 yards fr...

Topsham Road, Exeter

4 Bedroom Detached House | Guide Price £600,000

Detached home beside Exeter Golf & Country Club!Superb location between Topsham and Exeter, with a 70ft garden, no onwar...

Bapton Lane, Exmouth

4 Bedroom Detached House | Offers in excess of £600,000

A well presented DETACHED HOUSE offering versatile accommodation with GROUND FLOOR BEDROOMS. Enjoying a SOUTH-WESTERLY A...

Exmouth

3 Bedroom Detached House | Offers in excess of £600,000

A WONDERFUL OPPORTUNITY to acquire a DETACHED 1930s house with STUNNING ESTUARY VIEWS that requires RENOVATION and possi...

Wilkinson Grant & Co (Topsham)

Fore Street, Topsham, Devon, EX3 0HQ

01392 875000

How much is your home worth?

Use our short form to request a valuation of your property.

Request a Valuation

Mortgage Calculator

Amount Borrowed: £
Total Amount Repayable: £
Total Monthly Payment: £
©2025 The Guild of Property Professionals. All rights reserved. Terms and Conditions | Privacy Policy | Cookie Policy | Complaints Policy | Members Login
The Guild of Property Professionals Trading Address: 121 Park Lane, London W1K 7AG. GPEA Limited. Registered in England & Wales.  Company No: 02819824.  Registered Office Address: 2 St. Stephen's Court, St. Stephen's Road, Bournemouth, Dorset, England, BH2 6LA.  VAT Registration No: 576 8795 61
Book a Property Valuation Update Cookies Preferences