St. John, Torpoint

Guide Price
£675,000

4 Bedroom Detached House for sale in Torpoint

1 4 2
  • STUNNING VILLAGE LOCATION WITH COUNTRYSIDE VIEWS
  • DETACHED FORMER CHAPEL
  • VERY WELL PRESENTED
  • GOOD SIZE LOUNGE
  • MODERN FITTED KITCHEN/DINER
  • FOUR BEDROOMS THE MASTER HAVING AN EN-SUITE
  • MODERN SHOWER ROOM
  • CINEMA ROOM, GARDENS WITH SWIM HOT TUB, DRIVEWAY
  • VIEWING ADVISED
  • FREEHOLD PROPERTY - COUNCIL TAX BAND E

Nestled in the charming village of St. John, Cornwall, this beautifully presented detached house offers a unique opportunity to own a converted former chapel, blending character with modern living. With four bedrooms the master having an en-suite bathroom, modern family shower room this home is perfect for families or those seeking extra space. The property boasts an inviting lounge with ample space for relaxation and entertainment. Modern fitted kitchen/diner with kitchen island, downstairs cloakroom. The interior is thoughtfully designed, maintaining the original charm of the chapel while incorporating contemporary comforts. Surrounded by picturesque countryside, the location offers a tranquil retreat from the hustle and bustle of everyday life. The lovely gardens are a standout feature, complete with a swim spa/ hot tub, perfect for unwinding after a long day. Additionally, a cinema room adds a touch of luxury, making it an ideal space for movie nights with family and friends. The driveway provides off road parking ensuring convenience for residents and has an electric car charger. This delightful home is not just a property; it is a lifestyle choice, offering a serene environment while still being within reach of local amenities. If you are looking for a unique and beautifully presented home in a peaceful village setting, this property is not to be missed. EPC = To follow. Freehold Property. Council Tax Band E

Location - St John is a coastal civil parish village in south-east Cornwall surrounded by the countryside. The village is approx 14 miles south of Saltash and 1.5 miles south-west of Torpoint, offering good transport links to the ocean city of Plymouth via the Torpoint ferry. To the north, the parish is bordered by St John's Lake and to the south by the sea, making this an ideal location for anyone who enjoys outdoor activities.

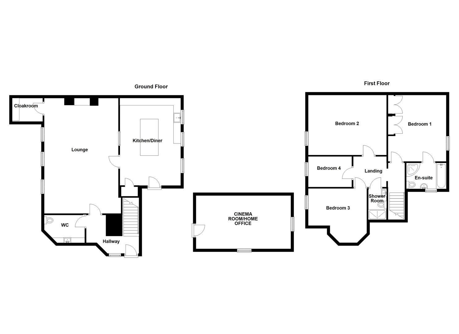
Entrance - Front door leading into the hallway.

Hallway - Stairs leading to the first floor, arch style window to the front aspect, doorway leading into the downstairs w.c., doorway through to the lounge.

Lounge - 7.70m x 5.11m (25'3 x 16'9) - Three windows to the front aspect, various power points, downlighting, doorway leading to the cloakroom, doorway leading into the kitchen/diner.

Kitchen/Diner - 6.10m x 4.24m (20'00 x 13'11) - Modern matching kitchen comprising range of wall mounted and base units with worksurfaces above, built in electric oven, built in fridge/freezer, built in dishwasher, sink with mixer tap, built in wine cooler, kitchen island with cupboards and draws beneath, built in electric hob, three windows to the rear aspect with a pleasant outlook overlooking the gardens and local countryside, down lighting, various power points, arch style window through to the lounge, understairs storage cupboard with utility plumbing, under floor heating, doorway leading to the garden.

Downstairs W.C. - Modern suite comprising low level w.c., floating vanity unit with wash hand basin, mosaic tiling, extractor fan, feature floor and ceiling lighting.

Stairs - Leading to the first floor landing, window to the rear aspect with a pleasant outlook overlooking the rear garden and surrounding countryside.

Landing - Doorways leading into the first floor living accommodation, feature sensor ceiling lighting, radiator, power point.

Bedroom 1 - 4.55m x 0.58m (14'11 x 1'11) - Window to the rear aspect with a pleasant outlook overlooking the garden and picturesque local countryside, radiator, power points, down lighting, range of built in wardrobes, doorway leading into the en-suite bathroom.

En-Suite - Modern matching suite comprising panelled bath, shower cubicle, low level w.c, vanity unit with inset wash hand basin and cupboard beneath, window to the side aspect, chrome heated towel radiator, down lighting, extractor fan.

Bedroom 2 - 4.93m x 3.53m (16'2 x 11'7) - Arch style window to the front aspect, radiator, power points, down lighting, feature wooden beam.

Bedroom 3 - 3.91m (at max point) x 3.76m (12'10 (at max point) - Arch style window to the front aspect, radiator, power points, feature wooden beam.

Bedroom 4 - 2.84m x 1.93m (9'4 x 6'4) - Arch style window to the front aspect, radiator, power points.

Shower Room - Modern matching suite comprising shower cubicle with rain fall style shower, low level w.c., vanity unit with inset wash hand basin and cupboard beneath, chrome towel radiator, extractor fan.

Cinema Room/Home Office - 6.83m x 3.48m (22'5 x 11'5) - Detached cinema room/gaming room or could be used for a home office. Windows to the side and rear aspect, various power points, down lighting, wall mounted electric heater.

Gardens - The rear garden is mainly laid to lawn and enjoys pleasant views of the picturesque local countryside, feature raised decked area providing an ideal spot for entertaining or alfresco dining, summer house, swim spa/hot tub, steps that lead down to the cinema room, gravelled pathway which leads to the gravelled driveway. Wooden gateway from the rear garden which leads to the side and front of the property which has a paved area and pathway and steps leading to the main road.

Parking - To the rear of the property there is a gravelled driveway providing off road parking, power points and electric car charging point.

Services - The property benefit from mains electric and mains water and sewerage.

The property also benefits from good mobile phone coverage and a good speed internet service.

Please check out the links below where you can find mobile phone coverage services and Internet provider speeds top the property location

https://labs.thinkbroadband.com/local/index.php

https://www.ofcom.org.uk/phones-telecoms-and-internet/advice-for-consumers/advice/ofcom-checker

Agents Note - The property is accessed at the rear via a private road and the owner of The Old Chapel is required to contribute £200.00 per annum (2026)

Property Ref: 34576637

Share:

Similar Properties

Callington Road, Saltash

4 Bedroom Detached House | Offers in region of £590,000

Located in the popular Cornish town of Saltash, this impressive detached property offers a perfect blend of comfort and...

Trematon Farm Mews, Trematon, Saltash

4 Bedroom Detached House | Guide Price £435,000

Wainwright Estate Agents are delighted to offer for sale with NO CHAIN this very well presented modern detached property...

Hillside Road, Saltash

3 Bedroom Detached Bungalow | Guide Price £375,000

Located in the charming Cornish town of Saltash is this beautifully presented detached bungalow offering a delightful bl...

Station Road, Gunnislake

4 Bedroom Detached House | Guide Price £700,000

An individual detached family residence set within generous gardens and located off a quiet country lane yet close to th...

Wainwright Estate Agents (Saltash)

61 Fore Street, Saltash, Cornwall, PL12 6AF

01752 849 689

How much is your home worth?

Use our short form to request a valuation of your property.

Request a Valuation

Mortgage Calculator

Amount Borrowed: £
Total Amount Repayable: £
Total Monthly Payment: £
©2026 The Guild of Property Professionals. All rights reserved. Terms and Conditions | Privacy Policy | Cookie Policy | Complaints Policy | Members Login
The Guild of Property Professionals Trading Address: 121 Park Lane, London W1K 7AG. GPEA Limited. Registered in England & Wales.  Company No: 02819824.  Registered Office Address: 2 St. Stephen's Court, St. Stephen's Road, Bournemouth, Dorset, England, BH2 6LA.  VAT Registration No: 576 8795 61
Book a Property Valuation Update Cookies Preferences