Cedar Court Road, Torquay, TQ1 3HH

£250,000
SSTC
This property listing is now SSTC

3 Bedroom Semi-Detached House for sale in Torquay

2 3 1
  • Garage and driveway
  • Sought after area
  • Chain free
  • Very spacious 3 bed semi

Price Guide £250,000-£260,000 A very spacious 3 bedroom traditional 1930's semi-detached property, situated in a sought after area. The property benefits from off road parking to the front and garage. Downstairs is a large lounge, spacious dining room, kitchen and WC. Upstairs are 3 bedrooms and a family bathroom. The property has lots of character and retains some original features, picture rails, high ceilings and traditional bay windows. Viewing highly recommended!

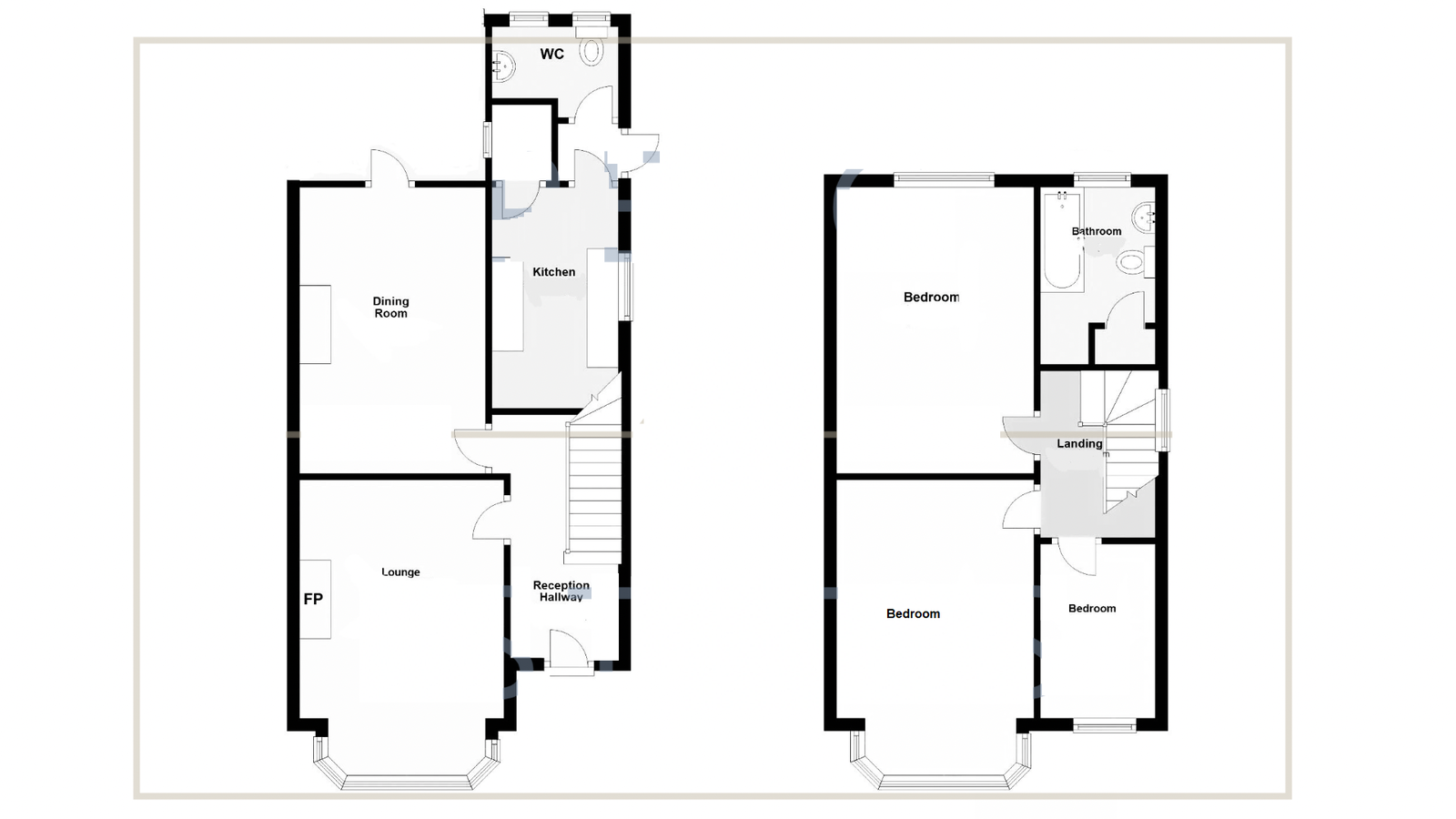
HALL


Under stairs storage housing electric metre, radiator to side, electric point.

LIVING ROOM - 4.8m x 3.76m (15'8" x 12'4")


Carpeted throughout, double glazed bay window to front, potential for open fire, electric point.

DINING ROOM - 4.06m x 3.28m (13'3" x 10'9")


Carpeted throughout, potential for open fire, double glazed door leading to rear garden, radiator to side.

KITCHEN - 3.07m x 2.31m (10'0" x 7'6")


Lino flooring, partly tiled walls, storage housing brand new Glow Worm boiler, worktops and storage cupboard, stainless steel sink, single glazed window to side. Pantry with shelving.

CLOAKROOM


Low level WC, radiator to side, tiled throughout, wall hung sink.

Bedroom One - 4.7m x 3.28m (15'5" x 10'9")


Carpeted throughout, double glazed bay window to front, radiator to front, original fireplace.

BEDROOM TWO - 4.19m x 3.23m (13'8" x 10'7")


Carpeted throughout, double glazed window to rear, radiator to rear, single glazed window to rear overlooking garden.

BEDROOM THREE - 2.21m x 2.57m (7'3" x 8'5")


Carpeted throughout, double glazed window to front, radiator to side, electric point.

BATHROOM - 2.21m x 2.51m (7'3" x 8'2")


Lino flooring, double glazed obscure window to rear, panel bath, pedestal sink, low level WC, storage cupboard, partly tiled. Radiator to side.

OUTSIDE


Level garden part patio, part lawn. Parking to front with Up and Over garage with power.
 
AGENTS NOTES These details are meant as a guide only. Any mention of planning permission, loft rooms, extensions etc, does not imply they have all the necessary consents, building control etc. Photographs, measurements, floorplans are also for guidance only and are not necessarily to scale or indicative of size or items included in the sale. Commentary regarding length of lease, maintenance charges etc is based on information supplied to us and may have changed. We recommend you make your own enquiries via your legal representative over any matters that concern you prior to agreeing to purchase.
 
Verified Material Information
Council Tax band: C
Tenure: Freehold
Property type: House
Property construction: Standard undefined construction
Energy Performance rating: D
Electricity supply: Mains electricity
Solar Panels: No
Other electricity sources: No
Water supply: Mains water supply
Sewerage: Mains
Heating: Mains gas-powered central heating is installed.
Heating features: Double glazing
Broadband: FTTP (Fibre to the Premises)
Mobile coverage: O2 - Good, Vodafone - Good, Three - Great, EE - Great
Parking: Driveway, Garage, Gated, and On Street
Building safety issues: No
Restrictions - Listed Building: No
Restrictions - Conservation Area: No
Restrictions - Tree Preservation Orders: None
Public right of way: No
Long-term area flood risk: No
Historical flooding: No
Flood defences: No
Coastal erosion risk: No
Planning permission issues: No
Accessibility and adaptations: None
Coal mining area: No
Non-coal mining area: No
PRIVATE ROAD

All information is provided without warranty. Contains HM Land Registry data © Crown copyright and database right 2021. This data is licensed under the Open Government Licence v3.0.
The information contained is intended to help you decide whether the property is suitable for you. You should verify any answers which are important to you with your property lawyer or surveyor or ask for quotes from the appropriate trade experts: builder, plumber, electrician, damp, and timber expert.

Important Information

  • This is a Freehold property.

Property Ref: 5926_1182377

Share:

Similar Properties

Kingston Close, Kingskerswell, Newton Abbot, TQ12 5EW

3 Bedroom End of Terrace House | £250,000

**GUIDE PRICE £250,000 - £265,000** If a quiet tucked away location is on your wish list then this end linked house is a...

Westhill Avenue, Torquay, TQ1 4LQ

3 Bedroom Semi-Detached House | Guide Price £250,000

GUIDE PRICE £250,000 - £260,000 Taylors are delighted to offer this beautifully presented bright and spacious 3 bedroom...

St. James Place, Torquay, TQ1 3LT

2 Bedroom Cottage | £250,000

We all dream of a cottage by the sea, well here is your chance to buy one! This charming two bedroom terrace cottage is...

Cliff Road, Livermead, Torquay

2 Bedroom Flat | £259,500

The “ English Riviera” is home to this highly sought after development of luxury apartments. Perched on a large headland...

Hawkins Avenue, Torquay, TQ2 6ER

3 Bedroom Semi-Detached House | Guide Price £260,000

Guide Price of £260,000 - £280,000 A traditional three bedroom semi detached family home located in the Chelston/Shiphay...

Padacre Road, Torquay, TQ2 8QQ

3 Bedroom Semi-Detached House | £269,950

A delightful three bed semi detached family house located in a most popular area within easy reach of good local schools...

Taylors (Torquay)

Torquay, Devon, TQ1 3DW

01803201904

How much is your home worth?

Use our short form to request a valuation of your property.

Request a Valuation

Mortgage Calculator

Amount Borrowed: £
Total Amount Repayable: £
Total Monthly Payment: £
©2025 The Guild of Property Professionals. All rights reserved. Terms and Conditions | Privacy Policy | Cookie Policy | Complaints Policy | Members Login
The Guild of Property Professionals Trading Address: 121 Park Lane, London W1K 7AG. GPEA Limited. Registered in England & Wales.  Company No: 02819824.  Registered Office Address: 2 St. Stephen's Court, St. Stephen's Road, Bournemouth, Dorset, England, BH2 6LA.  VAT Registration No: 576 8795 61
Book a Property Valuation Update Cookies Preferences