Blackawton, Totnes

Guide Price
£1,250,000
SSTC
This property listing is now SSTC

6 Bedroom Detached House for sale in Totnes

3 6 3
  • Idyllic Lifestyle Opportunity
  • Detached 4 Bedroom Barn Conversion
  • Further Separate 2 Bedroom Barn Conversion
  • Set In Approx. 5.5 Acres Of Rolling Devon Countryside
  • Charming Rural South Hams Hamlet
  • Range of Outbuildings / Garages
  • Polytunnel, Greenhouse & Paddock
  • Outdoor Swimming Pool (Not In Use)
  • Mains Electricity & Water. Private Drainage
  • Oil Fired Central Heating

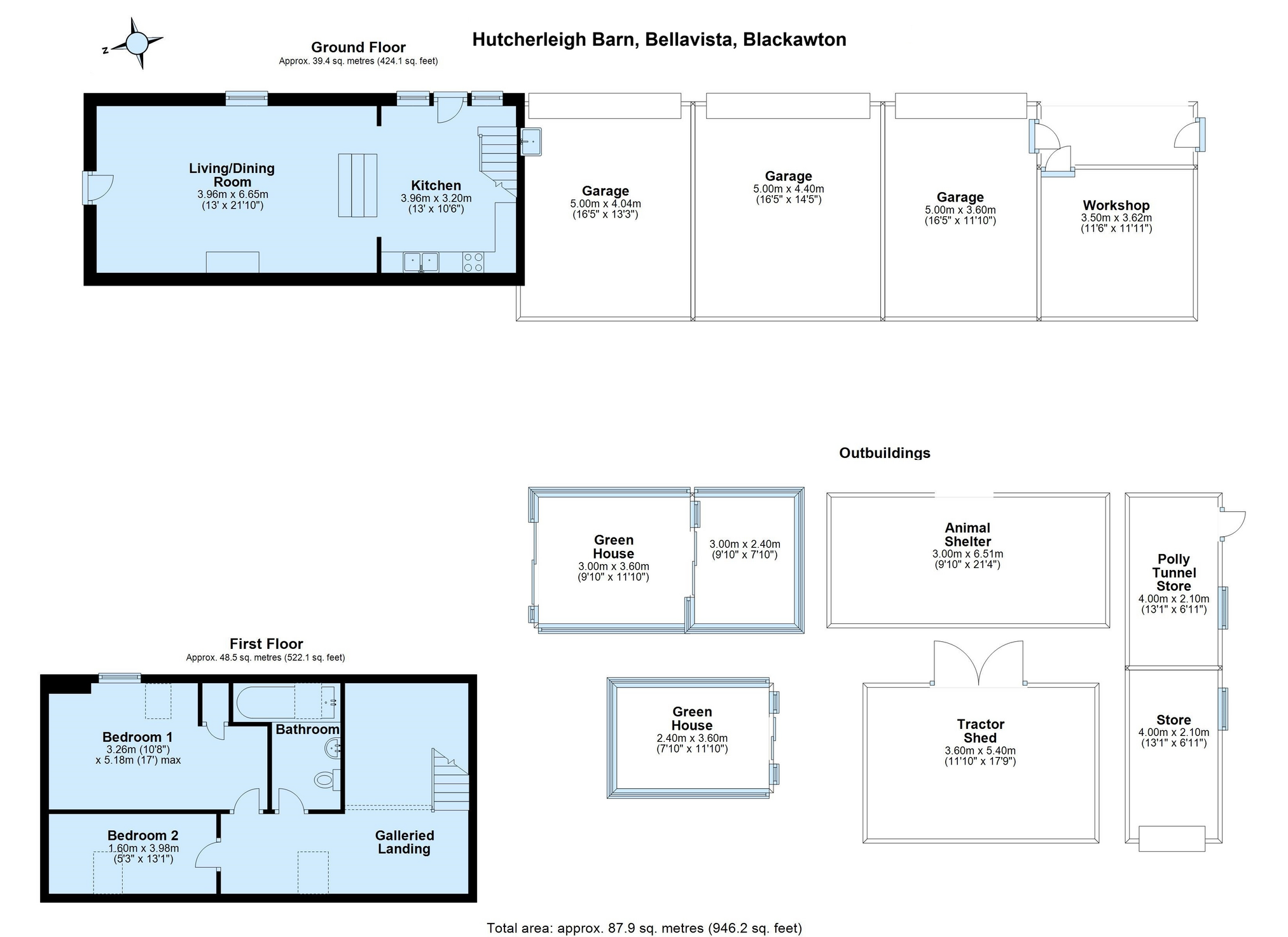
Nestled in the beautiful rural South Hams hamlet of Hutcherleigh is this lovely 4-bedroom home together with a 2-bedroom barn annex, well-kept landscaped gardens, an outdoor swimming pool (not currently used), a range of outbuildings, a polytunnel, a greenhouse, and a paddock. Overall, the property sits within approximately five and a half acres and presents an idyllic lifestyle opportunity.

Hutcherleigh Barn is a converted stone-built barn set in a quiet rural location in the heart of the South Hams yet within easy reach of amenities and the surrounding towns of Kingsbridge, Dartmouth, and Totnes. The house has an abundance of period features with beamed ceilings, a sitting room with log burner, a good-sized kitchen/breakfast room, and a large master bedroom suite with a wonderful paved terrace, and there is ample parking.

On the ground floor is the kitchen/breakfast room with utility room, cloakroom, and boot room off, the dining room, sitting room with log wood burner, and a study. On the first floor are three bedrooms, a family shower room, and the master bedroom suite with double doors leading out onto a lovely sun terrace with gorgeous views across the garden and surrounding countryside.

Bellavista is a two-bedroom stone-built conversion that has just been renovated throughout with a well-fitted kitchen, and a good-sized sitting room with electric wood burner on the ground floor and with two bedrooms and a family bathroom on the first floor.

Outside, the landscaped gardens and grounds have been well cared for and include a large lawn to the house, a good-sized polytunnel, a vegetable patch, a greenhouse, and a paddock, in all approximately five and a half acres. There is an outdoor swimming pool (not currently used) with an associated pool house, a useful workshop, and two double garages.

The property offers the ideal opportunity for someone seeking 'the good life' or wishing to pursue their dream of a smallholding and being self-sufficient.

This wonderful home is on the fringes of the village of Blackawton, boasting a strong community with a highly regarded primary school, church, and a public house. The market town of Kingsbridge, approximately 8 miles to the west, serves Salcombe and Thurlestone and has a good range of shopping facilities and a highly rated secondary school. Totnes, another wonderful market town, has mainline railway links to London (approximately 3 hours) and lies around 7 miles to the north. Dartmouth offers a good range of marine facilities and lies at the mouth of the spectacular River Dart, famous as a sailing centre and home to Britannia Royal Naval College, and is 7 miles south.

Tenure
Freehold

Services
Mains electricity and water. Private drainage. Oil fired central heating

Viewing
Strictly by appointment with the Sole Agents, Marchand Petit, Dartmouth. Telephone: 01803 839190

Fixtures & Fittings
All items in the written text of these sales particulars are included in the sale. Other items are expressly excluded, regardless of inclusion in any photograph. Purchasers must satisfy themselves that any equipment included in the sale of the property is in satisfactory working order

Important Information

  • This is a Freehold property.

Property Ref: 2728_TSJ825361

Share:

Similar Properties

Bowden, Dartmouth

5 Bedroom Detached House | Guide Price £1,250,000

A beautiful 5 bedroom detached country home in an outstandingly picturesque setting on the outskirts of the popular Sout...

Beacon Road, Kingswear, Dartmouth, Devon

3 Bedroom Maisonette | Guide Price £1,175,000

An elegant maisonette in a beautiful period property bursting with lovely features and the most outstanding widespread v...

Bugford Lane, Hillfield, Dartmouth

5 Bedroom Not Specified | Guide Price £1,150,000

A substantial home set in approximately 2 acres of landscaped gardens and grounds on the outskirts of Dartmouth with a p...

South Town, Dartmouth

4 Bedroom Not Specified | Guide Price £1,395,000

A beautifully presented elegant Grade ll Listed period house with magnificent views of the River Dart, in a wonderful po...

Lower Contour Road, Kingswear

4 Bedroom Detached House | Guide Price £1,450,000

A wonderful contemporary and beautifully presented detached home which enjoys absolutely gorgeous views of Kingswear Cre...

Above Town, Dartmouth

5 Bedroom Detached House | Guide Price £1,500,000

An elegant and imposing detached period home situated in a wonderful elevated position within a short walk of the town c...

Marchand Petit (Dartmouth)

Hauley Road, Dartmouth, Devon, TQ6 9AA

01803 839 190

How much is your home worth?

Use our short form to request a valuation of your property.

Request a Valuation

Mortgage Calculator

Amount Borrowed: £
Total Amount Repayable: £
Total Monthly Payment: £
©2025 The Guild of Property Professionals. All rights reserved. Terms and Conditions | Privacy Policy | Cookie Policy | Complaints Policy | Members Login
The Guild of Property Professionals Trading Address: 121 Park Lane, London W1K 7AG. GPEA Limited. Registered in England & Wales.  Company No: 02819824.  Registered Office Address: 2 St. Stephen's Court, St. Stephen's Road, Bournemouth, Dorset, England, BH2 6LA.  VAT Registration No: 576 8795 61
Book a Property Valuation Update Cookies Preferences