Cornworthy, Totnes

Offers in excess of
£1,750,000

6 Bedroom Detached House for sale in Totnes

3 6 4
  • Wonderful Substantial Country Home
  • Beautifully Refurbished And Presented Throughout
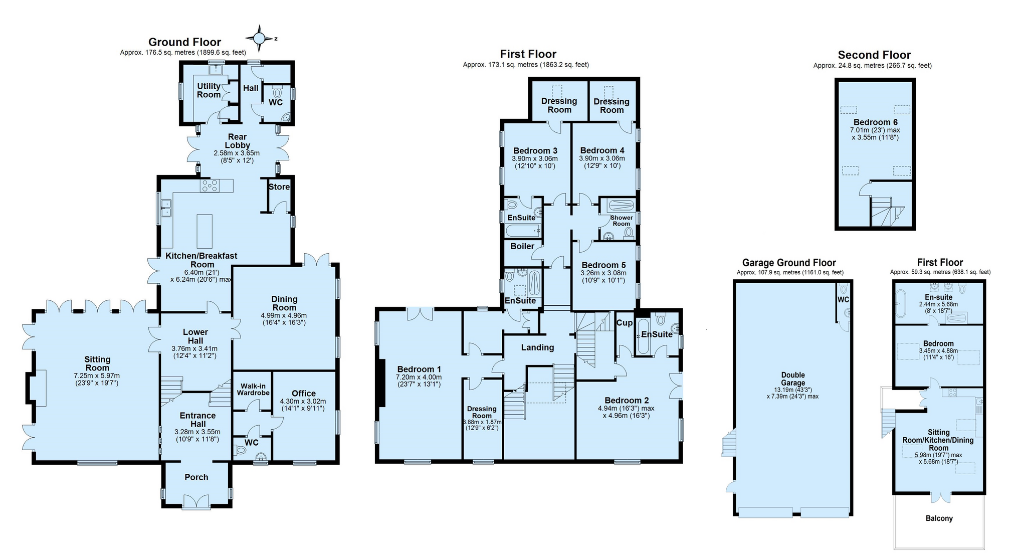
  • Separate One Bedroom Coach House
  • 8 Car Garage And Driveway Parking
  • Stone Outbuildings (with further potential)
  • 6 Bedrooms And 4 Bathrooms
  • Spacious Light Filled Accommodation
  • Idyllic Rural Setting Yet Close To Three Major Towns
  • Substantial Well Established Private Gardens
  • Stunning Views Of The Surrounding Countryside

This elegant family home enjoys gorgeous views of the surrounding countryside towards Dartmoor in the distance, and has been stylishly improved and presented by the current owners who have created a home full of warmth and ease of family living. The house nestles beautifully in its plot in this peaceful wooded rural idyll and has spacious light filled accommodation, a wonderful mature garden with a hydrotherapy pool, a large 8 car garage and plenty of additional driveway parking.

The property offers versatile accommodation with potential and has the added attraction of a self contained contemporary 1 bedroom apartment which generates a constant revenue throughout the year.

Higher Gitcombe was built approximately 20 years ago and the high quality nature of the build continues to shine through with attention to detail key. The house features high specification thermal protection, electronics and connectivity and oil fired underfloor heating in all rooms.

The stunning entrance hall has a double height vaulted ceiling with fixed panel glazing allowing light to flood in. The sitting room is a stunning spacious room with feature fireplace with marble surround and five sets of French doors leading directly out to the garden. There is a stunning brand new bespoke kitchen recently fitted which really is the heart of this home, with a superb central island unit, a walk in larder, a utility room and a cloakroom. On the first floor the main bedroom suite has his and hers walk in wardrobes and an en suite shower room and the main guest bedroom has a walk in wardrobe and en suite bathroom. There are four further bedrooms, one of which has an en suite bathroom and there is a family shower room.

The Coach House is a self contained apartment, stylishly presented with spacious light filled rooms. The main living space is open plan comprising a kitchen/dining/sitting room with double doors out on to a decked balcony with hot tub and stunning views across to Dartmoor.

A particularly wonderful feature of Higher Gitcombe are the secluded gardens and grounds which surround it, which have been designed to embrace the surrounding countryside and wildlife. Immediately to the front of the house is a large paved sun terrace with veranda, a really gorgeous extension to the house which has been recently enhanced with the addition of a hydro pool. The remainder of the garden is mainly laid to lawn with and abundance of mature planting and well established trees.

Cornworthy is a small village in an Area of Outstanding Natural Beauty, surrounded by farmland and lying close to the River Dart and Bow Creek, a tributary of the Dart. The village has a strong local community with a popular pub, village hall and a 15th century church. Everyday shopping is available in nearby Dartmouth or Totnes, which has a mainline rail link to London (approx. 3 hours).

Tenure
Freehold

Services
Mains Electricity & Water. Private Drainage. Oil Fired Under Floor Heating

Viewings
Strictly by appointment with the Sole Agents, Marchand Petit, Dartmouth. Telephone: 01803 839190

Fixtures & Fittings
All items in the written text of these sales particulars are included in the sale. Other items are expressly excluded, regardless of inclusion in any photograph. Purchasers must satisfy themselves that any equipment included in the sale of the property is in satisfactory working order.

Important Information

  • This is a Freehold property.
  • This Council Tax band for this property is: G

Property Ref: TSJ725383

Share:

Similar Properties

Riverside Road, Dittisham

4 Bedroom Detached House | Guide Price £1,750,000

A charming 1930's detached home set in a south facing position in the heart of Dittisham and commanding outstanding view...

Ridley Hill, Kingswear

4 Bedroom Detached House | Guide Price £1,750,000

A most impressive detached home in a superb elevated position, commanding magnificent widespread river and countryside v...

Redoubt Hill, Kingswear

5 Bedroom Not Specified | Guide Price £1,700,000

An elegant south west facing period home offering breathtaking panoramic views across the River Dart towards Dartmouth,...

Church Road, Dartmouth

13 Bedroom Detached House | Guide Price £1,800,000

Set in a peaceful and elevated position within walking distance of the town centre, this exceptional detached property b...

Jawbones Hill, Dartmouth

4 Bedroom Detached House | Guide Price £2,000,000

A most impressive detached home in a superb elevated position, commanding magnificent widespread river and countryside v...

Rectory Lane, Stoke Fleming

5 Bedroom Detached House | Guide Price £2,250,000

A stunning 5 bedroom Grade II Listed former rectory which has been lovingly and meticulously refurbished to an extremely...

Marchand Petit (Dartmouth)

Hauley Road, Dartmouth, Devon, TQ6 9AA

01803 839 190

How much is your home worth?

Use our short form to request a valuation of your property.

Request a Valuation

Mortgage Calculator

Amount Borrowed: £
Total Amount Repayable: £
Total Monthly Payment: £
©2026 The Guild of Property Professionals. All rights reserved. Terms and Conditions | Privacy Policy | Cookie Policy | Complaints Policy | Members Login
The Guild of Property Professionals Trading Address: 121 Park Lane, London W1K 7AG. GPEA Limited. Registered in England & Wales.  Company No: 02819824.  Registered Office Address: 2 St. Stephen's Court, St. Stephen's Road, Bournemouth, Dorset, England, BH2 6LA.  VAT Registration No: 576 8795 61
Book a Property Valuation Update Cookies Preferences