St Pauls Road, Tottenham, London, N17

Guide Price
£540,000
Under Offer
This property listing is now Under Offer

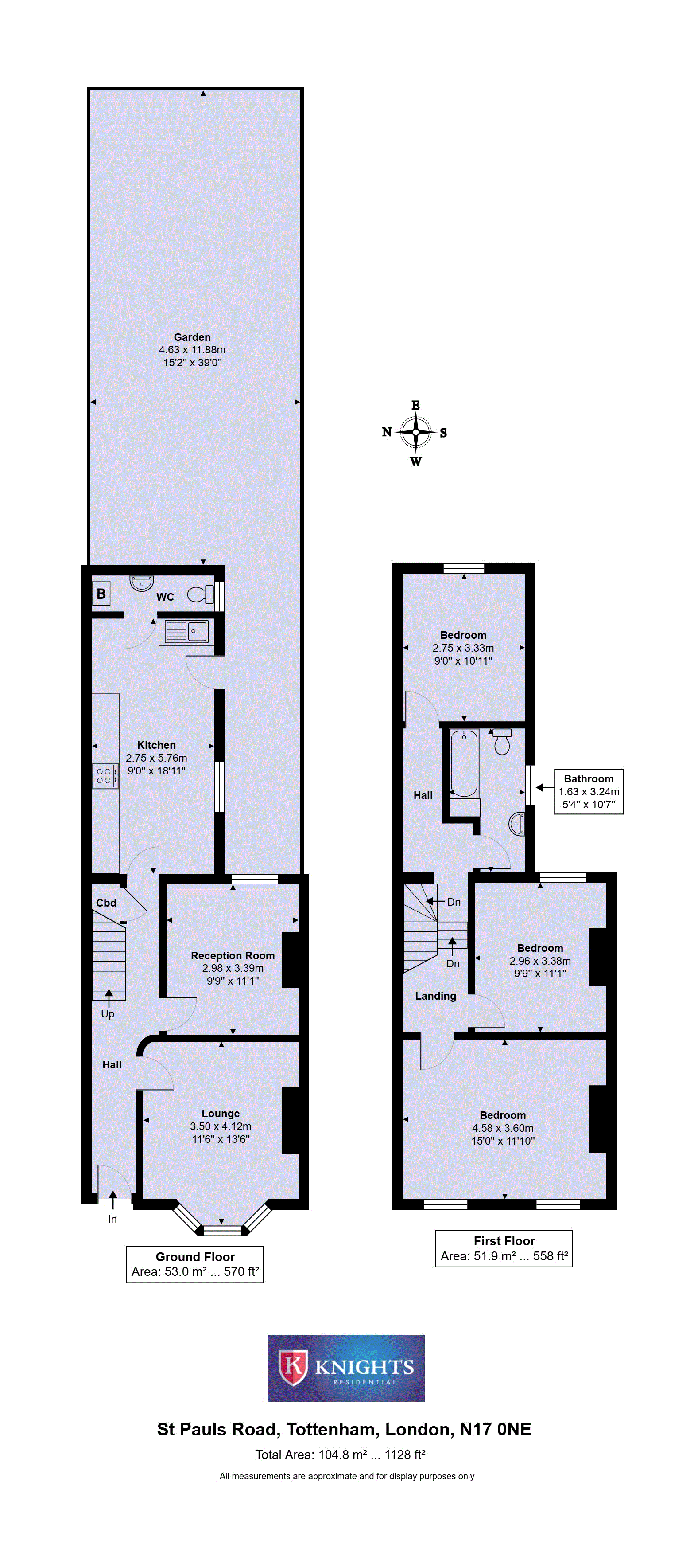
3 Bedroom Terraced House for sale in Tottenham

2 3 2
  • Refurbished Mid Terraced Freehold House
  • 3 double Bedroom and 2 Reception Rooms
  • Gas Central heating(untested)
  • Fully double Glazed
  • First Floor Bathroom
  • Additional Ground Floor W.C
  • Original Fireplaces
  • Viewings Highly recommended
  • Chain Free

Refurbished large three-bedroom terraced home in one of Tottenham’s most popular pockets.
 
The ground floor offers two generous reception rooms, a large kitchen-diner, and a downstairs W/C. Large secluded garden with potential for a rear and side extension (STPP).

Upstairs, you'll find three well-proportioned double bedrooms and a family bathroom, providing ample space for growing families or those in need of extra room to work from home. There is also potential to extend into the loft space (STPP).
 
Tottenham continues to grow in popularity, particularly among young professionals drawn to its distinctive period housing, abundant green spaces and buzzing local scene. The nearby High Road is just a short walk away and has welcomed an exciting mix of independent pubs, cafés and restaurants — part of the area's broader creative and cultural revival.
 
Surrounding green spaces include the beautiful Tottenham Marshes, River Lea and the Walthamstow Wetlands nature reserve. Bruce Castle Park and Museum — home to the area’s oldest oak tree — is also within easy reach.
 
Transport links are excellent, with Northumberland Park and Tottenham Hale (National Rail and Underground with Stansted Express) nearby. Frequent bus routes from the High Road provide quick connections to Seven Sisters, Hackney, Islington and beyond.

Important Information

  • This is a Freehold property.

Property Ref: THM0014AF

Share:

Similar Properties

Manor Road, Tottenham , London, N17

3 Bedroom Terraced House | Guide Price £540,000

Knights are delighted to offer this well presented bright and airy 3 -bedroom Victorian terraced home. Located within a...

Seymour Avenue, London, N17

3 Bedroom End of Terrace House | £540,000

Well presented Victorian End of Terrace 3 Bedroom home located in the desirable Tottenham Hale area. This tasteful home...

Bromley road, London, N17

3 Bedroom Terraced House | £535,000

Knights Residential are delighted to offer this 3 Bedroom Victorian Terraced home for sale located in a desirable locati...

Hurst Avenue, london, E4

3 Bedroom House | £544,995

Stunning large 3 bedroom End of Terraced family house situated in a popular location being easy reach of Chingford Mount...

Kitchener Road, London, N17

3 Bedroom House | £545,000

3 bedroom 1930's style end of terrace house. This property is based in a desirable location in Tottenham & benefits from...

Sperling Road, Tottenham, London, N17

3 Bedroom House | Guide Price £545,000

Sole Agents. Knights are delighted to offer for sale this Victorian Freehold House located moments away from Bruce Grove...

Knights Residential (Tottenham)

Tottenham, London, N17 9TA

0208 885 6800

How much is your home worth?

Use our short form to request a valuation of your property.

Request a Valuation

Mortgage Calculator

Amount Borrowed: £
Total Amount Repayable: £
Total Monthly Payment: £
©2026 The Guild of Property Professionals. All rights reserved. Terms and Conditions | Privacy Policy | Cookie Policy | Complaints Policy | Members Login
The Guild of Property Professionals Trading Address: 121 Park Lane, London W1K 7AG. GPEA Limited. Registered in England & Wales.  Company No: 02819824.  Registered Office Address: 2 St. Stephen's Court, St. Stephen's Road, Bournemouth, Dorset, England, BH2 6LA.  VAT Registration No: 576 8795 61
Book a Property Valuation Update Cookies Preferences