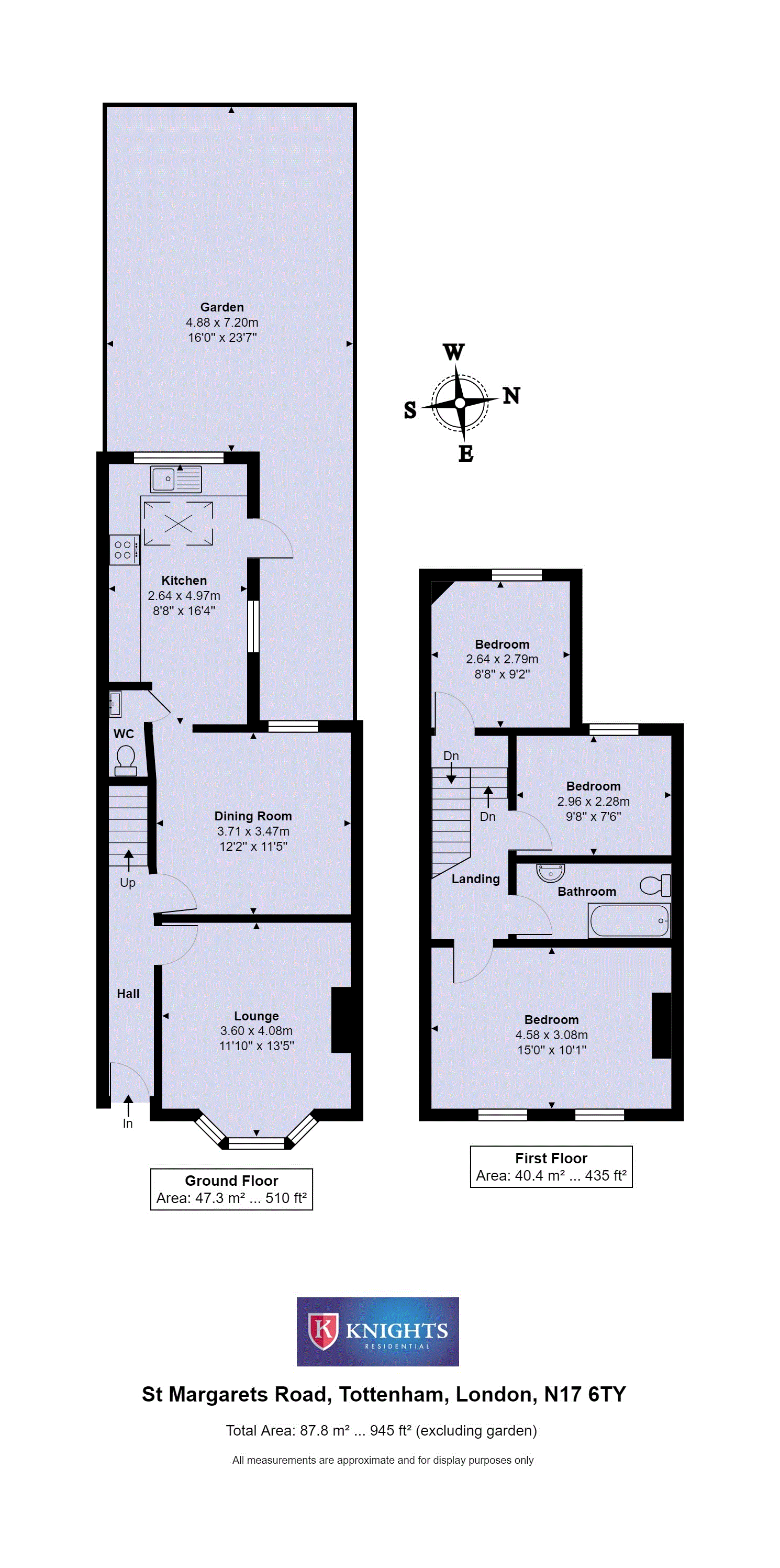
St Margaret's Road, Tottenham, London, n17

£650,000
Under Offer
This property listing is now Under Offer

3 Bedroom House for sale in Tottenham

2 3 2

Knights Residential are delighted to offer for sale this tasteful 3 Bedroom Victorian Terraced Freehold House Located in a desirable location.

This spacious home benefits from 2 Reception rooms, extended kitchen diner, down stairs W/C, secluded garden, fully double glazed, gas central heating(untested), 3 good size bedrooms, up stairs bathroom & potential for loft conversion (STPP).

Location:
You will be able to enjoy the many new independent coffee shops, pubs and restaurants opening up all around the neighbourhood, while you're researching the local area, you should check out The High Cross pub, Craving Coffee on Markfield Road within the N15 Arts District, Blighty India Café on the High Road as well as True Craft on West Green Road and The Palm just around the corner at 197 Philip Lane, we should not forget to mention San Marco, the family run Italian restaurant up the road beside Bruce Grove BR station – it’s been serving the locals the finest quality homemade cuisine for over 50 years.
 
 The local area is a bustling transport hub with links at Seven Sisters ( 3 stops from Kings Cross), South Tottenham BR ,Tottenham Hale (Stansted Express Link) and Bruce Grove BR (20 mins to Liverpool Street St) all within easy reach.
 Buses from the High Road will take you into Islington, Hackney, Stoke Newington and Central London.

Please contact Knights Residential to arrange your viewing

Important Information

  • This is a Freehold property.

Property Ref: DWR0011D6

Share:

Similar Properties

Vincent Road, London, N15

3 Bedroom End of Terrace House | £650,000

Knights residential are delighted to offer this larger than average 3 bedroom End of terrace Victorian home located with...

Higham Road, London, N17

3 Bedroom Semi-Detached House | Guide Price £650,000

Knights Residential are delighted to offer this newly refurbished 3 Bedroom Semi detached 1930's style home located in a...

Daneland, London, EN4

3 Bedroom End of Terrace House | Guide Price £650,000

Knights Residential are delighted to offer this 3 Bedroom 1930's style End of Terrace family home located within close p...

Birkbeck Road , Bruce Grove, London, N17

3 Bedroom Terraced House | £660,000

CHAIN FREE. Ready to move into. Epc rated C. Knights are delighted to offer this stunning 1086 sq.ft Three bedroom Victo...

Dongola Road, Tottenham, London, N17

4 Bedroom Terraced House | Offers in excess of £660,000

Knights Residential are delighted to offer for sale this tasteful CHAIN FREE 4 Bedroom double bay Victorian Terraced Fre...

Argyle Road, London, N17

3 Bedroom House | Guide Price £660,000

Stunning 3 Bedroom Victorian Terraced home for sale, with many original period features throughout & located in a desira...

Knights Residential (Tottenham)

Tottenham, London, N17 9TA

0208 885 6800

How much is your home worth?

Use our short form to request a valuation of your property.

Request a Valuation

Mortgage Calculator

Amount Borrowed: £
Total Amount Repayable: £
Total Monthly Payment: £
©2026 The Guild of Property Professionals. All rights reserved. Terms and Conditions | Privacy Policy | Cookie Policy | Complaints Policy | Members Login
The Guild of Property Professionals Trading Address: 121 Park Lane, London W1K 7AG. GPEA Limited. Registered in England & Wales.  Company No: 02819824.  Registered Office Address: 2 St. Stephen's Court, St. Stephen's Road, Bournemouth, Dorset, England, BH2 6LA.  VAT Registration No: 576 8795 61
Book a Property Valuation Update Cookies Preferences