Tenterden Road, Tottenham, London, N17

Guide Price
£500,000
Under Offer
This property listing is now Under Offer

6 Bedroom Terraced House for sale in Tottenham

1 6 2
  • Investment Opportunity
  • HMO READY potential 6 Bedroom House
  • Set up over 3 Floors
  • 128 SQM
  • Moments away from White Hart Lane Station
  • High Road Amenities and Supermarkets within walking distance
  • Off Street Parking
  • Garden with Rear entrance
  • Chain Free

Vacant and Chain Free. Located within Walking Distance from White Hart Lane Station and High Road Amenities, Knights are delighted to offer for sale this 128 sqm Town house set up as an HMO potential with 6 Rooms. The property benefits from its own Front Garden with off street parking as well as back garden with rear access. In our opinion this property will make a great investment so best advised to enquire early and arrange your viewing.

HMO Potential. Current vendor has HMO Licence (non transferable)

Freehold House with Off Street Parking.

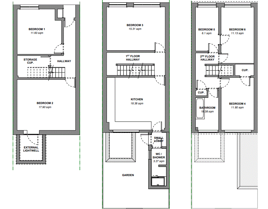
Ground Floor.
Bedroom One.
Bedroom Two,
Store Room.

Second Floor
Bedroom Three.
Kitchen Diner Living Room.
Wet room with Wc.
Garden

Third Floor.
Bedroom Four.
Bedroom Five.
Bedroom Six.
Three Piece Bathroom Suite.

EPC Rating C.
HMO potential. Current vendor has HMO Licence (non transferable)

Please call Knights to Book your Viewing.

Important Information

  • This is a Freehold property.

Property Ref: THM_DWR001228

Share:

Similar Properties

Erskine Crescent, Tottenham Hale , London, N17

3 Bedroom Townhouse | Guide Price £500,000

Knights Residential are delighted to offer to the market this Doer Upper waiting for the right DIY Enthusiast to purchas...

Rosebery Avenue , London, N17

3 Bedroom End of Terrace House | Offers in excess of £500,000

Knights residential are delighted to offer this three bedroom Victorian end of terraced home, situated in a desirable lo...

Wycombe road, London, N17

2 Bedroom Terraced House | £500,000

Knights are delighted to offer for sale this Bright and Airy Freehold mid terraced 2 bedroom House located in the Totten...

Shelbourne Road , London, N17

3 Bedroom End of Terrace House | £509,995

Knights Residential are delighted to offer this 3 Bedroom End of Terraced Home offered on a chain free basis. This prope...

Coniston road , London, N17

3 Bedroom House | £510,000

3 Bedroom 1930's style home located on a quite road within a walking distance to Tottenham Football Ground, White Hart L...

Crescent road, London, n15

3 Bedroom Apartment | Guide Price £510,000

Knights residential are delighted to offer this tasteful 3 bedroom first floor Victorian conversion located within a wal...

Knights Residential (Tottenham)

Tottenham, London, N17 9TA

0208 885 6800

How much is your home worth?

Use our short form to request a valuation of your property.

Request a Valuation

Mortgage Calculator

Amount Borrowed: £
Total Amount Repayable: £
Total Monthly Payment: £
©2025 The Guild of Property Professionals. All rights reserved. Terms and Conditions | Privacy Policy | Cookie Policy | Complaints Policy | Members Login
The Guild of Property Professionals Trading Address: 121 Park Lane, London W1K 7AG. GPEA Limited. Registered in England & Wales.  Company No: 02819824.  Registered Office Address: 2 St. Stephen's Court, St. Stephen's Road, Bournemouth, Dorset, England, BH2 6LA.  VAT Registration No: 576 8795 61
Book a Property Valuation Update Cookies Preferences