Plot for sale, 35 Muir Road, Townhill, KY12 0EG

Guide Price
£150,000

4 Bedroom Land for sale in Townhill

4
  • Garage
  • Garden
  • No Onward Chain
  • Off-street parking

ABBEY FORTH PRESENTS TO MARKET THIS WONDERFUL OPPORTUNITY TO PURCHASE A GENEROUSLY SIZED SEMI-RURAL PLOT TO THE SOUTH-SIDE OF TOWNHILL VILLAGE.

The plot situated at no.35 boasts over 1300 sqm of land with views southwards and the previous dwelling has been demolished and cleared.

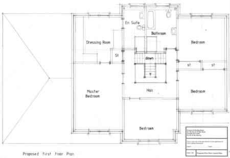
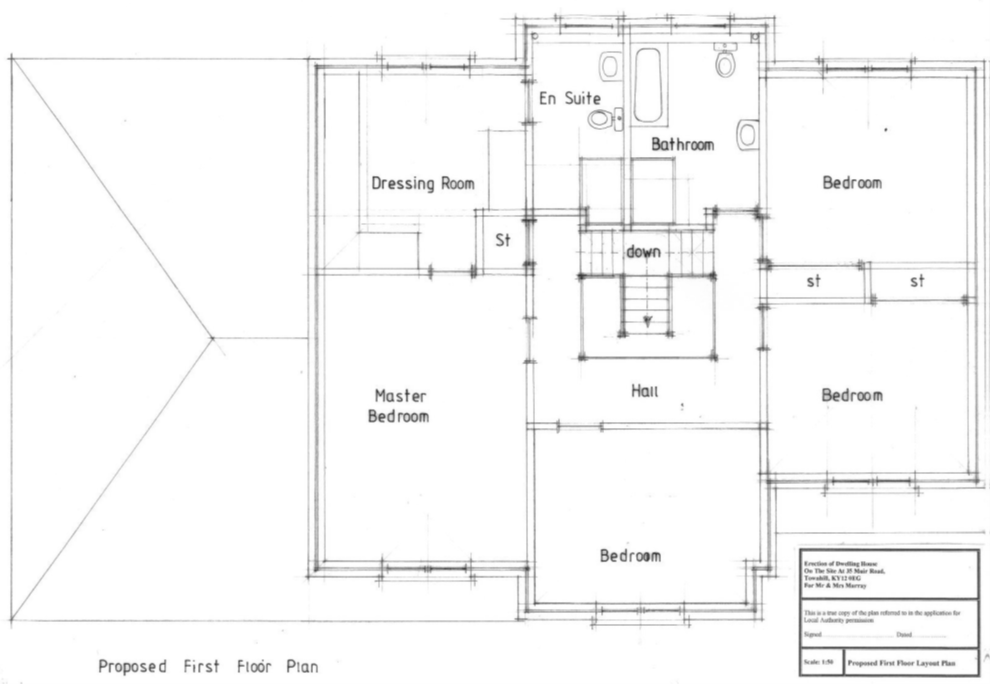
With lapsed planning, which has been approved twice before, the previously successful application gives consent for the development of a 2 storey, 4 bedroom Dwelling House at 35 Muir Road Townhill.

The total site, measuring approximately 1,341m2 offers the potential to be split into 2 separate plots with the larger plot of 845m2 - SUBJECT TO FURTHER INVESTIGATION WITH FIFE PLANNING.

The site previously housed a bungalow, which was demolished in preparation for the new dwelling house. The vast site has been stripped and cleared with all utilities and services capped.

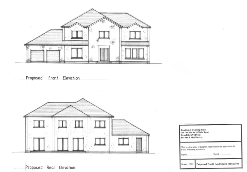
The house was designed to best take advantage of the opportunities provided by the site. It has an appropriate frontage to Muir Road with adequate parking and garden grounds, with a modern feel to the elevation treatment.

The rear of the project has views to Dunfermline and will benefit from solar gains.

The materials proposed on previous successful application are as follows;
Walls - Reclaimed Scottish Sandstone. Smooth White Render. Cedar cladding.
Roof - Scotch Slate, selected to be as close to the local colour as possible.
Windows & Doors -
Roof - Scotch Slate, selected to be as close to the local colour as possible.
Windows & Doors - Composite aluminium/timber.

Referring to previous application - The house will be constructed using a highly thermally efficient and draught free SIPS wall and roof system. This together with generous levels of insulation in the floor slab will ensure that the house comfortably exceeds current 'U' values. In addition to this, the house will incorporate the following technologies;
* Ground source heat pump.
* Solar photovoltaic panels.
* Wind Turbine
* Solar hot water panels.
* Triple glazing.
* Grey water recycling.

KEY INFORMATION
PLOT FOR SALE - New Build Detached Villa
4 Bedrooms, 2 Reception Rooms, 2 Bathroom. Flexible accommodation.
With previously approved planning - Ref. 17/00766/FULL.
Large outdoor space with views.

LOCATION
The property is located on a quiet street to the south side of Townhill Village and is within walking distance of Townhill Loch & Townhill Public Park. Local amenities include a well-renowned primary school, a pub, shops, caf?, and general store - all within easy reach. There are good connections to Dunfermline city centre and Queen Margaret train station with its regular connections to and from Edinburgh. Dunfermline City-Centre is a 5-10-minute drive from the property and is an ideal commuter base for ease of travelling to north and south of the Forth Bridges by road or rail. The area is hugely popular with families given the broad range of amenities that Dunfermline offers. Edinburgh is easily accessible via the M90 motorway which is less than 10 minutes' drive from the property and the four local railway stations/halts 5-15 minutes' drive. Dunfermline is a highly desirable location given its proximity to Edinburgh and Edinburgh Airport and with easy access to Scotland's motorway network (M90/M8) and for commuters Edinburgh and Gyle Business Centre is easily accessible via Fife Circle train service. The Kingsgate shopping centre offers a range of shops, high street brands including an M&S and leads out to Dunfermline High Street with a further choice of shopping, restaurants and cafes leading down to Bridge Street and beyond. For entertainment, there is Carnegie Leisure Centre as well as Carnegie Hall and Alhambra Theatres. In addition, there is Pittencrieff Park (The Glen) and the Public Park which leads to Dunfermline City train station. Moreover, further entertainment options including cinema complex is situated to the east of Dunfermline at Fife Leisure Park. Dunfermline offers four high schools and a wide selection of primary schooling. There is also Carnegie College Campus to the east of Dunfermline.

VIEWING
By Appointment, contact Abbey Forth Property - Sales Team.

Tenure: Freehold
Parking options: Driveway, Garage
Garden details: Private Garden

Important Information

  • This is a Freehold property.

Property Ref: RS0716

Share:

Similar Properties

41 Woodside Road, Glenrothes

3 Bedroom Semi-Detached House | Offers Over £149,950

IMMACULATE, SPACIOUS 3 BED SEMI-DETACHED VILLA.Hall, Lounge, Kitchen, Rear Porch. 3 Double Bedrooms, Shower. Front & Rea...

187 Keltyhill Road, Kelty

3 Bedroom End of Terrace House | Offers Over £144,950

IMMACULATELY PRESENTED 3 BED END-TERRACED VILLA.Hall, Lounge, Kitchen, Shower room, 3 Double Bedrooms, Attic Rm, Storage...

17 Guildhall Street, Dunfermline

2 Bedroom Flat | Fixed Price £139,950

BEAUTIFULLY REFURBISHED 2 BEDROOM TOP FLOOR CITY APARTMENT WITH CHIC MODERN KITCHEN AND BATHROOM.MOVE-IN READY, comprisi...

Flat 2, Craig Flower House, Craigflower Court, Torryburn, Fife KY12 8AY

2 Bedroom Flat | Offers Over £164,950

SPACIOUS GROUND FLOOR APARTMENT SET WITHIN HISTORIC LISTED BUILDING. Set in private mature grounds with parking and priv...

20 Grange Park, Dunfermline

2 Bedroom Terraced House | Offers Over £169,000

IMMACULATE 2 BED TERRACED VILLA. READY TO MOVE INTO.Entrance Hall, Lounge, Kitchen/diner, 2 Double Bedrooms, Shower room...

52 Park Road, Rosyth, Dunfermline

3 Bedroom Semi-Detached House | Offers Over £224,950

IMPRESSIVE 3 BEDROOM SEMI-DETACHED VILLA IN LOVELY MATURE GROUNDS. IDEAL FOR FAMILIES.Located in a sought-after area and...

Abbey Forth Property Management Limited (Dunfermline)

5 Castle Court, Carnegie Campus, Dunfermline, Fife, KY11 8PB

01383 737 748

How much is your home worth?

Use our short form to request a valuation of your property.

Request a Valuation

Mortgage Calculator

Amount Borrowed: £
Total Amount Repayable: £
Total Monthly Payment: £
©2026 The Guild of Property Professionals. All rights reserved. Terms and Conditions | Privacy Policy | Cookie Policy | Complaints Policy | Members Login
The Guild of Property Professionals Trading Address: 121 Park Lane, London W1K 7AG. GPEA Limited. Registered in England & Wales.  Company No: 02819824.  Registered Office Address: 2 St. Stephen's Court, St. Stephen's Road, Bournemouth, Dorset, England, BH2 6LA.  VAT Registration No: 576 8795 61
Book a Property Valuation Update Cookies Preferences