Maes-Yr-Onen, Nelson, CF46

Guide Price
£140,000

3 Bedroom End of Terrace House for sale in Treharris

1 3 2

GUIDE PRICE: £140,000 - £160,000

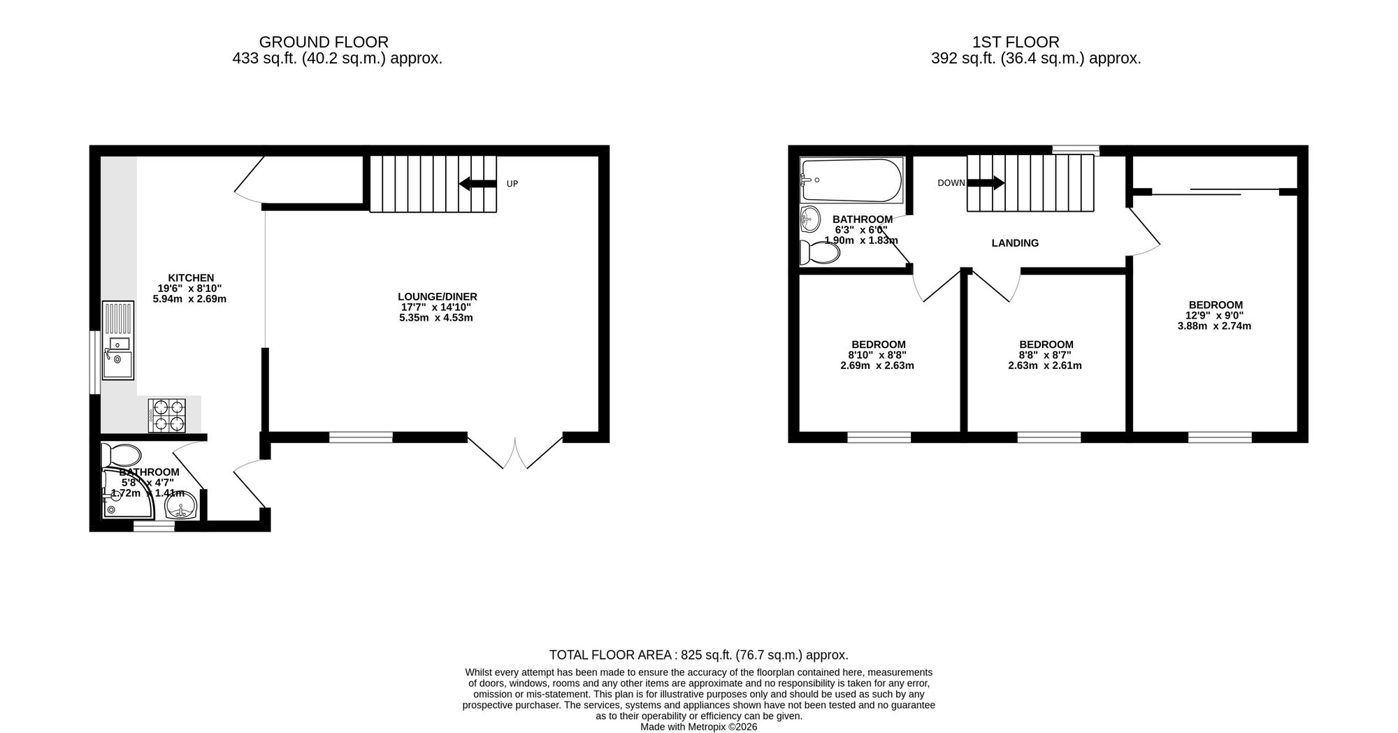
We are delighted to offer this well-presented three-bedroom end-terraced property proeprty located on Maes-yr-Onen in Nelson, Treharris. The property enjoys a convenient position within a popular residential area, ideal for families and commuters alike. Nelson offers a good range of local amenities, including shops, cafés and leisure facilities, with further options available in nearby Treharris and Ystrad Mynach. Families are well served by local primary and secondary schools, while surrounding countryside, parks and walking routes provide excellent opportunities for outdoor recreation. The property benefits from good transport links, with easy access to the A472, A470 and M4 corridor, making travel to Cardiff, Caerphilly, Pontypridd and the wider South Wales region straightforward. Regular bus services further enhance connectivity, and attractions such as local country parks and scenic valley walks add to the appeal of the area.

You enter the property through an initial porch area, which provides access to a ground floor shower room and leads through to the main living accommodation. The ground floor is arranged in a modern open-plan layout, incorporating the kitchen and living space and offering plenty of room for both seating and dining. This sociable and well-presented area creates an ideal environment for everyday living and entertaining.

On the first floor are three bedrooms and the family bathroom. There are two comfortable double bedrooms and a large single bedroom, suitable for a child’s room, guest space or home office.

Externally, the property benefits from a gated and enclosed front garden, thoughtfully arranged with patio and lawned areas, providing a pleasant and private outdoor space for seating and relaxation.

This attractive end-terraced home combines modern living, flexible accommodation and a convenient Nelson location, making it a fantastic opportunity for families, first-time buyers and investors alike.

Agents Notes:

  • Please note the property is Non-standard construction (structure TBC), it is advised potential buyers speak with their mortgage broker/lender to ensure they will lend on this type of property.
  • The property has been altered (internal wall removed & rear extension), for which building regulation or approval documents have not yet been made available. We would inform interested parties to rely on their own inspections, searches and surveys before committing to any transactional decision.
  • The current owners have advised that the property is in a coalfield or mining area.
Council Tax Band A

All services and mains water (metered) are connected to the property.

The broadband internet is provided to the property by Cable, the sellers are subscribed to Youfibre. Please visit the Ofcom website to check broadband availability and speeds.

The owner has advised that the level of the mobile signal/coverage at the property is good, they are subscribed to Tesco. Please visit the Ofcom website to check mobile coverage.

Please contact us for more information or to arrange a viewing.

Important Information

  • This is a Freehold property.
  • This Council Tax band for this property is: A
  • EPC Rating is D

Property Ref: 84fcf422-c880-4510-b047-10ee4ee60966

Share:

Similar Properties

Lilleshall Street, Newport, NP19

3 Bedroom Terraced House | Guide Price £140,000

* GUIDE PRICE: £140,000 - £150,000* 3 BEDROOMS* WELL PRESENTED* OPEN PLAN LIVING ROOM / DINER* SPACIOUS RECEPTION AREA*...

Bryncelyn Place, Pontnewydd, NP44

2 Bedroom Flat | Guide Price £140,000

* GUIDE PRICE £140,000 - £150,000* FIRST FLOOR FLAT* 2 BEDROOMS* LARGE PRIVATE GARDEN* BRIGHT RECEPTION ROOM* PRACTICAL...

Caesar Crescent, Caerleon, NP18

2 Bedroom Terraced House | Guide Price £140,000

* GUIDE PRICE £140,000 - £150,000* 2 BEDROOMS* SPACIOUS LIVING ROOM / DINER* SHOWER ROOM* BREAKFAST BAR + PANTRY* UTILIT...

Clist Road, Bettws, NP20

3 Bedroom Terraced House | Guide Price £145,000

GUIDE PRICE: £145,000 - £155,000**NO ONWARD CHAIN**TERRACED PROPERTY**THREE BEDROOMS**MODERN OPEN PLAN LOUNGE/DINER**KIT...

High Street, Llanhilleth, NP13

3 Bedroom Semi-Detached House | Guide Price £145,000

* GUIDE PRICE £145,000 - £150,000* 3 BEDROOMS* SEMI-DETACHED* TWO LARGE RECEPTION ROOMS* WELL EQUIPPED KITCHEN* BEAUTIFU...

Anderson Grove, Newport, NP19

2 Bedroom Flat | Guide Price £145,000

* GUIDE PRICE £145,000 - £155,000* GROUND FLOOR APARTMENT* 2 BEDROOMS* OPEN PLAN LIVING / DINING ROOM* KITCHEN WITH INTE...

Number One Real Estate (Newport)

Newport, Monmouthshire, NP20 4AQ

01633 492777

How much is your home worth?

Use our short form to request a valuation of your property.

Request a Valuation

Mortgage Calculator

Amount Borrowed: £
Total Amount Repayable: £
Total Monthly Payment: £
©2026 The Guild of Property Professionals. All rights reserved. Terms and Conditions | Privacy Policy | Cookie Policy | Complaints Policy | Members Login
The Guild of Property Professionals Trading Address: 121 Park Lane, London W1K 7AG. GPEA Limited. Registered in England & Wales.  Company No: 02819824.  Registered Office Address: 2 St. Stephen's Court, St. Stephen's Road, Bournemouth, Dorset, England, BH2 6LA.  VAT Registration No: 576 8795 61
Book a Property Valuation Update Cookies Preferences