St. Erme, Truro

Asking Price
£499,950
SSTC
This property listing is now SSTC

3 Bedroom House for sale in Truro

2 3 1
  • Edge of popular village
  • No onward chain
  • Character features
  • Garage and parking
  • Level plot and gardens
  • Three bedrooms
  • Stunning upgraded kitchen
  • Tastefully modernised
  • Quiet tranquil setting
  • Useful loft room

Why You'll Like It
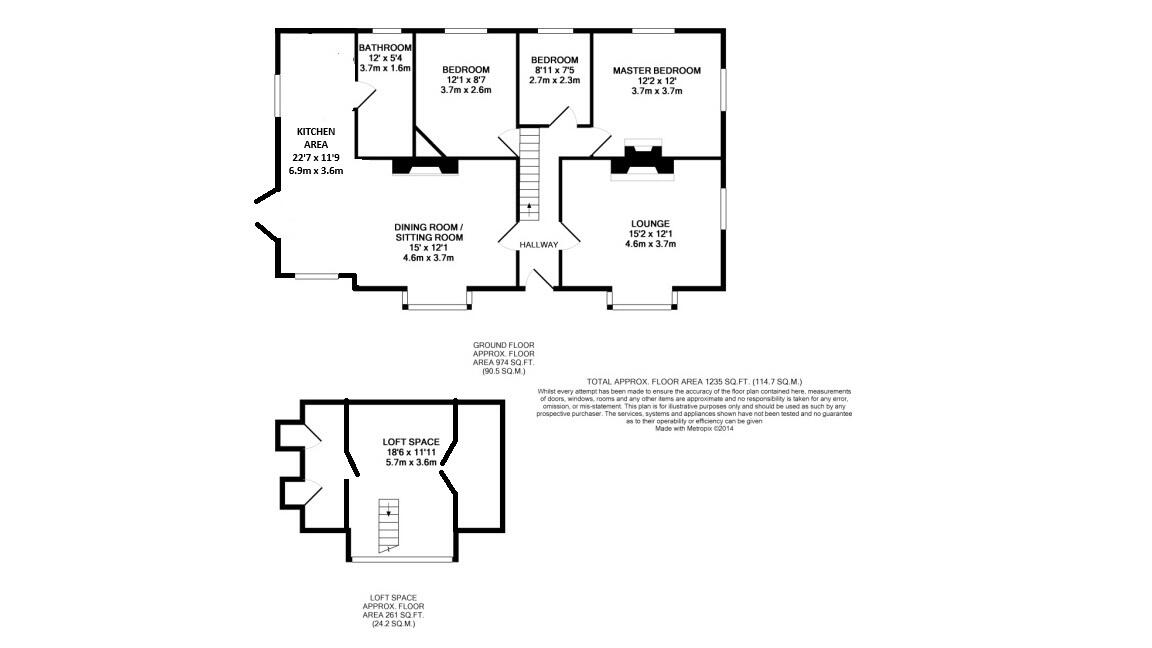
Set on the edge of a quiet popular village on the outskirts of Truro, this delightful three-bedroom bungalow has an idyllic backdrop of the local churchyard and rolling countryside to the front. The property has generous parking, being approached via a driveway for several vehicles and a detached garage beyond. The gardens wrap around the bungalow, with an immediate area of courtyard and then patio pathway leading to a rear garden which is level mainly, mostly laid to lawn and with hard standing for shed. There is also gated access to a rear lane. Inside, the bungalow has an entrance hallway with stairs rising to the converted loft room, which will appeal for anyone working from home or for additional storage. To one side of the bungalow is a L-shaped open plan living concept, with a fantastic dining room with feature woodburner that leads on to a bespoke upgraded modern kitchen suite. Both rooms have hardwood flooring running throughout and the kitchen has a cathedral style velux window ceiling. There are a range of base and eye level gloss cupboard units providing generous storage including a wine fridge. A door leads through to the bathroom, which is a modern suite containing shower over bath, WC and pedestal wash and basin. At the other side of the property is a separate sitting room enjoying a dual aspect view over the front and rear garden and this also includes a character feature fireplace. At the rear of the property are three bedrooms, two of which are doubles with a large third bedroom in between. All in all, this is a fantastic opportunity to live on the edge of a quiet rural village yet have the modern conveniences of Truro nearby and it is offered with no onward chain.

Where It Is
St Erme is a thriving village between Truro and the main A30. In the village there are many amenities including a shop, Post Office, parish church and cricket club. Transport links are excellent with regular buses and access to the main A30 via Carland Cross. Truro is within 5 miles where you'll find the cathedral, fabulous independent retailers, coffee shops, restaurants and national stores such as Marks and Spencer and Waitrose, The White Company and Waterstones. The Plaza cinema has 5 screens and the Hall For Cornwall theatre has a packed schedule of live arts and performance. Senior schools and college are found in Truro and a regular bus service provides access. St Erme is essentially a rural and historic farming village. The north Cornish coast is a short drive and the south coast for sailing and the creeks is close by too.

Tenure and Services
Freehold. Oil central heating, electric. Mains water and drainage. Council Tax Band C

IMPORTANT INFORMATION
Clive Pearce Property, their clients and any joint agents give notice that:
1. They are not authorised to make or give any representations or warranties in relation to the property either here or elsewhere, either on their own behalf or on behalf of their client or otherwise. They assume no responsibility for any statement that may be made in these particulars. These particulars do not form part of any offer or contract and must not be relied upon as statements of fact.

2 It should not be assumed that the property has all necessary planning, building regulation or other consents and Clive Pearce Property have not tested any services, equipment or facilities. Purchasers must satisfy themselves by inspection or otherwise.
3. Photos and Videos: The photographs and/or videos show only certain parts of the property as they appeared at the time they were taken. Areas, measurements and distances given are approximate only. Any computer generated image gives only an indication as to how the property may look and this may change at any time.
Any reference to alterations to, or use of, any part of the property does not mean that any necessary planning, building regulations or other consent has been obtained. A buyer must find out by inspection or in other ways that these matters have been properly dealt with and that all information is correct.
Information on the website about a property is liable to be changed at any time.

Important Information

  • This Council Tax band for this property is: C
  • EPC Rating is E

Property Ref: 45218_34291243

Share:

Similar Properties

Perran Foundry, Perranarworthal, Truro

3 Bedroom House | Asking Price £499,950

A stunning Grade II listed luxurious three-storey home in a landmark historic conversion comprising three double bedroom...

HOUSE & PLOT Marazanvose, Truro

4 Bedroom Detached House | Asking Price £499,950

A four bedroom converted barn with conditional PLANNING PERMISSION to construct a further four bedroom detached house PA...

Upland Crescent, Truro

5 Bedroom Detached House | Asking Price £499,950

A flexible four/five bedroom detached home with superb living space, plenty of driveway parking, and good sized gardens....

Carn Marth, Near Redruth

4 Bedroom Semi-Detached House | Offers Over £500,000

A substantial peiod home that has been extended to provide very spacious FOUR BEDROOM accommodation with superb living s...

Tomperrow, Truro, Cornwall

3 Bedroom House | Asking Price £500,000

An utterly IDYLLIC LIFESTYLE is on offer with this rare opportunity featuring TWO INDEPENDENT PROPERTIES. A charming TWO...

Tregolls Road, Truro

3 Bedroom Detached House | Asking Price £525,000

A fine period family home set within substantial mature gardens. Gated driveway parking and garage. Three bedrooms, sun...

Clive Pearce Property (Truro)

Truro, Cornwall, TR1 2LS

01872 272622

How much is your home worth?

Use our short form to request a valuation of your property.

Request a Valuation

Mortgage Calculator

Amount Borrowed: £
Total Amount Repayable: £
Total Monthly Payment: £
©2026 The Guild of Property Professionals. All rights reserved. Terms and Conditions | Privacy Policy | Cookie Policy | Complaints Policy | Members Login
The Guild of Property Professionals Trading Address: 121 Park Lane, London W1K 7AG. GPEA Limited. Registered in England & Wales.  Company No: 02819824.  Registered Office Address: 2 St. Stephen's Court, St. Stephen's Road, Bournemouth, Dorset, England, BH2 6LA.  VAT Registration No: 576 8795 61
Book a Property Valuation Update Cookies Preferences