St. Just in Roseland, nr St Mawes.

Guide Price
£925,000
Under Offer
This property listing is now Under Offer

4 Bedroom Detached House for sale in Truro

2 4 3
  • A historic, sympathetically and tastefully restored detached Grade II Listed former school.
  • Magnificent panoramic and far-reaching water and countryside views.
  • Set amongst private and beautifully landscaped mature gardens with sun terraces.
  • Detached Studio / Work from Home Office and Detached Garage with ample Parking.
  • Beautiful coastal and countryside walks on the doorstep.
  • St Mawes village centre: 2.3 miles. St Just Creekside Church: 0.4 miles. St Just Boatyard: 0.6 miles.
  • Light and airy Lounge with minster style fireplace and recently installed woodburner.
  • Oil fired central heating and double glazed windows.
  • No onward chain.
  • Versatile 3/4 bedroom, 2/3 reception, 3 bathroom accommodation.

A historic, sympathetically and tastefully restored detached Grade II Listed former school, occupying a hilltop vantage point offering magnificent panoramic and far-reaching water and countryside views, set amongst private and beautifully landscaped mature gardens.

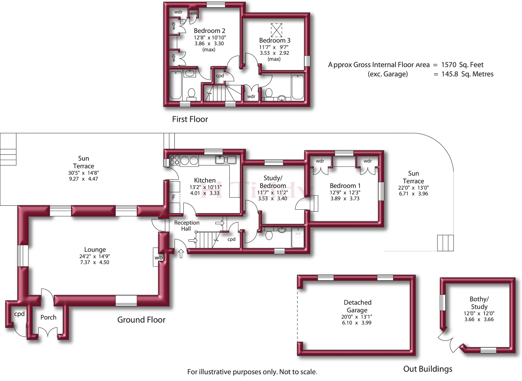
Accommodation Summary(Internal Floor Area (exc. Garage): 1570 sq ft (145.8 sq m))
Ground Floor: Reception Hall, Lounge, Vernacular Style Porch, Kitchen, Study / Bedroom, Bedroom 1, Shower Room.
First Floor: Bedroom 2 with En Suite Bathroom, Bedroom 3, Bathroom.
Outside: Detached Garage and Parking, Bothy / Study, Summerhouse, Landscaped Garden and Sun Terraces.

The ViewsThis unique property is bordered by National Trust Land to the rear, thus meaning the spectacular vistas are 'protected'. Mere photography does not do justice to the mesmeric coastal views which include St Just creek (with its picturesque waterside church), Messack Point, the mile-wide Carrick Roads (Fal Estuary), to Mylor Yacht Harbour and across miles of surrounding Cornish Countryside. The Old School House enjoys ever-changing views, from ambling oyster boats, yachts racing, water skiers, canoes, kayaks, and an abundance of marine wildlife to inspiring and relaxing Cornish sunsets.
HistoryFormerly a Church of England school, this Grade II Listed private home was built circa 1850. The original building, which now forms the spacious lounge, is built in natural stone with granite quoins to a scantle slate roof. The double doors to the 4 centred door frame have iron fittings with fleur-de-lis finials. Since 1991, three modern extensions have been added to the original structure, the last dated in 2007, now the property's principal bedroom. In 2008, planning permission was granted to replace the non-original casement windows with new traditional flash fit double glazed timber windows. Most recently, a wood burner was installed in the minster fireplace in the lounge.
SummaryThis unique property requires an internal inspection to fully appreciate its wealth of character yet sympathetic interior design. The Old School House is our client’s permanent home and has an appealing and welcoming aura. It offers an excellent standard of presentation that will suit the lifestyle change family or retiring buyer. The exceptional views will be of particular interest to the second home buyer where a lucrative potential holiday letting income is possible.
InternallyUpon walking through the main entrance doors into the slate floored reception hall, one automatically gets transported into days gone by. The main lounge is a particular feature where one can still envisage the history of the property. This light, airy and spacious room has triple aspect double glazed windows with window seats, two of which benefit from the outstanding views. To one wall is a minster style fireplace with a recently installed wood burner inset. The high vaulted ceiling adds to the feeling of space in the superbly presented room. A brace and latch door leads to the original porch with its arched double doors and iron hinges.
The kitchen breakfast room has shaker style cabinets complimented by quartz style Corian worktop surfaces. The one-and-a-half bowl stainless steel sink has been perfectly placed to admire the captivating water views. An oil-fired Aga with decorative tiling is featured next to an electric cooker. The dining area has built in seating and a glazed rear door leads onto the principal sun terrace, perfect for alfresco dining.
Extending from the reception hall is a principal bedroom wing comprising shower room, study / occasional bedroom 4, and bedroom with built in wardrobes and dual aspect windows capturing the magnificent views.
On the first floor is a guest bedroom, which could be a main bedroom, with en-suite bathroom (with shower over bath), and a third bedroom with its own landing and a bathroom, again with a shower over. Both the bedrooms have built in wardrobes along with benefitting from the breath-taking views.
OutbuildingsThe driveway has a good-sized parking area to one side which then contours down to the detached garage / workshop which has two double glazed windows and an electric up and over door. To the western side of the garden is a detached bothy ideal as a work from home study or hobbies room. To the bottom western corner of the gardens is a summerhouse. In the fore garden is a timber shed.
The Gardens (Circa 0.37 acres)At the front are wrought iron pedestrian gates leading to slate pathways that meander around rockeries and stonewalls. To the west side is a 22' x 13' sun terrace with curved railings that overlook the beautiful gardens and water views beyond. The main large sun terrace is connected to the kitchen and offers some of the best views from the property. The rear gardens are landscaped with meandering slate paths and terraces contoured by a profusion of mature shrubs and flora to a large area of lawn, all offering privacy and seclusion. One important neighbour is the National Trust who own the land directly in line with the superb panoramic views.
Location Summary(Distances and times are approximate)St Mawes village centre: 2.3 miles (Falmouth 20 minutes by passenger ferry). St Just Church: 0.4 miles. St Just Boatyard: 0.6 miles. King Harry Ferry: 3.3 miles. Pendower Beach: 4 miles. Truro (via ferry): 8 miles. Falmouth: 13 miles. St Austell: 16 miles (London Paddington 4 hours by train). Cornwall Airport Newquay: 25 miles (London 80 minutes by air). Exeter: 95 miles.
St Just in RoselandSt Just-in-Roseland is a small village in an Area of Outstanding Natural Beauty, with much of its surroundings owned by the National Trust. It is renowned for its lovely Church in a delightful waterside setting of great beauty. Picturesque coastal and countryside walks are abundant. There is regular bus service to St Mawes and Truro, plus a popular cafe´ and boatyard with deep moorings in the creek which merges into the fine sailing waters of Carrick Roads and Falmouth Bay. Around a mile away is the exclusive and enchanting coastal village of St Mawes which is centred round its quaint harbour, its own beaches and Castle. It has a wide range of amenities, which are open all year, including a passenger ferry service to Falmouth, a butcher, baker, convenience store, post office / newsagent, doctors, dentist, pharmacy, village hall, church, delicatessen and clothing shops.
CornwallThe Duchy of Cornwall offers a range of attractions such as the Eden Project, the National Maritime Museum, the Lost Gardens of Heligan, and the Tate Gallery. The Cathedral City of Truro is the main financial and commercial centre of Cornwall. It has a fine range of shops, private schools, college and main hospital (RCH Treliske). Cornwall Airport in Newquay has regular daily flights to London as well as offering connections to other UK regional airports and a number of European destinations.
Fine Dining RestaurantsFine dining Michelin star and celebrity chef restaurants are in abundance, including Rick Stein (Padstow), Nathan Outlaw (Port Isaac), and Paul Ainsworth (Padstow and Rock). Rising stars on The Roseland are Guy Owen at Hotel Tresanton in St Mawes, Simon Stallard at The Hidden Hut on Porthcurnick Beach and The Standard Inn in Gerrans.

General & Material Information
Material Information (Including Key Facts for Buyers): Please go to the media / brochure tabs.
Services: Mains water, electricity and private drainage. Telephone (broadband enabled) and television points. Oil fired central heating to radiators via an encased outside combination boiler.
Energy Performance Certificate Rating: D.
Council Tax Band: G
Land Registry Title Numbers: CL70148
Tenure: Freehold
Viewing: Strictly by appointment with H Tiddy.

Important NoticeEvery effort has been made with these details, but accuracy is not guaranteed, and they are not to form part of a contract. Representation or warranty is not given in relation to this property. An Energy Performance Certificate is available upon request. The electrical circuit, appliances and heating system have not been tested by the agents. All negotiations must be with H Tiddy. Before proceeding to purchase, buyers should consider an independent check of all aspects of the property. Further information on mobile coverage and broadband availability is found on Ofcom and Openreach ‘checker’ websites. Visit the Gov.uk website for further information and to ‘check long term flood risks.
General Data Protection Regulations: We treat all data confidentially and with the utmost care and respect. If you do not wish your personal details to be used by us for any specific purpose, then you can unsubscribe or change your communication preferences and contact methods at any time by informing us either by email or in writing at our office in St Mawes.

Important Information

  • This is a Freehold property.
  • This Council Tax band for this property is: G

Property Ref: 347434

Share:

Similar Properties

Marine Parade, St Mawes

3 Bedroom Terraced House | Guide Price £925,000

Set on Marine Parade in the heart of St Mawes, this charming 3-bedroom cottage offers front-row sea views, a spacious in...

Carrick Way, St Mawes

2 Bedroom Detached Bungalow | Guide Price £925,000

Jim’s Cottage enjoys breathtaking 180° views across St Mawes Harbour and St Anthony Headland. With two double bedrooms,...

The Brakeyard, St Mawes

3 Bedroom End of Terrace House | Guide Price £925,000

Pen an Garth is a stylish, 3 bedroom refurbished home in St Mawes with stunning views, private gardens, a garage, and pa...

175 yards from St Mawes Waterfront.

4 Bedroom Semi-Detached House | Guide Price £945,000

A contemporary coastal residence in the heart of St Mawes. Panoramic harbour and sea views across St Anthony Headland an...

Treviskey, Near Portloe, Truro, Cornwall

5 Bedroom Detached House | Guide Price £950,000

An immaculate, deceptively spacious and sympathetically extended five bedroom character cottage plus a one bedroom detac...

Newton Road, St. Mawes, Truro, Cornwall, TR2

5 Bedroom Detached House | Guide Price £950,000

Beautifully presented 5-bedroom home in the heart of St Mawes, offering spacious open-plan living, ground floor bedroom...

H Tiddy (St Mawes)

St Mawes, Cornwall, TR2 5AG

01326 270212

How much is your home worth?

Use our short form to request a valuation of your property.

Request a Valuation

Mortgage Calculator

Amount Borrowed: £
Total Amount Repayable: £
Total Monthly Payment: £
©2026 The Guild of Property Professionals. All rights reserved. Terms and Conditions | Privacy Policy | Cookie Policy | Complaints Policy | Members Login
The Guild of Property Professionals Trading Address: 121 Park Lane, London W1K 7AG. GPEA Limited. Registered in England & Wales.  Company No: 02819824.  Registered Office Address: 2 St. Stephen's Court, St. Stephen's Road, Bournemouth, Dorset, England, BH2 6LA.  VAT Registration No: 576 8795 61
Book a Property Valuation Update Cookies Preferences