Murdoch Close, Truro

Asking Price
£395,000

3 Bedroom Detached House for sale in Truro

2 3 1
  • Three bedrooms
  • Detached house
  • End of cul-de-sac position
  • Large garden backing on to the park
  • Garage and potential to extend (subject to consent)
  • Driveway parking
  • UPVC double glazing and gas central heating
  • Excellent city location
  • Close to Archbishop Benson Primary School

Why You'll Like It
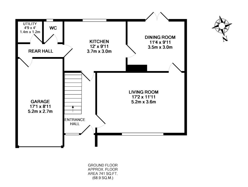
Tucked away at the end of a peaceful cul-de-sac, this three-bedroom detached home has been a much-loved family property and will be sold for the first time since 1977. Enjoying a fantastic position with direct rear garden access to Tremorvah Playing Field – and an easy stroll to Archbishop Benson Primary School – this home combines space, light, and a wonderful sense of privacy. The accommodation is well laid out, with a bright and welcoming hallway leading to a generously sized living room overlooking the landscaped front garden. To the rear, the kitchen offers plenty of workspace and built-in appliances, while the separate dining room with French doors opens directly to a sunny patio, perfect for family meals or summer entertaining. There’s also a useful cloakroom/WC and a practical utility room along with interior access to the garage (where the recently installed gas central heating boiler is located). Upstairs, a wide landing leads to three generous bedrooms, all with built-in storage, and a stylishly refitted shower room featuring a large walk-in enclosure, Mira Jump electric shower and contemporary fittings. Outside, the gardens have clearly been tended with care, offering attractive planting, a suntrap patio, and a good-sized lawn that wraps around the property. With its peaceful setting, lovely gardens, and excellent potential for future extension (subject to consents), this superb home offers a rare opportunity in a sought-after location.

Where It Is
Ideally located on the Eastern side of the city with access to good local primary, secondary and independent schools within walking distance. Archbishop Benson Primary School is a short walk away and can be accessed by crossing Tremorvah Playing Field from the garden gate. Penair Secondary School is a relatively easy walk from here too. It is also simple to walk down into the city centre from this location and the Waitrose supermarket just up the hill is really convenient and has a lovely cafe too. Adjoining Waitrose is The Great Cornish Food Store which also has a cafe and is a great place to buy locally sourced produce. Superb facilities are available to the public at the Sir Ben Ainslie Sports Centre which is not too far away and offers membership to the indoor pool, sports halls and gym. The Alverton Hotel is a lovely place for special occasions and has a popular cocktail bar.

Services And Tenure
The property is freehold and has mains water, mains drainage, mains electricity and mains gas central heating.

Council tax band D

IMPORTANT INFORMATION
Clive Pearce Property, their clients and any joint agents give notice that:
1. They are not authorised to make or give any representations or warranties in relation to the property either here or elsewhere, either on their own behalf or on behalf of their client or otherwise. They assume no responsibility for any statement that may be made in these particulars. These particulars do not form part of any offer or contract and must not be relied upon as statements of fact.

2 It should not be assumed that the property has all necessary planning, building regulation or other consents and Clive Pearce Property have not tested any services, equipment or facilities. Purchasers must satisfy themselves by inspection or otherwise.
3. Photos and Videos: The photographs and/or videos show only certain parts of the property as they appeared at the time they were taken. Areas, measurements and distances given are approximate only. Any computer generated image gives only an indication as to how the property may look and this may change at any time.
Any reference to alterations to, or use of, any part of the property does not mean that any necessary planning, building regulations or other consent has been obtained. A buyer must find out by inspection or in other ways that these matters have been properly dealt with and that all information is correct.
Information on the website about a property is liable to be changed at any time.

Important Information

  • This Council Tax band for this property is: D
  • EPC Rating is D

Property Ref: 45218_34233224

Share:

Similar Properties

Leap Park, Threemilestone

3 Bedroom Detached House | Asking Price £390,000

A substantial three bedroom detached house with garage, enclosed sunny garden and abundant parking located at the end of...

Gloweth View, Truro

3 Bedroom Bungalow | Asking Price £385,000

A spacious detached bungalow in a prime position close to the hospital and golf club. Driveway parking and gardens. Beau...

Mylor Bridge, Near Falmouth

3 Bedroom Detached Bungalow | Asking Price £385,000

A beautifully situated three-bedroom detached bungalow offering views over the creekside village of Mylor Bridge. With t...

Coldrose Court, Truro

4 Bedroom Link Detached House | Asking Price £399,000

A spacious and flexible 4 bedroom link detached family house occupying a large corner plot in a favoured cul-de-sac in t...

Pengelly Way, Truro

3 Bedroom Detached Bungalow | Asking Price £399,950

A well presented three bedroom detached bungalow with gardens, parking and garage located a very short level walk from t...

College Green, Penryn

3 Bedroom Semi-Detached House | Asking Price £399,950

A smartly presented three bedroom linked semi detached house built by Linden Homes in 2016. Large integral double garage...

Clive Pearce Property (Truro)

Truro, Cornwall, TR1 2LS

01872 272622

How much is your home worth?

Use our short form to request a valuation of your property.

Request a Valuation

Mortgage Calculator

Amount Borrowed: £
Total Amount Repayable: £
Total Monthly Payment: £
©2026 The Guild of Property Professionals. All rights reserved. Terms and Conditions | Privacy Policy | Cookie Policy | Complaints Policy | Members Login
The Guild of Property Professionals Trading Address: 121 Park Lane, London W1K 7AG. GPEA Limited. Registered in England & Wales.  Company No: 02819824.  Registered Office Address: 2 St. Stephen's Court, St. Stephen's Road, Bournemouth, Dorset, England, BH2 6LA.  VAT Registration No: 576 8795 61
Book a Property Valuation Update Cookies Preferences