City Road, Truro

Offers in region of
£365,000

3 Bedroom Semi-Detached House for sale in Truro

3 3 1
  • Spacious three bedroom house
  • City centre location
  • Extended
  • Large garden room included
  • Refitted kitchen and bathroom
  • Mains gas central heating
  • UPVC double glazing
  • Enclosed level garden
  • Composite barbecue deck

Why You'll Like It
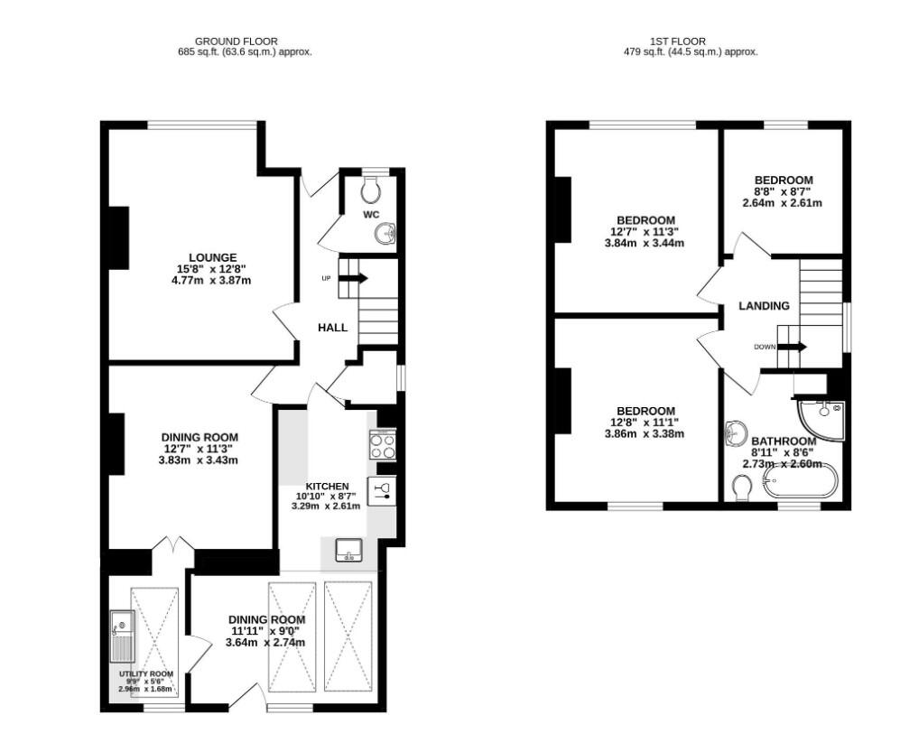
This three bedroom semi detached house offers surprisingly spacious extended accommodation and has an enclosed sunny rear garden right in the heart of Truro. There's also more parking than you might expect with off street spaces for up to three vehicles on the driveway. Entering the property, you notice a good amount of the character still intact with a pretty tiled entrance hallway. There's a cloakroom /WC and under stairs storage, and the living room is beautifully proportioned. There's a large dining room also with a feature decorative fire place and towards the rear the kitchen has been extended and refitted creating a kitchen / breakfast room with separate utility and doors to the rear garden. Heading upstairs, a wide landing connects three generous bedrooms and the refitted family bathroom (with separate shower and bath). Outside to the rear there is a low maintenance composite barbecue deck and a very useful garden room / cabin which would suite a wide range of uses from art or yoga studio to home gym or office, or even additional play space for a growing family.

Where It Is
This location is right in the heart of the city and easily walkable to the fantastic array of shops, restaurants, bars and cafes. The neo gothic Cathedral holds many events including craft markets and silent discos in addition to wonderful concerts. The Hall For Cornwall is the county's theatre with amazing shows ranging from panto to big name stand ups, and with plays and musicals every bit as good as The West End! There are great restaurants a short walk away. Bosvigo primary school is highly regarded and close and Truro mainline railway station is just up the hill with services to London Paddington including the sleeper train and also a handy branch line connecting with Penryn and Falmouth.

Services And Tenure
The property is freehold and has mains water, mains drainage, mains electricity and mains gas.

Council tax band C

IMPORTANT INFORMATION
Clive Pearce Property, their clients and any joint agents give notice that:
1. They are not authorised to make or give any representations or warranties in relation to the property either here or elsewhere, either on their own behalf or on behalf of their client or otherwise. They assume no responsibility for any statement that may be made in these particulars. These particulars do not form part of any offer or contract and must not be relied upon as statements of fact.

2 It should not be assumed that the property has all necessary planning, building regulation or other consents and Clive Pearce Property have not tested any services, equipment or facilities. Purchasers must satisfy themselves by inspection or otherwise.
3. Photos and Videos: The photographs and/or videos show only certain parts of the property as they appeared at the time they were taken. Areas, measurements and distances given are approximate only. Any computer generated image gives only an indication as to how the property may look and this may change at any time.
Any reference to alterations to, or use of, any part of the property does not mean that any necessary planning, building regulations or other consent has been obtained. A buyer must find out by inspection or in other ways that these matters have been properly dealt with and that all information is correct.
Information on the website about a property is liable to be changed at any time.


6.9m x 3.6m (22'7" x 11'9")

Important Information

  • This Council Tax band for this property is: C
  • EPC Rating is C

Property Ref: 45218_34202689

Share:

Similar Properties

Pengelly Way, Threemilestone, Truro

4 Bedroom Semi-Detached Bungalow | Asking Price £365,000

A spacious and well presented four bedroom split level semi detached extended bungalow with sunny enclosed front and rea...

Perranwell Station, Between Truro & Falmouth

3 Bedroom Semi-Detached House | Asking Price £360,000

A spacious three bedroom semi detached home in the heart of the village with generous front and rear gardens. Good sized...

Chapel Hill, Ponsanooth, Truro

3 Bedroom Cottage | Asking Price £360,000

A delightful granite, semi detached, three bedroom character cottage located in the heart of the village, "tucked away"...

Carvoza Road, Truro

3 Bedroom Town House | Asking Price £375,000

An elegant and characterful, three bedroom townhouse with refitted kitchen and delightful landscaped garden. Located in...

Roseland Crescent, Chacewater

3 Bedroom Link Detached House | Asking Price £375,000

A beautifully presented three bedroom link detached family house with garage, garden and driveway parking located in a c...

James Place, Truro

3 Bedroom Town House | Asking Price £375,000

A luxurious three double bedroom city centre townhouse with an impressive roof terrace enjoying panoramic city views fro...

Clive Pearce Property (Truro)

Truro, Cornwall, TR1 2LS

01872 272622

How much is your home worth?

Use our short form to request a valuation of your property.

Request a Valuation

Mortgage Calculator

Amount Borrowed: £
Total Amount Repayable: £
Total Monthly Payment: £
©2026 The Guild of Property Professionals. All rights reserved. Terms and Conditions | Privacy Policy | Cookie Policy | Complaints Policy | Members Login
The Guild of Property Professionals Trading Address: 121 Park Lane, London W1K 7AG. GPEA Limited. Registered in England & Wales.  Company No: 02819824.  Registered Office Address: 2 St. Stephen's Court, St. Stephen's Road, Bournemouth, Dorset, England, BH2 6LA.  VAT Registration No: 576 8795 61
Book a Property Valuation Update Cookies Preferences