Archibald Road, Tufnell Park, N7

£825,000
SSTC
This property listing is now SSTC

2 Bedroom Flat for sale in Tufnell Park

2
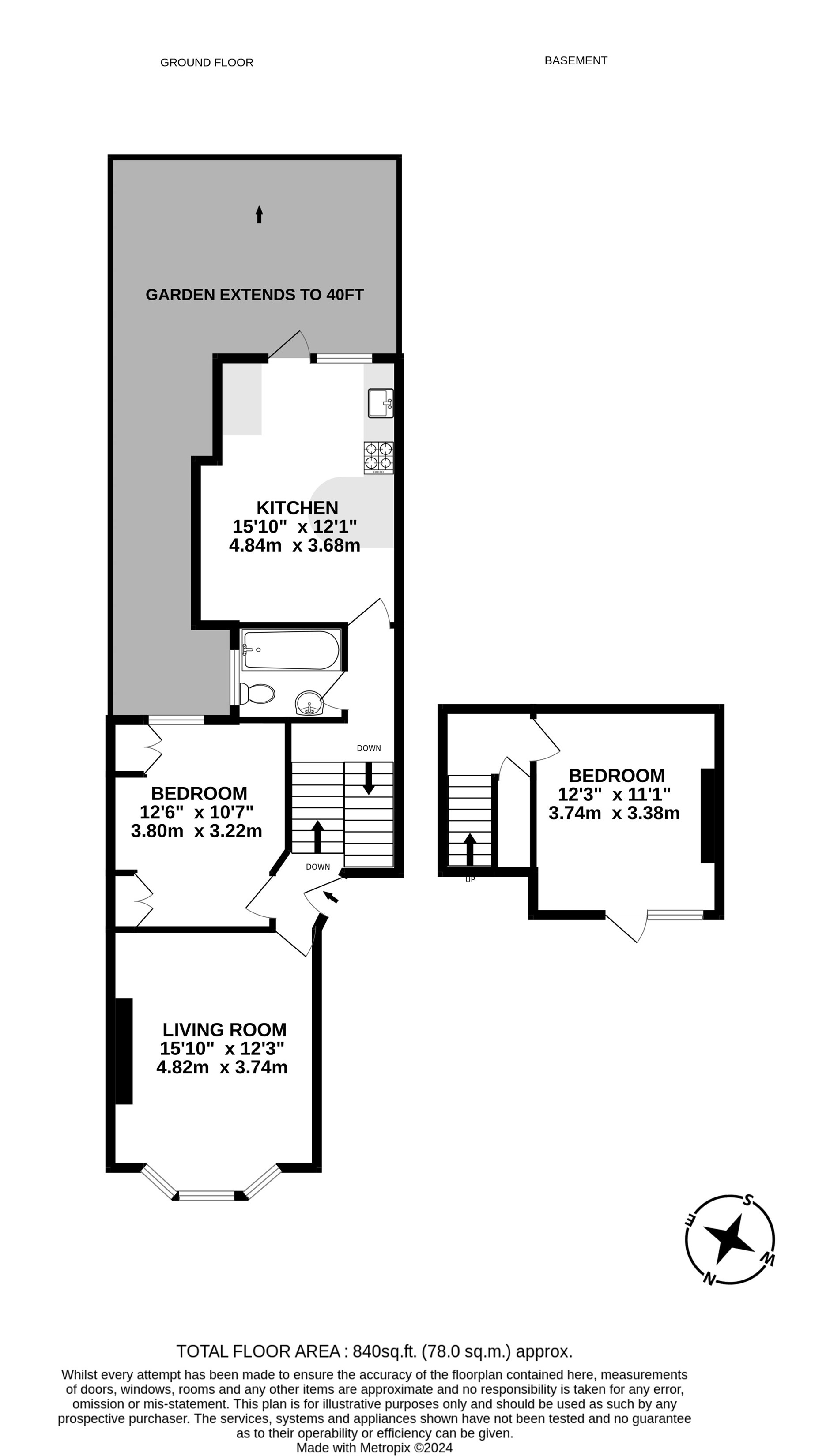
  • Beautiful Duplex Apartment
  • Two Bedrooms
  • Rear Garden
  • Stunning Living Room With Bay Window
  • Fitted Kitchen
  • Bathroom/WC
  • Located Within Access Of Local Amenities & Tufnell Park Station
  • Parking

A beautifully presented two bedroom duplex apartment set on the raised and lower ground floors of a fine period building. The property has excellently sized accommodation throughout, including a wonderful living room with bay window, a fitted kitchen, two spacious bedrooms, bathroom/wc and direct access out to a charming rear garden. Archibald Road is a lovey residential street located within easy access of local amenities including Tufnell Park Station.
Agents Note: We understand from the seller that the property comes with a share of the freehold with an underlying remaining lease of approximately 88 years however we recommend that you check this information with your solicitor. We are awaiting information from the sellers regarding if there any ground and/ or service charges. Please note - this is a draft advert/ brochure awaiting the seller's approval.





Kitchen

Reception 1

Important Information

  • This is a Share of Freehold property.

Property Ref: 58726_89655

Share:

Similar Properties

Grafton Road, Kentish Town NW5

2 Bedroom Flat | £825,000

Rare on the market is this two-bedroom lateral ground-floor flat, with its own access from the street, tucked inside a c...

Caversham Road, Kentish Town, NW5

2 Bedroom Flat | Offers in excess of £800,000

A beautifully presented two-bedroom apartment on the raised ground floor of a fine period building EPC Band C. Council T...

Holmes Road, Kentish Town, NW5

2 Bedroom Apartment | £800,000

Olivers Town proudly presents this superbly stylish, two double bedroom standalone apartment spanning over 1000 Sq. Ft....

Ryland Road Kentish Town NW5

2 Bedroom Maisonette | £875,000

An outstanding two-bedroom maisonettes, within the delightful landscaped communal grounds of this former highly regarded...

Prince of Wales Road, Kentish Town, NW5

2 Bedroom Flat | Offers in excess of £1,000,000

Once the Northwest London Polytechnic (built in 1929), this striking Art Deco building was transformed in the late 90s i...

Willes Road, Kentish Town NW5

3 Bedroom Terraced House | £1,100,000

SOLD BY ONLINE AUCTION - Starting Bid GBP £1,100,000 - Terms and Conditions Apply. Viewings strictly by appointment only...

Olivers Town (Kentish Town)

189 Kentish Town Road, Kentish Town, London, NW5 2JU

0207 2841222

How much is your home worth?

Use our short form to request a valuation of your property.

Request a Valuation

Mortgage Calculator

Amount Borrowed: £
Total Amount Repayable: £
Total Monthly Payment: £
©2025 The Guild of Property Professionals. All rights reserved. Terms and Conditions | Privacy Policy | Cookie Policy | Complaints Policy | Members Login
The Guild of Property Professionals Trading Address: 121 Park Lane, London W1K 7AG. GPEA Limited. Registered in England & Wales.  Company No: 02819824.  Registered Office Address: 2 St. Stephen's Court, St. Stephen's Road, Bournemouth, Dorset, England, BH2 6LA.  VAT Registration No: 576 8795 61
Book a Property Valuation Update Cookies Preferences