Doddington Road, Twydall, Gillingham, ME8

Guide Price
£290,000
SSTC
This property listing is now SSTC

3 Bedroom Terraced House for sale in Twydall, Gillingham

2 3 1
  • No Onward Chain
  • Extended Terraced Family Home
  • Three Double Bedrooms
  • Kitchen/Breakfast Room
  • Two Receptions
  • Well Located for Good Schools
  • Close To Amenities & Boasts Great Transport Links
  • Downstairs W/C & Utility Area
  • Rear Garden Measuring Approx 49ft x 26ft

**Guide Price £290,000-£310,000** This spacious and well-presented extended family home offers excellent living accommodation, starting with a large entrance hallway complete with built-in storage. The modern kitchen/breakfast room is ideal for everyday family living and is complemented by a handy utility area and convenient downstairs W/C. The generous lounge provides a comfortable space for relaxation, while the separate dining area features skylights, flooding the room with natural light and creating a bright and welcoming atmosphere. Upstairs, the property boasts three generously sized double bedrooms and a well-appointed family bathroom. Externally, the rear garden is of a lovely size and includes a patio, decking area, and a lawn, perfect for outdoor entertaining and family enjoyment. The front garden is low maintenance with attractive shingle, adding to the property’s curb appeal. The property is well served by a wide range of local amenities, including shops, good schools, and parks, and benefits from excellent transport links, making it ideal for commuters and families alike. It’s rare that such a fantastic opportunity like this presents itself to the market, so call the Greyfox sales team in Rainham to arrange your viewing now!

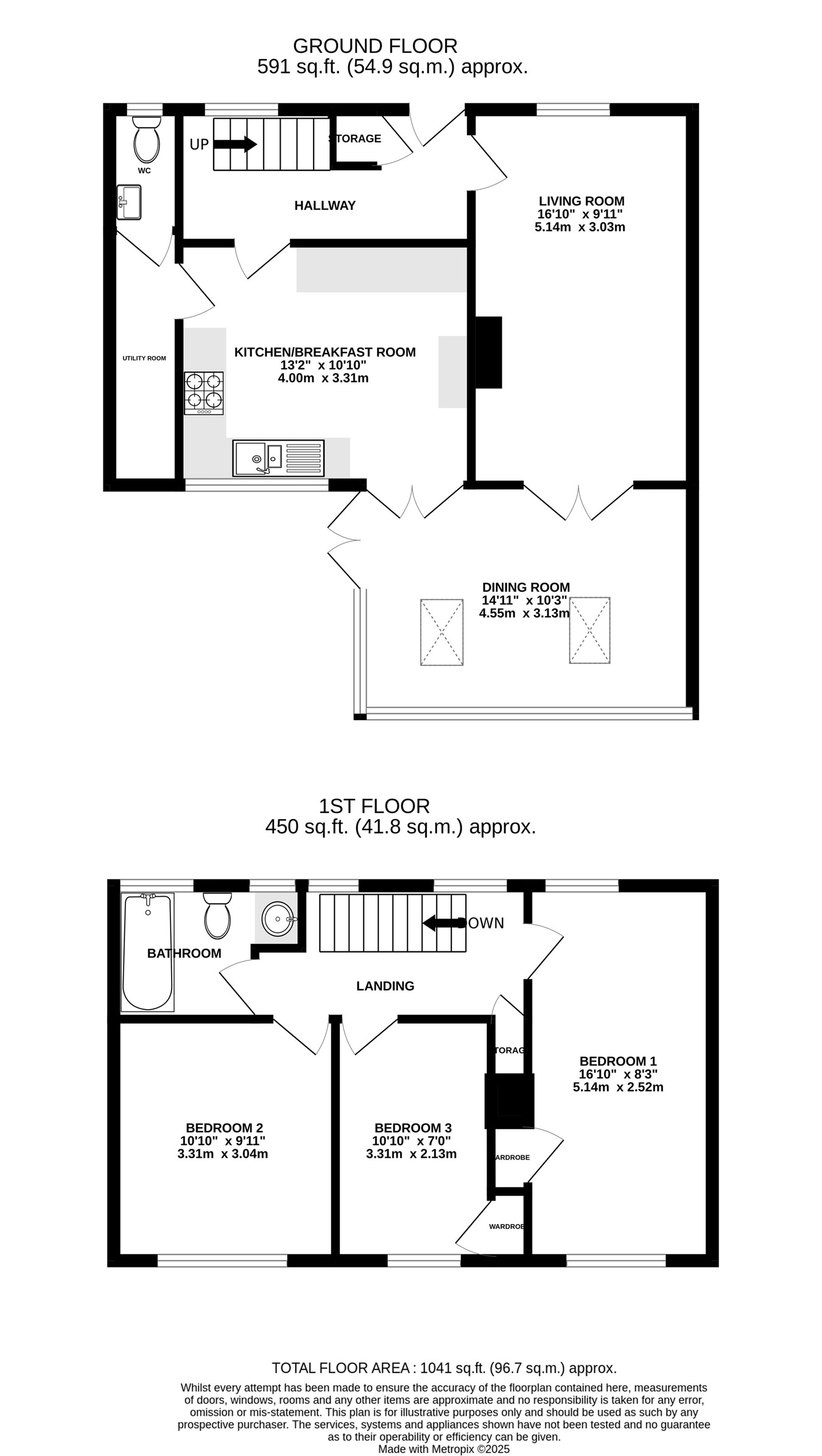
Ground Floor


Living Room
16' 10" x 9' 11" (5.13m x 3.02m)

Dining Room
14' 11" x 10' 3" (4.55m x 3.12m)

Kitchen/ Breakfast Room
13' 2" x 10' 10" (4.01m x 3.30m)

Utility Room


WC


First Floor


Bedroom 1
16' 10" x 8' 3" (5.13m x 2.51m)

Bedroom 2
10' 10" x 9' 11" (3.30m x 3.02m)

Bathroom


Bedroom 3
10' 10" x 7' 0" (3.30m x 2.13m)

Important Information

  • This is a Freehold property.

Property Ref: 5093132_29322289

Share:

Similar Properties

Valley Road, Gillingham, ME7

3 Bedroom Terraced House | Guide Price £290,000

Guide Price £290,000 - £310,000 - Ideal First Home or Next Step on the Property LadderThis attractive Victorian terrace...

Rosebery Road, Gillingham, ME7

2 Bedroom Semi-Detached House | Offers in region of £280,000

Two-Bedroom Semi-Detached Home In Prime Gillingham LocationSituated just 0.4 miles from Gillingham train station, this c...

Conyers Walk, Parkwood, Gillingham, ME8

3 Bedroom Terraced House | Guide Price £280,000

**Guide Price £280,000-£300,000** No onward chain! This well-presented home set on a pleasant walkway offers excellent l...

Harvesters Close, Rainham, Gillingham, ME8

3 Bedroom Terraced House | £300,000

Perfect First Home in Prime Rainham Location – Offered with no onward chain & Move-In Ready!Step onto the property ladde...

Pembroke Gardens, Rainham, Gillingham, ME8

3 Bedroom Semi-Detached House | Guide Price £300,000

**Guide Price £300,000-£325,000** Situated in a highly sought-after area of Rainham, this well-presented three-bedroom s...

Bedson Walk, Rainham, Gillingham, ME8

3 Bedroom End of Terrace House | Guide Price £300,000

**Guide Price £300,000-£325,000** Situated along a quiet walkway in a sought-after Rainham location, this well-presented...

Greyfox Sales & Lettings (Rainham)

High Street, Rainham, Kent, ME8 7HS

01634 377737

How much is your home worth?

Use our short form to request a valuation of your property.

Request a Valuation

Mortgage Calculator

Amount Borrowed: £
Total Amount Repayable: £
Total Monthly Payment: £
©2026 The Guild of Property Professionals. All rights reserved. Terms and Conditions | Privacy Policy | Cookie Policy | Complaints Policy | Members Login
The Guild of Property Professionals Trading Address: 121 Park Lane, London W1K 7AG. GPEA Limited. Registered in England & Wales.  Company No: 02819824.  Registered Office Address: 2 St. Stephen's Court, St. Stephen's Road, Bournemouth, Dorset, England, BH2 6LA.  VAT Registration No: 576 8795 61
Book a Property Valuation Update Cookies Preferences