Galabraes Crescent, Bathgate

Offers Over
£240,000
Under Offer
This property listing is now Under Offer

3 Bedroom Detached House for sale in

3
  • Immaculate three-bedroom family home
  • Spacious living room leading to the dining room
  • Breakfast room extension leading to secluded garden
  • Private rear garden perfect for entertaining and summer BBQs
  • Stunning views over the adjacent countryside
  • Ample off-street parking with detached single garage
  • Train station is 10 minutes away, providing direct links to Edinburgh & Glasgow
  • Balbardie Primary School is within easy walking distance
  • National and international flights from Edinburgh Airport
  • Exclusive development close to Bathgate's shopping and amenities

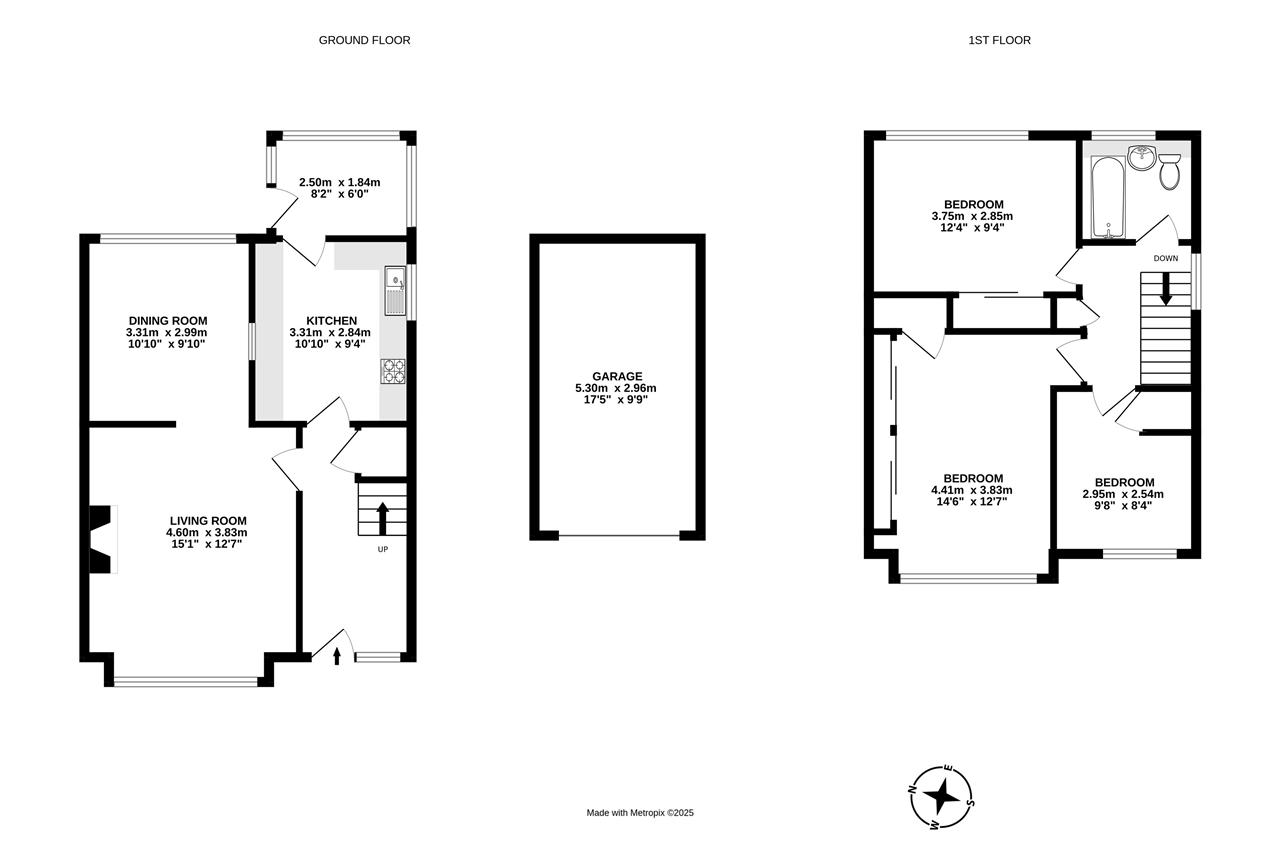
30 Galabraes Crescent is an immaculate family home with stunning views over the adjacent countryside. Ground floor highlights include a spacious open-plan lounge / dining room and a modern well-designed kitchen with integrated appliances which flows into the breakfast room extension and garden beyond. This superb suite of rooms is perfect for family living or entertaining friends.

EPC Rating - Band C

A landing on the first floor leads to three well-proportioned bedrooms, all with built-in storage, and a family bathroom. The property further benefits from full double glazing and gas fired central heating ensuring year-round efficiency.

The property boasts gardens to the front and rear. The spacious rear garden is laid mainly to lawn with a paved seating area. It is fully enclosed and exceptionally secluded. The detached single garage and driveway provide off street parking for several vehicles.

What's special about this house:

• Immaculate family home with private rear garden
• Ample off-street parking with detached single garage
• Stunning views over adjacent countryside
• Breakfast room extension leads to the secluded garden, perfect for entertaining and summer BBQs
• Close to the heart of Bathgate, a thriving town with many social and leisure opportunities
• Train station is 10 minutes away, providing direct links to Edinburgh and Glasgow
• Situated within an exclusive development, close to Bathgate's shopping amenities and idyllic surrounding countryside

Location and Amenities

• Balbardie Primary School within easy walking distance
• Easy access into town centre and to fast mainline rail connections to Edinburgh (21 miles) and Glasgow (28 miles). The M8 and M9 are just a short drive away
• National and international flights from Edinburgh Airport – just 14 miles away
• A relaxing environment close to beautiful nature walks
• Nearby parks and play facilities
• Excellent sports and shopping facilities in Bathgate
• Easy access to leading designer outlets in nearby Livingston town centre

Property Ref: TUR1002657

Share:

Similar Properties

Eagles View, Deer Park, Livingston

2 Bedroom Apartment | Offers Over £225,000

Enjoying captivating views over the prestigious Deer Park Golf and Country Club, this rarely available two-bedroom penth...

Building Plot at South Couston, Bathgate, Bathgate

Land | Offers Over £225,000

SELF BUILD PLOT Serviced building plot with outline planning permission extending to approximately 1.1 acres. Detailed p...

Millburn Crescent, Armadale

4 Bedroom Semi-Detached House | Offers Over £225,000

Boasting a stylish contemporary interior and a deceptively spacious layout, this four-bedroom semi-detached home in Arma...

Glasgow Road, Bathgate

3 Bedroom Terraced House | Offers Over £250,000

118 Glasgow Road is a stunning period cottage, beautifully re-imagined to an exacting standard, creating a stylish home...

Longford Crofts, West Calder

Land | Offers Over £250,000

SELF BUILD PLOTPlot B4 Longford Crofts is a fully serviced building plot, set within an exclusive private development. F...

Meadowpark Avenue, Bathgate

3 Bedroom Detached House | Offers Over £265,000

Set within Bathgate's exclusive Meadowpark development, this attractive three-bedroom detached family home offers a wond...

Turpie & Co (Bathgate)

Bathgate, West Lothian, EH48 1BA

01506 668 448

How much is your home worth?

Use our short form to request a valuation of your property.

Request a Valuation

Mortgage Calculator

Amount Borrowed: £
Total Amount Repayable: £
Total Monthly Payment: £
©2026 The Guild of Property Professionals. All rights reserved. Terms and Conditions | Privacy Policy | Cookie Policy | Complaints Policy | Members Login
The Guild of Property Professionals Trading Address: 121 Park Lane, London W1K 7AG. GPEA Limited. Registered in England & Wales.  Company No: 02819824.  Registered Office Address: 2 St. Stephen's Court, St. Stephen's Road, Bournemouth, Dorset, England, BH2 6LA.  VAT Registration No: 576 8795 61
Book a Property Valuation Update Cookies Preferences