Pardovan Holdings Building Plot, Linlithgow

Offers Over
£190,000
Under Offer
This property listing is now Under Offer

Land for sale in

  • Country to City in under 30 minutes
  • Full planning permission granted - house
  • Combined plot size c. 0.56 acre
  • Stunning countryside views
  • Private access to new dwelling
  • Close to road and rail links
  • Edinburgh Airport is a short drive away
  • Linlithgow Academy school catchment

**Boundary lines are for illustrative purposes only and may not represent the exact legal boundaries of the plot**

SELF BUILD PLOT

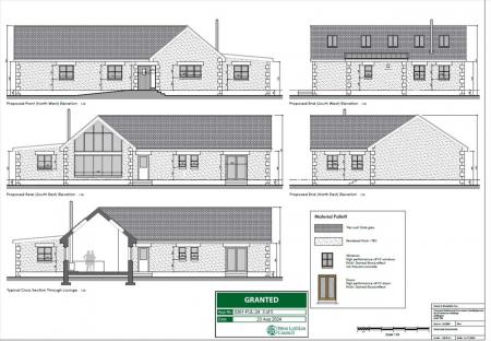
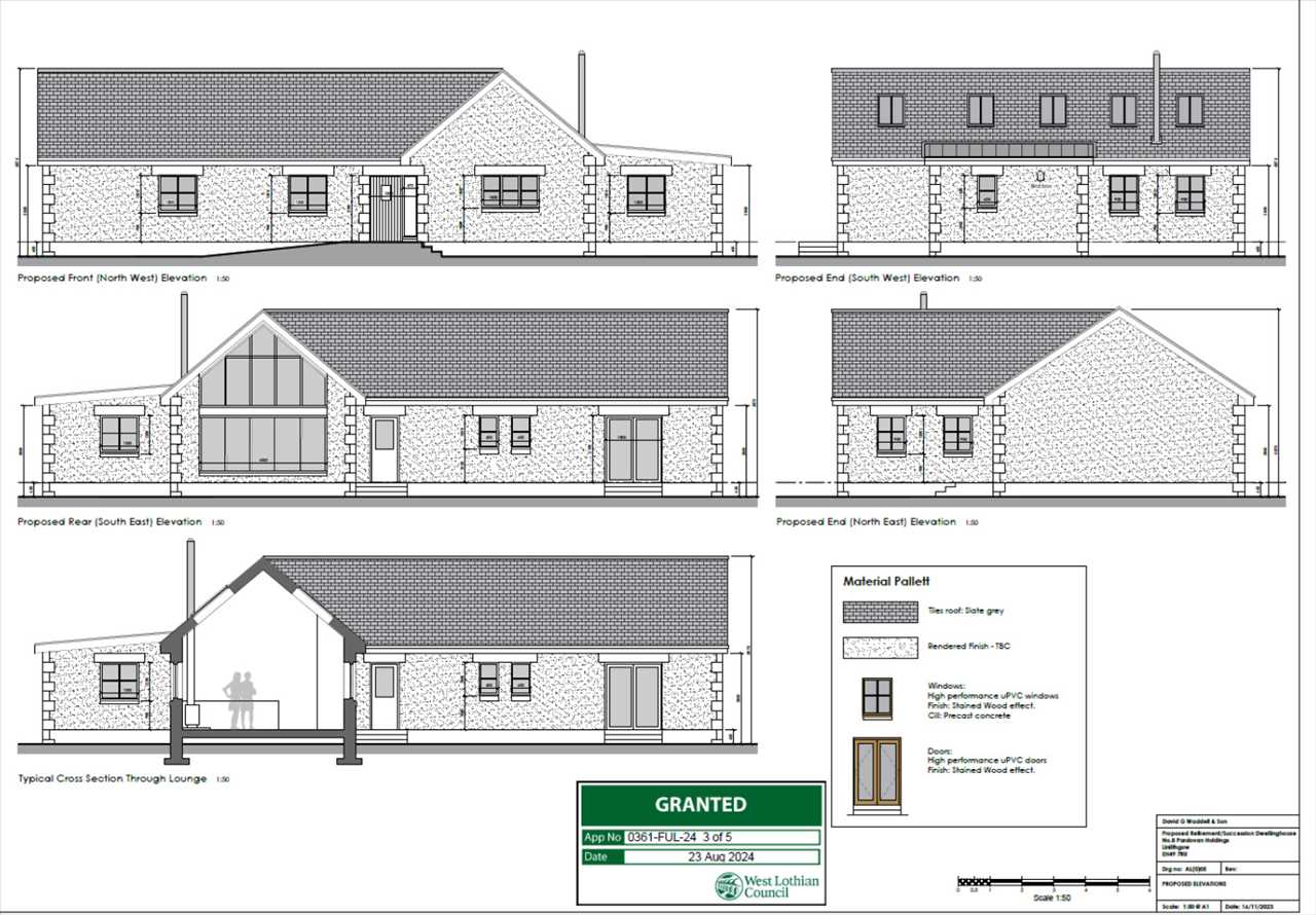
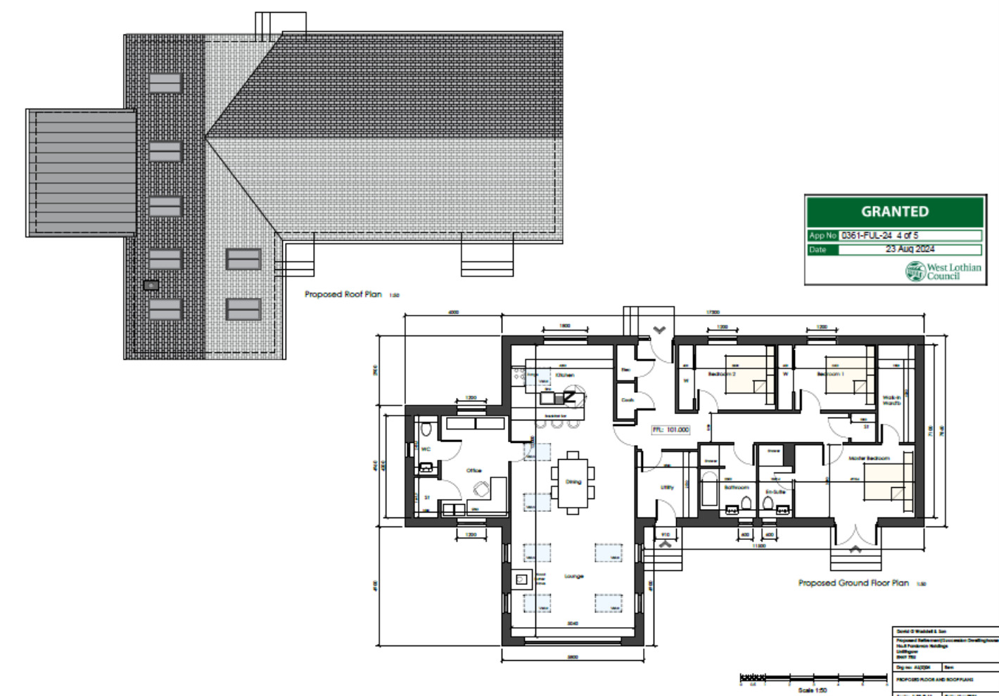
Unserviced building plot with full planning permission granted for a 158m2, 3/4 bed detached bungalow (plus walk in loft complete with velux windows). The plot size is c .0.49 acre.

Situated in a semi-rural hamlet with far reaching countryside views, this offers a rare opportunity to purchase a building plot in one of the most well connected locations in central Scotland. The M8/M9 motorway network is a short drive and there is a regular rail service to Edinburgh and Glasgow from Linlithgow Train Station. Edinburgh International Airport is only 9 miles away.

Planning reference/s : 0361/FUL/24

Property Ref: TUR1002603

Share:

Similar Properties

Byburn, Ecclesmachan

2 Bedroom Semi-Detached House | Offers Over £185,000

Located in the historic and welcoming West Lothian village of Ecclesmachan on the outskirts of Threemiletown, this spaci...

Cathlaw Lane, Torphichen

Land | Offers Over £175,000

RESIDENTIAL DEVELOPMENT OPPORTUNITY - Linlithgow Academy school catchmentThe property is situated to the southeast of To...

Hope Park Gardens, Bathgate

2 Bedroom Semi-Detached House | Offers Over £165,000

**Some images have been virtually staged for marketing purposes only**Presented to the market in turn-key condition, thi...

Academy Street, Bathgate

2 Bedroom Detached House | Offers Over £220,000

Offering a superb opportunity, this two-bedroom detached home is ideally positioned close to Bathgate's schools, local a...

Millburn Crescent, Armadale

4 Bedroom Semi-Detached House | Offers Over £225,000

Boasting a stylish contemporary interior and a deceptively spacious layout, this four-bedroom semi-detached home in Arma...

Eagles View, Deer Park, Livingston

2 Bedroom Apartment | Offers Over £225,000

Enjoying captivating views over the prestigious Deer Park Golf and Country Club, this rarely available two-bedroom penth...

Turpie & Co (Bathgate)

Bathgate, West Lothian, EH48 1BA

01506 668 448

How much is your home worth?

Use our short form to request a valuation of your property.

Request a Valuation

Mortgage Calculator

Amount Borrowed: £
Total Amount Repayable: £
Total Monthly Payment: £
©2026 The Guild of Property Professionals. All rights reserved. Terms and Conditions | Privacy Policy | Cookie Policy | Complaints Policy | Members Login
The Guild of Property Professionals Trading Address: 121 Park Lane, London W1K 7AG. GPEA Limited. Registered in England & Wales.  Company No: 02819824.  Registered Office Address: 2 St. Stephen's Court, St. Stephen's Road, Bournemouth, Dorset, England, BH2 6LA.  VAT Registration No: 576 8795 61
Book a Property Valuation Update Cookies Preferences