Upper Castle Combe

£750,000

3 Bedroom Cottage for sale in Upper Castle Combe

3 3 2
  • Characterful Grade II listed period cottage
  • Good-proportions and ceiling height
  • Large oak-framed family/dining room
  • 2 further reception rooms with fireplaces
  • Kitchen/breakfast room
  • 3 bedrooms with 4th bedroom option
  • Bathroom and shower room
  • Garage and off-street parking
  • Private garden with sunny aspect
  • No onward chain

Description

The Old Smithy is a historic period cottage situated within Upper Castle Combe. Dating back to approximately the turn of the 18th Century, the cottage is Grade II Listed displaying much of its wonderful period charm including large inglenook fireplaces and exposed timber features. The cottage sits within close proximity of footpaths leading through the picturesque Cotswold countryside to the centre of Castle Combe where there are two pubs and cafes (approx. 10 minutes’ walk).

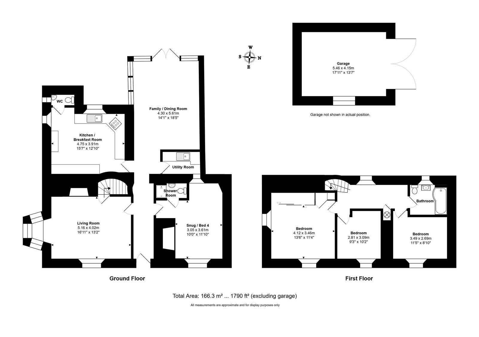
The accommodation boasts good proportions and ceiling height, extending to around 1,790 sq.ft. The current owners have significantly improved the accommodation with the addition of a lovely light-filled oak-framed family/dining room at the rear connecting to a rear patio. The kitchen/breakfast room features a high vaulted ceiling and there is a separate utility room and WC. To the front lies the two traditional reception rooms both with impressive large inglenook fireplaces. The living of which is particularly spacious with a dual-aspect including a wonderful bay window. Across the hall, the second reception is a versatile room complete with an adjoining en-suite designed in mind for future ground floor bedroom space if required or a guest suite. Upstairs, and accessed via a traditional winder staircase, the first floor comprises three bedrooms and a family bathroom.

Externally, a driveway behind the cottage leads to a garage and private off-street parking. The garage has power connected. The pretty garden wraps around the south and west aspect of the cottage and has a great degree of privacy screened by mature trees. There is a lawn to the side and a large patio seating terrace at the rear.

Situation
Upper Castle Combe is located on the outskirts of the world famous tourist destination and quintessential village of Castle Combe, famed for its traditional and unspoilt Cotswold cottages and streets. The area is a regular location for the film industry with movie's including 'War Horse' and 'Dr Doolittle'. Castle Combe has the Manor House Hotel with its Michelin star Bybrook restaurant and the golf club which has a Peter Alliss designed 18 hole course, regarded as one of the top 100 in the UK. Around the village's 14th Century Market Cross centre there is a small hotel, tearooms and a public house. Castle Combe Circuit racetrack is also a major attraction and is situated close by. There is an excellent road link to the M4 (Junction 17, 6 miles, and Junction 18, 7.5 miles) and Bristol and Bath. Fast trains from Chippenham can reach London Paddington in as quick as 63 minutes.
Additional Information
The property is Freehold with oil-fired central heating, mains drainage, water and electricity. The property is located within the Cotswold Area of Outstanding Natural Beauty and a conservation area. Superfast broadband is available. Information taken from the Ofcom mobile and broadband checker, please see the website for more information and mobile phone coverage. Wiltshire Council Tax Band E.

Important Information

  • This is a Freehold property.
  • This Council Tax band for this property is: E

Property Ref: 1253801

Share:

Similar Properties

Church Rise, Burton

5 Bedroom Detached House | £750,000

Set within a mature village close of only 7 homes, this detached family house occupies a 0.18 acre plot coupled with a b...

High Street, Colerne

5 Bedroom Village House | £750,000

A substantial Grade II Listed village house with elegant, superbly proportioned accommodation, complete with private off...

Pinkney, Near Sherston

4 Bedroom Semi-Detached House | £725,000

Thoughtfully upgraded and extended, a beautifully presented Victorian semi-detached home. 4 bedrooms, 3 reception rooms,...

Chelworth, near Crudwell

4 Bedroom Detached House | £775,000

With an elegant stylish interior, this detached family-house is set within a peaceful position with mature gardens. 

Chelworth, near Crudwell

3 Bedroom Semi-Detached House | £775,000

This very pretty Cotswold stone period cottage showcases a wealth of charm and character positioned in the rural village...

West Street, Great Somerford

3 Bedroom Detached House | £795,000

Tucked up a private drive with a lovely view across a paddock opposite, this individual detached house is surprisingly s...

James Pyle & Co (Sherston)

Swan Barton, Sherston, Wiltshire, SN16 0LJ

01666 840886

How much is your home worth?

Use our short form to request a valuation of your property.

Request a Valuation

Mortgage Calculator

Amount Borrowed: £
Total Amount Repayable: £
Total Monthly Payment: £
©2026 The Guild of Property Professionals. All rights reserved. Terms and Conditions | Privacy Policy | Cookie Policy | Complaints Policy | Members Login
The Guild of Property Professionals Trading Address: 121 Park Lane, London W1K 7AG. GPEA Limited. Registered in England & Wales.  Company No: 02819824.  Registered Office Address: 2 St. Stephen's Court, St. Stephen's Road, Bournemouth, Dorset, England, BH2 6LA.  VAT Registration No: 576 8795 61
Book a Property Valuation Update Cookies Preferences