New Market Street, Usk, NP15

£325,000

2 Bedroom End of Terrace House for sale in Usk

2 2 1
  • Attractive end terrace cottage
  • Sought after location within Usk Town
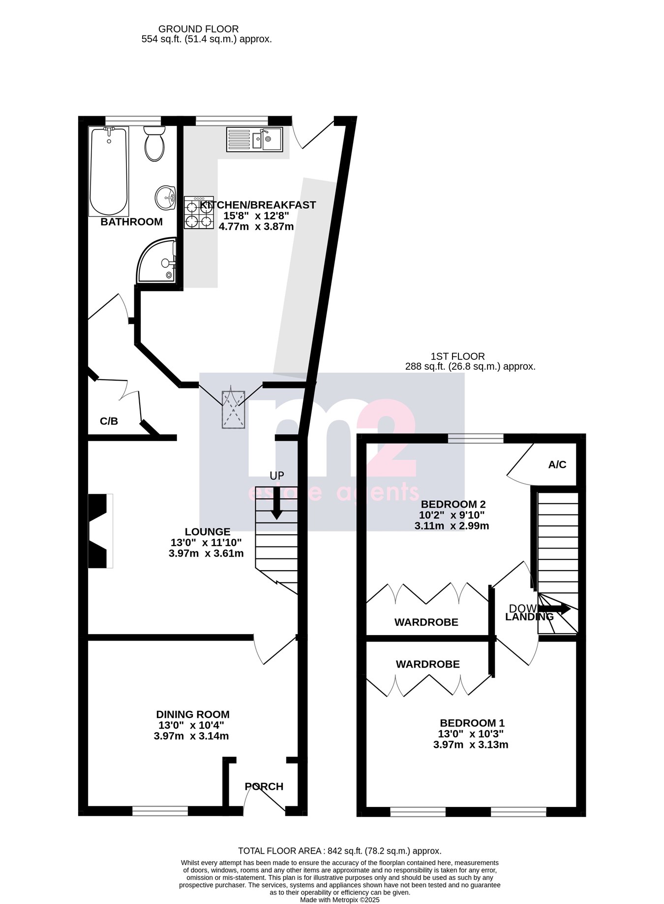
  • Entrance porch
  • Dining Room
  • Lounge with feature fire place
  • Good size kitchen
  • Refitted bathroom
  • 2 bedrooms with built in wardrobes
  • Well kept easily maintained garden
  • No chain

An attractive, extended end terrace property situated on this highly regarded road within Usk town with parking to rear. The property benefits from a ground floor extension providing a good size kitchen and refitted bathroom.

An entrance porch leading to a dining room with replacement sash windows to front.

A separate sitting room benefits from a feature fire place with stairs to the first floor. A lobby provides access to the modern kitchen/breakfast room with integral appliances and refitted bathroom having bath & shower.

Upstairs a landing leads to 2 double bedrooms both having fitted wardrobes.

Outside to the rear a private seating area having paved pathways through well stocked raised beds, inset fish pond and further covered seating area with garden store/workshop off. A gate provides access to the rear parking area and lane.

Important Information

  • This is a Freehold property.

Property Ref: 30149170

Share:

Similar Properties

Caestory Avenue, Raglan, Usk, NP15

4 Bedroom Detached House | Offers in excess of £325,000

****offers in excess of £325,000****  A spacious detached dormer bungalow occupying a good size corner plot and offering...

West Road, Monkswood, Usk, NP15

3 Bedroom Semi-Detached House | £325,000

Enjoying a rural outlook from the front and benefiting from a good-sized enclosed rear garden, this well-built semi-deta...

Ton Road, Llangybi, Usk, NP15

3 Bedroom Terraced House | Offers Over £325,000

Situated in the picturesque village of Llangybi within the heart of the Usk Valley, this attractive mid-terrace cottage...

The Martins, Tutshill, Chepstow, NP16

3 Bedroom End of Terrace House | £335,000

LAST ONE REMAINING  3 storey new build in the desired village of Tutshill on the outskirts of Chepstow with the largest...

St Dials Close, Monmouth, NP25

4 Bedroom Detached House | £350,000

Situated on this private close lying off Wonastow Road, this spacious detached property offers versatile family accommod...

Caestory Avenue, Raglan, Usk, NP15

3 Bedroom Semi-Detached House | £365,000

Situated within Raglan village close to an excellent range of amenities this larger than average semi detached property...

M2 Estate Agents (Usk)

Usk, Monmouthshire, NP15 1BQ

01291 672827

How much is your home worth?

Use our short form to request a valuation of your property.

Request a Valuation

Mortgage Calculator

Amount Borrowed: £
Total Amount Repayable: £
Total Monthly Payment: £
©2026 The Guild of Property Professionals. All rights reserved. Terms and Conditions | Privacy Policy | Cookie Policy | Complaints Policy | Members Login
The Guild of Property Professionals Trading Address: 121 Park Lane, London W1K 7AG. GPEA Limited. Registered in England & Wales.  Company No: 02819824.  Registered Office Address: 2 St. Stephen's Court, St. Stephen's Road, Bournemouth, Dorset, England, BH2 6LA.  VAT Registration No: 576 8795 61
Book a Property Valuation Update Cookies Preferences