Rock

Guide Price
£875,000

4 Bedroom Detached House for sale in Wadebridge

1 4 3
  • Quiet Location near footpath to Porthilly Beach
  • Private Garden
  • Contryside Views
  • Oil Fired Central Heating
  • En-suite, Contemporary Shower Room and Family Bathroom
  • Wood Burner
  • Spacious Dining/Kitchen room
  • Utility
  • Detached Block Workshop

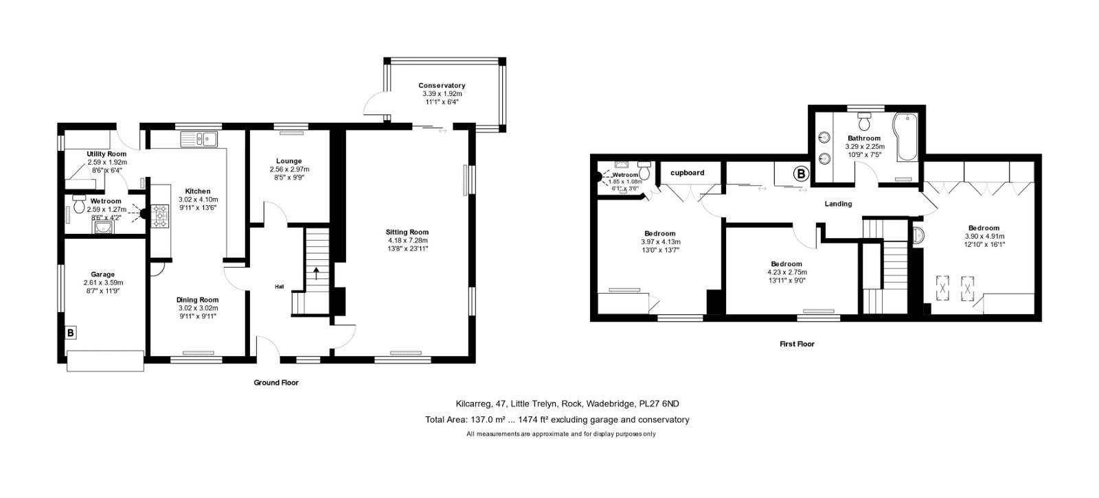
Kilcarreg was built in 1972 and has remained within the same family since. It was refurbished in 2016 being rewired, a new kitchen and bathroom installed, and a ground floor shower room. There is room for two cars on the driveway which leads to the garage door. The garage has been shortened and is now a useful storeroom housing an oil-fired boiler. The front garden has high hedges offering privacy, with the garden continuing down the side and rear of the property. There are two tiers with paths running down the side and along the rear garden. On the higher tier is a greenhouse which if not required would make a lovely, sheltered seating area to catch the evening sun or maybe an ideal place for a hot tub. On the far side of the rear garden is a block-built store and workshop with a covered walkway back to the front driveway.

The front door opens into the central hallway which has slate effect flooring continuing into the kitchen/dining room. The kitchen has attractive stone-coloured units over a light quartz work top. There is a large range cooker and space for a fridge freezer, with integrated dish washer, wine cooler and built in lighting to the kitchen unit plinths. There is also a heater under the plinth which runs off of the central heating. From the kitchen is a utility room with plumbing for washing machine, space for a tumble dryer and a stable back door. From the utility room is a door to the fully tiled wet room, with walk-in shower, WC, hand basin, towel rail and mirror. There is a large, triple aspect living room with plantation style shutters, multi fuel inset fire and patio doors to the rear conservatory. Lastly, on the ground floor is a cosy snug which could be used as a fourth bedroom or study having views out onto the rear garden.

On the first floor there are three large south-facing bedrooms with views across the open countryside. Bedroom one is double aspect with a built in wardrobe and ensuite shower/wet room with walk in shower, WC, wash hand basin and towel rail. Bedroom two also has built-in wardrobes and large basin. Bedroom three is a spacious twin bedroom. This floor also has a large family bathroom with double basins and a custom shower bath. There is also plenty of wardrobe and storage space situated along the inner landing which also houses the large closed hot water cylinder. 

Important Information

  • This is a Freehold property.

Property Ref: 810230

Share:

Similar Properties

Luffings, Rock

4 Bedroom Not Specified | £875,000

Luffings, No.36 Trelyn is a beautifully extended four bedroom, three bathroom bungalow located in a quiet and elevated p...

Trebetherick

3 Bedroom Not Specified | £750,000

Trebetherick House is currently a commercial two storey link detached property with large 22m frontage and planning cons...

Trewint Lane, Rock

3 Bedroom Not Specified | £740,000

Badgers is an attractive 3 bedroom detached dormer bungalow with natural slate roof, plenty of parking and a sunny garde...

Tredrizzick Bridge, St Minver PL27

3 Bedroom Not Specified | £895,000

A fantastic opportunity to purchase this large three bedroom, one en suite bungalow set in large private gardens of just...

St Moritz, Trebetherick.

4 Bedroom Not Specified | £900,000

No.12 St Moritz Villas is an updated frontline four bedroom, three bathroom Villa situated at St Moritz, Trebetherick ab...

Polzeath, PL27

4 Bedroom Not Specified | £1,000,000

A fantastic opportunity to purchase this detached bungalow with attached annexe enjoying outstanding views over Polzeath...

Cole Rayment & White (Rock)

Rock Road, Rock, Cornwall, PL27 6NW

01208 863322

How much is your home worth?

Use our short form to request a valuation of your property.

Request a Valuation

Mortgage Calculator

Amount Borrowed: £
Total Amount Repayable: £
Total Monthly Payment: £
©2026 The Guild of Property Professionals. All rights reserved. Terms and Conditions | Privacy Policy | Cookie Policy | Complaints Policy | Members Login
The Guild of Property Professionals Trading Address: 121 Park Lane, London W1K 7AG. GPEA Limited. Registered in England & Wales.  Company No: 02819824.  Registered Office Address: 2 St. Stephen's Court, St. Stephen's Road, Bournemouth, Dorset, England, BH2 6LA.  VAT Registration No: 576 8795 61
Book a Property Valuation Update Cookies Preferences