3 Bedroom Semi-Detached House for sale in Wadebridge

1 3 2
  • Village Location
  • Large Spacious Property
  • Very Good Condition
  • Panoramic Views From Both Elevations
  • Oil Fired Central Heating and wood burner

Large 3 bedroom semi detached house in St Minver village with open views towards Bodmin moor from the front and Polzeath to the rear. Plenty of parking and good sized garden. EPC band D, Freehold. Council Tax band C.

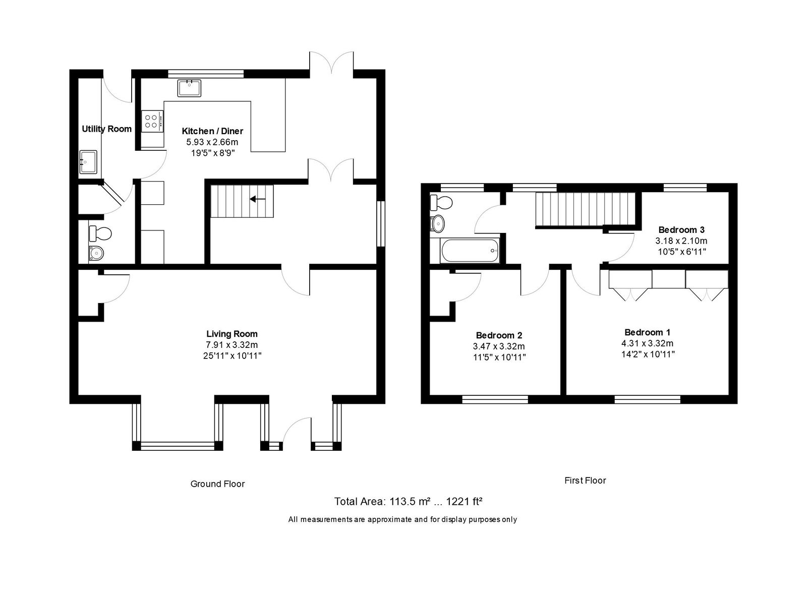
The front driveway is gravelled and offers plenty of parking.  The property generally has a very spacious feel throughout having been mostly rebuilt in 2004. The front door leads into the large double bay fronted sitting room with feature wood burner. Oak flooring runs throughout the ground floor of the property. The central hallway is also double width and has a clear glass block wall to allow natural light in. This combined with glazed French doors which lead into the kitchen/diner at the rear of the property all help make the property nice and light. The kitchen worktops are solid wood and compliment the Oak flooring and set off the Belfast sink. French doors lead out to the south/west facing rear garden. The kitchen also returns under the stairs so there is a lot of storage available. Off the kitchen is a utility with a second Belfast sink and plumbing for a washing machine, space for a tumble dryer and the oil fired boiler. Door leads out to the rear garden. Also off the utility is a wet room with shower, WC and handbasin.

On the first floor is a partial galleried landing with a window looking out across open countryside towards Trebetherick and Polzeath. The bathroom has an electric shower over the bath, WC and handbasin. There are 2 double bedrooms to the front of the property with the master having built in wardrobes and dressing table. The single bedroom is to the rear and has the loft access where the roof has been finished with a loft conversion in mind.

The rear garden has a large patio area across the back of the house and then a large lawn with high fencing for privacy and backs onto open fields at the rear. The property is ex-local authority and has been holiday let by the current vendor.

Important Information

  • This is a Freehold property.

Property Ref: 1070234

Share:

Similar Properties

Port Isaac

2 Bedroom Bungalow | £425,000

Caelum is a spacious detached 2 bedroom bungalow, with garage and driveway parking situated in the sought after Silversh...

Trelights, Port Isaac

3 Bedroom Bungalow | Offers in region of £400,000

No.4 Furze Park is a detached 3 bedroom bungalow with a large garden on 3 sides, situated in a quiet cul-de-sac in the p...

Windmill Courtyard, St. Minver, Wadebridge, PL27 6RT

2 Bedroom Terraced Bungalow | £325,000

Kellan is a lovely 2 bedroom 2 bathroom freehold bungalow with panoramic outlook over open countryside towards the coast...

Trelights, Port Isaac

4 Bedroom Detached House | £545,000

Spacious 4 bedroom 3 bathroom detached house set in the peaceful hamlet of Trelights, on the North Cornish Coast between...

Nr Port Isaac

4 Bedroom Detached House | £550,000

A substantial detached four bedroom house with large garden, plenty of parking, integral garage, and enjoys open country...

Rock

3 Bedroom Semi-Detached Bungalow | £550,000

Palm Bungalow is a nicely presented 3 bedroom semi detached bungalow with double garage and low maintenance courtyard ga...

Cole Rayment & White (Rock)

Rock Road, Rock, Cornwall, PL27 6NW

01208 863322

How much is your home worth?

Use our short form to request a valuation of your property.

Request a Valuation

Mortgage Calculator

Amount Borrowed: £
Total Amount Repayable: £
Total Monthly Payment: £
©2026 The Guild of Property Professionals. All rights reserved. Terms and Conditions | Privacy Policy | Cookie Policy | Complaints Policy | Members Login
The Guild of Property Professionals Trading Address: 121 Park Lane, London W1K 7AG. GPEA Limited. Registered in England & Wales.  Company No: 02819824.  Registered Office Address: 2 St. Stephen's Court, St. Stephen's Road, Bournemouth, Dorset, England, BH2 6LA.  VAT Registration No: 576 8795 61
Book a Property Valuation Update Cookies Preferences