Trevanson Road, Wadebridge PL27

Guide Price
£750,000

6 Bedroom Detached House for sale in Wadebridge

2 6 5
  • Great Location
  • Fantastic Views
  • Contemporary Modern Design
  • Detached Double Garage (Now Partly Converted)
  • Various Garden Areas, Patio Areas with Great Views and Hot Tub Area
  • Solar Photovoltaic Panels
  • Double Glazed Throughout
  • Flexible and Adaptable Living Accommodation
  • Fitted Kitchen with Quartz Worktops
  • Feature Black Walnut/Stainless Steel Staircase

A large 5/6 bedroom 4 en suite detached architect designed residence with reversed accommodation taking advantage of the lovely surrounding views.  Freehold.  Council Tax Band F.  EPC rating E.

 

The Hawthorns was completed in March 2006 and is situated off Trevanson Road and has landscaped gardens as can be seen on the photos/video tour.  It is a relatively easy walk into the town by West Hill.  Wadebridge is a very popular former market town situated on the banks of the River Camel and as such has the Camel Trail passing through the town and is ideal for walking/cycling into beautiful harbour town of Padstow with its array of restaurants and of course many beaches, bays and cliff walks are also within a short drive.

 

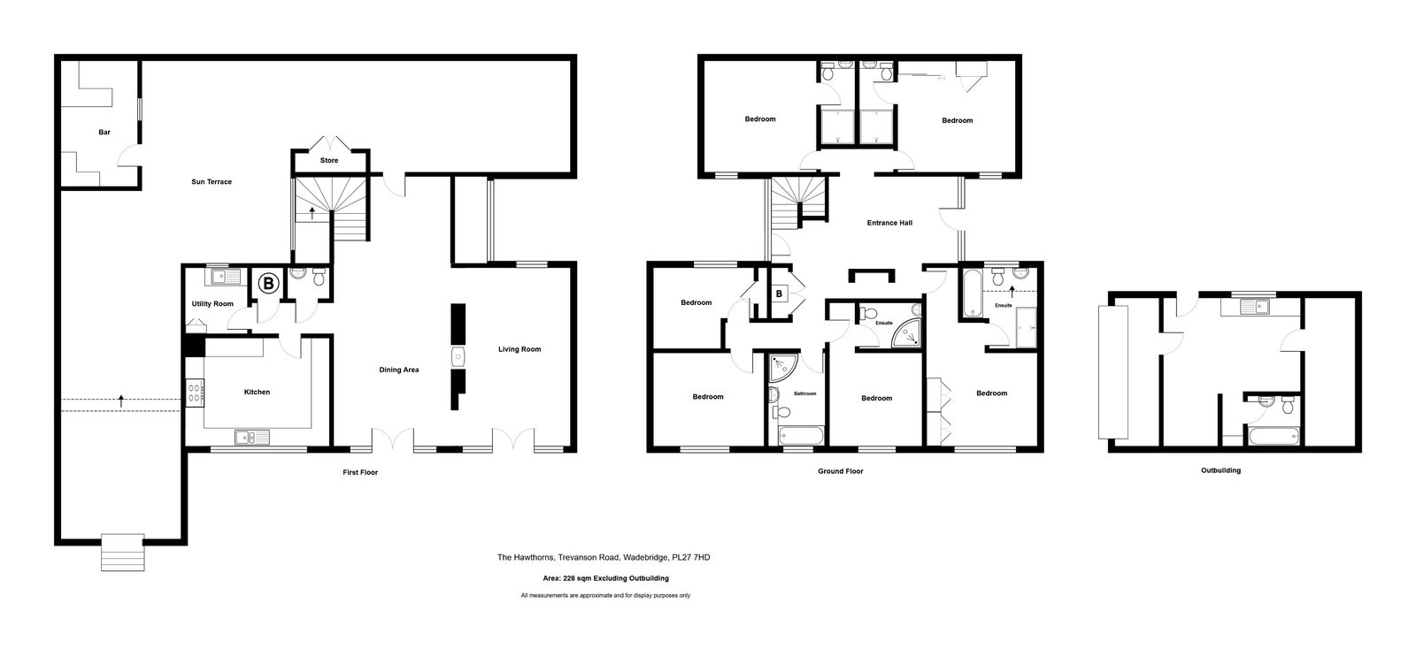
The Accommodation comprises with all measurements being approximate:-

 

Double Glazed Entrance Door to

 

Reception Hall

With feature full height glazed windows flooding the reception hall with natural light and making this a real feature entrance with tiled flooring, Mitsubishi heating/cooling unit, door to rear courtyard.  Built-in cupboard housing electric circuit breakers, wifi, inverter power and fire alarm.

 

Rear Section of the House

 

Bedroom 2 - 3.83m x 3.77m

Built-in speakers/sound system, electric wall mounted heater, door to

 

En Suite Shower

Fully tiled room, thermostatic shower, wash hand basin, concealed cistern W.C., towel rail.

 

Bedroom 3 - 3.2m to wardrobe x 3.97m

Electric wall mounted heater, built-in double wardrobe with hanging and shelving space, further mirror fronted cupboard, recess for make up area, built-in speakers/sound system.

 

En Suite Shower Room

Fully tiled room, thermostatic shower, wash hand basin, concealed cistern W.C., towel rail.

 

Front Section of the House

 

Bedroom 1 - 4m plus door recess area x 3.36m (measurement not including wardrobes)

Built-in wardrobes, door recess area with electric heater, further heater, large window to front, built-in speakers/sound system.

 

En Suite Feature Bath/Shower Room

Large bath with shower attachment over, tiled surrounds, LED wall lighting, walk-in shower enclosure with thermostatic shower, heated towel rail, wash hand basin, low level W.C., window to rear.

 

Bedroom 4 - 3.16m x 3.14m

Electric heater, built-in speakers/sound system, built-in single wardrobe.

 

En Suite Shower Room

Corner shower with various body jets, concealed cistern W.C., wash hand basin, heated towel rail, fully tiled walls.

 

Main Bath/Shower Room

White suite comprising panelled bath, fully tiled walls, corner glazed shower cubicle with thermostatic shower, concealed cistern W.C. and wash hand basin, heated towel rail.  

 

Bedroom 5 - 3.16m x 3.75m

Window to front, electric wall heater, built-in speakers/sound system.

 

Bedroom 6 - 2.68m x 3.4m max narrowing to 2.3m min

Electric heater, window to rear, built-in single wardrobe.  

 

Feature black walnut stainless steel and glazed staircase leads to the 

 

First Floor

Semi-open plan with 

 

Magnificent Feature Dining/Reception Area - 9.4m overall x 4m min widening to 4.5m

Fantastic dual aspect room giving a real feel of space with open vaulted ceiling, 2 way woodburning stove where the room opens into the sitting room.  Full height French doors and matching side panels, Juliet balcony framing the magnificent views towards the North Cornish countryside and opening through to

 

Lounge - 3.92m x 5.98m

Again dual aspect windows, Juliet balcony, similar vaulted ceiling, flooring and of course woodburning stove.  Built-in storage, electric wall mounted heater.

 

Cloakroom

Low level W.C., wash hand basin, part tiled wall.  Built-in storage cupboard housing the unvented hot water tank with shelving.

 

Utility Room - 2m x 2.2m

Built-in storage, space and plumbing for washing machine, cupboard and recess for fridge/freezer, window to rear.

 

Kitchen - 3.65m x 5m

Fantastic fully fitted contemporary modern kitchen with inset double bowl sink, stone worktops with matching splashbacks, built-in Neff ceramic hob, Smeg stainless steel extractor hood over, built-in Neff twin ovens together with grill, Russell Hobbs integral microwave, various built-in cupboards, drawers and glazed display units again giving a feeling of light and space with the vaulted ceiling, large window framing lovely views over the front gardens and countryside beyond.

 

Outside

At the front of the property are the gates leading to the chipping driveway/parking area leading to the 

 

Large Detached Garage - 

With roller door.

Some years ago the garage was converted to provide a studio/storage area.

Rear of Garage - 5m x 3.8m

With sink, fitted worktops and bathroom and Mitsubishi heating/cooling unit, whilst the front of the garage is still used for storage purposes.  This can easily be reinstated subject of course to the new purchaser's wishes. 

 

Above the garage is a fantastic raised garden area with artificial turf from where one can enjoy the lovely views.  A paved path then leads around the side of the house to the main entrance.  The garden and seating areas are most interesting with various sitting areas taking advantage of the sun/shade at various parts of the day.  A door then leads from the first floor to another raised garden/seating area to a very private sitting area again with artificial turf, patio/drying area to side with steps up to the greenhouse and further area of garden.  Pergola with log store then leads to the barbeque/hot tub garden comprising composite decking areas with outside seating area.  Door to

Pub Shed - 2.97m x 3.4m

The whole garden being designed to take advantage of the various aspects of the garden making it fantastic for entertaining.  From the composite decking are steps leading down to a small area of lawn with shrub and small trees.

 

Agents Note

The property has a mixed heating system with individually controlled electric heaters on the ground floor together with a Mitsubishi heating/cooling unit within the reception hallway and also has solar photovoltaic panels.

 

Services

Mains water, electricity and drainage are connected to the property.  Fibre internet is also connected with a download speed taken on the day of inspection at 147 Mbps, upload speed of 28.9 Mbps.

 

What3words:   ///section.snappy.showcases

 

Please contact our Wadebridge Office for further details.

 

Important Information

  • This is a Freehold property.
  • This Council Tax band for this property is: F

Property Ref: 881597

Share:

Similar Properties

St Teath PL30

5 Bedroom Detached House | Guide Price £750,000

Situated in this wonderful tucked away location just off the village centre is this detached 5/6 bedroom beautifully app...

Bodieve, Wadebridge, PL27

5 Bedroom Detached House | £699,950

A 5 bedroom detached property set within approximately 1.81 of an acre on the outskirts of Wadebridge.  Freehold.  Counc...

Blisland PL30

3 Bedroom Detached House | Offers Over £650,000

Enjoying a glorious private rural setting with no adjacent neighbours on the outskirts of the village is this picturesqu...

Lanteglos, PL32

5 Bedroom Detached House | Guide Price £765,000

An immaculately presented substantial 4/5 bedroom detached property enjoying a superb and beautiful location with large...

Camelford, PL32

4 Bedroom Detached House | £770,000

A unique opportunity to purchase an immaculately presented detached home set within approximately 1.6 acres of land enjo...

Egloshayle, Wadebridge, PL27

5 Bedroom Detached House | Guide Price £795,000

A genuinely spacious 5 bedroom detached house with 2 garages and off street parking in a fantastic private individual cu...

Cole Rayment & White (Wadebridge)

Wadebridge, Cornwall, PL27 7DG

01208 813595

How much is your home worth?

Use our short form to request a valuation of your property.

Request a Valuation

Mortgage Calculator

Amount Borrowed: £
Total Amount Repayable: £
Total Monthly Payment: £
©2026 The Guild of Property Professionals. All rights reserved. Terms and Conditions | Privacy Policy | Cookie Policy | Complaints Policy | Members Login
The Guild of Property Professionals Trading Address: 121 Park Lane, London W1K 7AG. GPEA Limited. Registered in England & Wales.  Company No: 02819824.  Registered Office Address: 2 St. Stephen's Court, St. Stephen's Road, Bournemouth, Dorset, England, BH2 6LA.  VAT Registration No: 576 8795 61
Book a Property Valuation Update Cookies Preferences