Talmena Avenue, Wadebridge, PL27 7RP

Guide Price
£445,000
SSTC
This property listing is now SSTC

4 Bedroom Detached House for sale in Wadebridge

2 4 2
  • 4/5 Bedroom Detached Family Home
  • Well Presented Throughout
  • Generous Off Road Parking
  • Stunning Views Of Wadebridge Town And Countryside
  • Private Rear Garden

Immaculately presented 4/5 bedroom detached family home which has undergone extensive modernisation by the current owners including wooden blinds and oak doors throughout.  Freehold.  Council Tax Band D.  EPC rating C. 

 

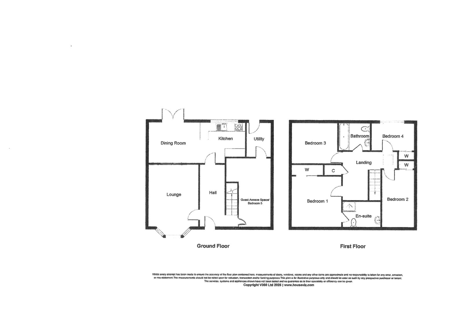
123 Talmena Avenue is coming to the market offering an exciting opportunity to purchase a well presented, spacious, detached family home within the popular Talmena Avenue within just a short distance walk of Wadebridge town centre.  Upon entering you are met with a generous and naturally light entrance hall which leads into a well presented living room with bay window to front.  At the other side of the property you are met with what was originally an integral garage which is now a double bedroom leading through to a utility room.  To the rear of the property there is a modern and spacious kitchen/dining room which has recently been fully renovated with French doors leading out to the raised patio with steps down to the rear garden.  On the first floor is a generous landing with built in storage, a master bedroom benefitting from a recent addition of an en-suite shower room and 3 additional double bedrooms as well as a modern and spacious family bathroom.

 

The accommodation comprises with all measurements being approximate:-

 

Double Glazed Front Door 

Into

 

Entrance Hall

2 x radiators.  Leading into

 

Living Room - 3.6 m x 4.5 m

Well presented living room with radiator, t.v. point, electric imitation wood burner fire with surround, UPVC double glazed bay window to front.

 

Bedroom 5/Second Living Room - 2.6 m x 5.1 m

Double bedroom or second living room.  Double glazed UPVC window to front.  Radiator.  T.V. point.  Built in storage units.

 

Utility Room

Space and plumbing for washing machine and dishwasher.  Stainless steel sink unit.  New Combi boiler with Hive for remote control of the heating.  Timber double glazed rear door with access to the garden.  Radiator.  

 

Kitchen/Dining Room - 3.1 m x 6.6 m

Kitchen Area

Fully equipped Howden's kitchen with built in dishwasher, Bosch oven and grill, Bosch microwave, integral fridge/freezer, induction 4 ring Bosch hob, stainless steel Bosch extractor fan and Bosch wine cooler.  UPVC double glazed window with stunning views.  Breakfast bar. 

Dining Area

Radiator.  Entertainment space.  T.V. point.  UPVC double glazed rear door leading to the garden.

 

First Floor

 

Landing

Built in storage cupboard.  Loft hatch.  Radiator.  

 

Bedroom 1 - 3.7 m x 3.7 m

A generous master bedroom with UPVC double glazed window to front.  Radiator.   Built in wardrobes providing a large amount of storage.

 

En-Suite

Completely refurbished with new fittings and flooring comprising low flush w.c., shower, wash hand basin with storage underneath and further storage cabinet.  Radiator.  UPVC double glazed window.   

 

Bedroom 2 - 4.2 m x 2.6 m

Double bedroom with UPVC double glazed window to front.  Radiator.  T.V. point.  Generous built in wardrobes.

 

Bedroom 4 - 2.3 m x 3.2 m

UPVC double glazed window to rear.  Radiator.  Spacious built in wardrobes.  Incredible town and countryside views.

 

Bedroom 3 - 3.6 m x 3.3 m

A generous double bedroom with UPVC double glazed window to rear.  Radiator.  Stunning views over the town and countryside beyond.  Large storage space.

 

Family Bathroom

UPVC double glazed window to rear.  Low flush w.c.  Wash hand basin.  Stainless steel towel rail.  Bath with new shower over.  Extractor fan.  Modern tiled flooring.

 

Garden

Well thought out garden with raised patio area, perfectly positioned for morning coffee.  Steps lead to a lawned area, pebble area and new decking, perfect for entertaining.

 

To the front of the property you are met with generous off road parking.

 

Viewings highly recommended to appreciate the immaculate presentation and the peaceful location.

 

Services

Mains water, drainage, electric and gas are connected to the property.

 

What3Words:  ///niece.polar.fixtures

 

For further details please contact our Wadebridge office.

 

Important Information

  • This is a Freehold property.
  • This Council Tax band for this property is: D

Property Ref: 1185056

Share:

Similar Properties

Treven, Tintagel PL34

6 Bedroom Semi-Detached House | £445,000

Rare and fantastic opportunity to purchase this large former guest house with amazing countryside views and towards the...

Oak Park, St Tudy PL30

3 Bedroom Bungalow | £445,000

A beautifully refurbished 3 bedroom, one en suite detached modern bungalow together with conservatory and private rear g...

Delabole PL33

4 Bedroom Detached House | £440,000

A magnificent modern 4 bedroom, one en suite family home finished to a very high standard n this popular part of Delabol...

Michaelstow, St Tudy PL30

3 Bedroom Barn Conversion | Guide Price £450,000

A 3 bedroom detached barn conversion together with generous gardens of approximately 0.5 acre forming part of a small cl...

Trefrew Road, Camelford, PL32

4 Bedroom Detached House | Offers in region of £450,000

A substantial 4 bedroom 3 reception room detached home standing in generous grounds of 0.81 of an acre offering developm...

Fisher Close, Wadebridge, PL27

3 Bedroom Bungalow | £450,000

Immaculately presented 3 double bedroom detached bungalow located within Fisher Close, Wadebridge offering off road park...

Cole Rayment & White (Wadebridge)

Wadebridge, Cornwall, PL27 7DG

01208 813595

How much is your home worth?

Use our short form to request a valuation of your property.

Request a Valuation

Mortgage Calculator

Amount Borrowed: £
Total Amount Repayable: £
Total Monthly Payment: £
©2026 The Guild of Property Professionals. All rights reserved. Terms and Conditions | Privacy Policy | Cookie Policy | Complaints Policy | Members Login
The Guild of Property Professionals Trading Address: 121 Park Lane, London W1K 7AG. GPEA Limited. Registered in England & Wales.  Company No: 02819824.  Registered Office Address: 2 St. Stephen's Court, St. Stephen's Road, Bournemouth, Dorset, England, BH2 6LA.  VAT Registration No: 576 8795 61
Book a Property Valuation Update Cookies Preferences